Compact, low-maintenance apartment ideal for an entry-level buyer or investor..
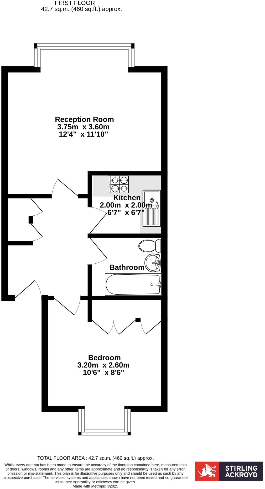
One-bedroom first-floor apartment with bay-window living room
Secure entry system and well-kept communal grounds
Residents' off-street parking available
Double glazing installed post-2002
Electric room heaters only — potentially higher running costs
Service charge approximately £1,980 per year
Lease remaining c.86 years (leasehold)
Medium flood risk and high local crime rate
This well-presented first-floor one-bedroom apartment in central Guildford offers a compact, move-in-ready home or buy-to-let opportunity. The flat has a good-size living room with a bay window, a modern kitchen with oak worktops, a double bedroom with fitted wardrobes and a white bathroom — all in a purpose-built 1980s block with maintained communal grounds.
Practical features include a secure entry system, ample residents’ parking and double glazing. The 86-year lease, EPC band C and the apartment’s central GU1 location support straightforward rental demand or convenient city living for a first-time buyer.
Important practical points are stated plainly: heating is by electric room heaters which can be more expensive than gas central heating; the annual service charge is around £1,980; and the property sits in a medium flood-risk area with a higher local crime rate. These factors affect running costs and insurance and should be checked before committing.
Overall this is a compact, well-kept city flat suited to buyers seeking a central, low-maintenance home or a rental investment with steady demand. Scope for major alteration or private outdoor space is limited because of the communal block layout.
1 bedroom apartment for sale in Chevremont, Jenner Road, Guildford, GU1 — £220,000 • 1 bed • 1 bath • 481 ft²
1 bedroom apartment for sale in Grange Road, Guildford, Surrey, GU2 — £220,000 • 1 bed • 1 bath • 385 ft²
1 bedroom flat for sale in Ladymead, Guildford, Surrey, GU1 — £240,000 • 1 bed • 1 bath • 483 ft²
1 bedroom apartment for sale in St. Saviours Place, Leas Road, Guildford, Surrey, GU1 — £250,000 • 1 bed • 1 bath • 446 ft²
1 bedroom apartment for sale in Chaucer Court, Portsmouth Road, Guildford, Surrey, GU2 — £269,500 • 1 bed • 1 bath • 469 ft²
1 bedroom apartment for sale in Bury Fields, Guildford, Surrey, GU2 — £265,000 • 1 bed • 1 bath • 571 ft²


































