Well-located first-floor home with garden and upgrade potential.
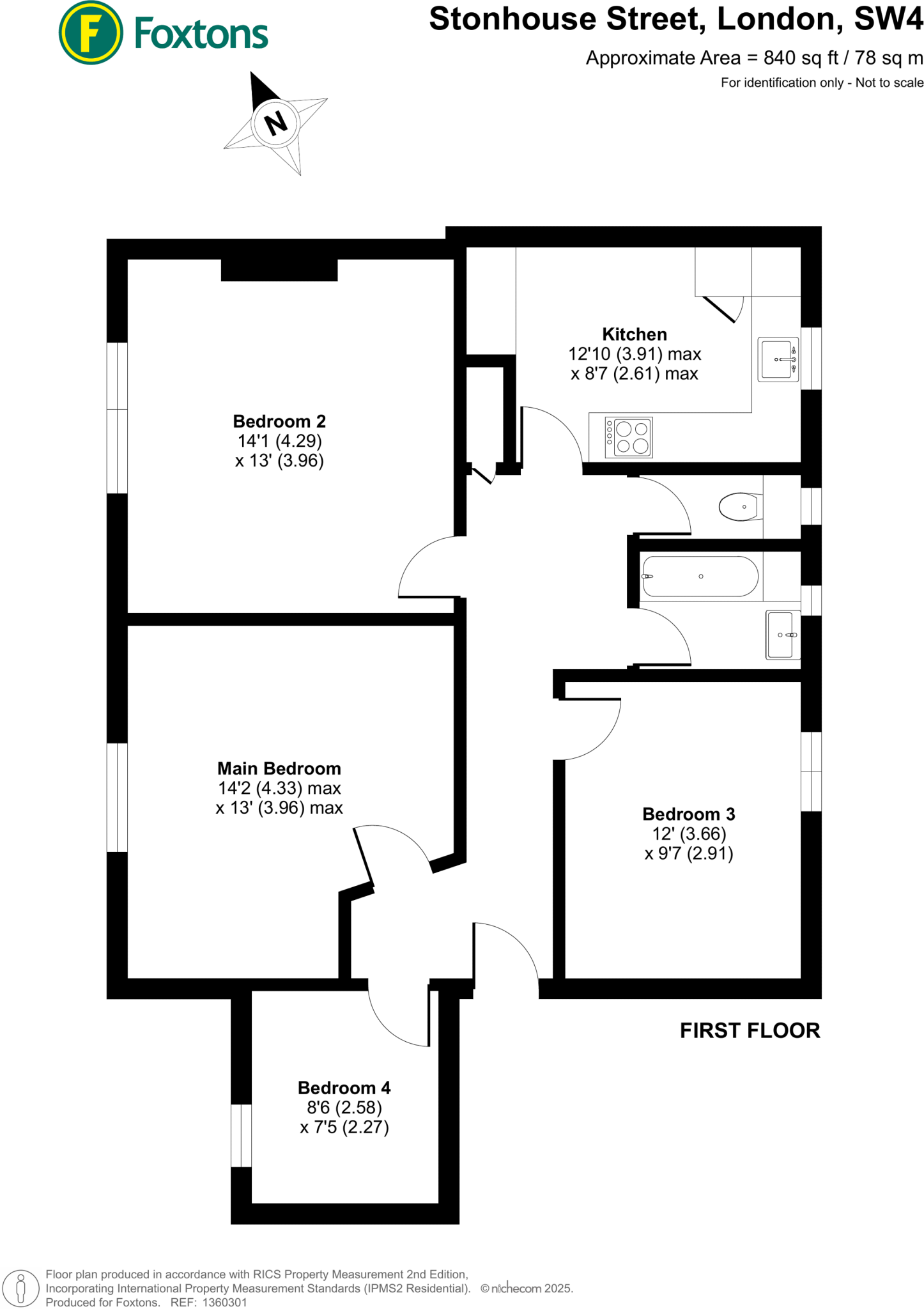
Three double/single bedrooms, suitable for family or sharers
Spacious reception room and separate kitchen, flexible living space
Private garden with lawn and mature trees, rare for flats
Approx 840 sq ft; mid-20th century brick building character
Leasehold: 89 years remaining — consider lease extension costs
Single bathroom plus separate WC — limited bathrooms for three beds
Solid brick walls assumed uninsulated; may need thermal upgrades
Very high local crime and area deprivation — factor into plans
This three-bedroom first-floor flat in SW4 sits just off Clapham High Street, offering practical living space and a private garden — a rare find for flats in the area. The large reception room and separate kitchen give flexible living and dining arrangements, while three bedrooms make it suitable for a family or sharers. Fast broadband and excellent mobile signal support home working and streaming.
The location is a major plus: shops, cafes, restaurants, Clapham Old Town and Clapham Common are all within easy walking distance. Nearby schools include several well-regarded primaries and secondaries, which will appeal to families. The property totals about 840 sq ft and retains period mid-20th century features with double glazing (install date unknown).
Buyers should note material issues plainly: the flat is leasehold with 89 years remaining and will need lease-length review for long-term ownership plans. The building’s solid brick walls are assumed uninsulated and some updating may be required internally; there is one bathroom plus a separate WC. The wider area records very high crime levels and significant deprivation and should be considered when assessing suitability and resale potential.
This home suits purchasers seeking a well-located dwelling with immediate living space and clear potential to modernise. Investors or buyers prepared to upgrade thermal insulation, kitchen and bathroom fittings will find opportunity to add value in a popular Clapham location.
3 bedroom flat for sale in Kings Avenue, Clapham Park, London, SW4 — £400,000 • 3 bed • 1 bath • 848 ft²
3 bedroom apartment for sale in Venn Street, London, UK, SW4 — £750,000 • 3 bed • 1 bath • 793 ft²
1 bedroom flat for sale in Ashley Crescent, Clapham Junction, London, SW11 — £350,000 • 1 bed • 1 bath • 495 ft²
2 bedroom flat for sale in St Luke's Avenue, Clapham High Street, London, SW4 — £700,000 • 2 bed • 1 bath • 690 ft²
3 bedroom flat for sale in Nelsons Row, London, SW4 — £425,000 • 3 bed • 1 bath • 678 ft²
3 bedroom flat for sale in Englewood Road, Clapham South, London, SW12 — £585,000 • 3 bed • 2 bath • 804 ft²






























































