Spacious family home with large gardens and strong renovation potential.
Direct rear garden access to Tannoch Loch
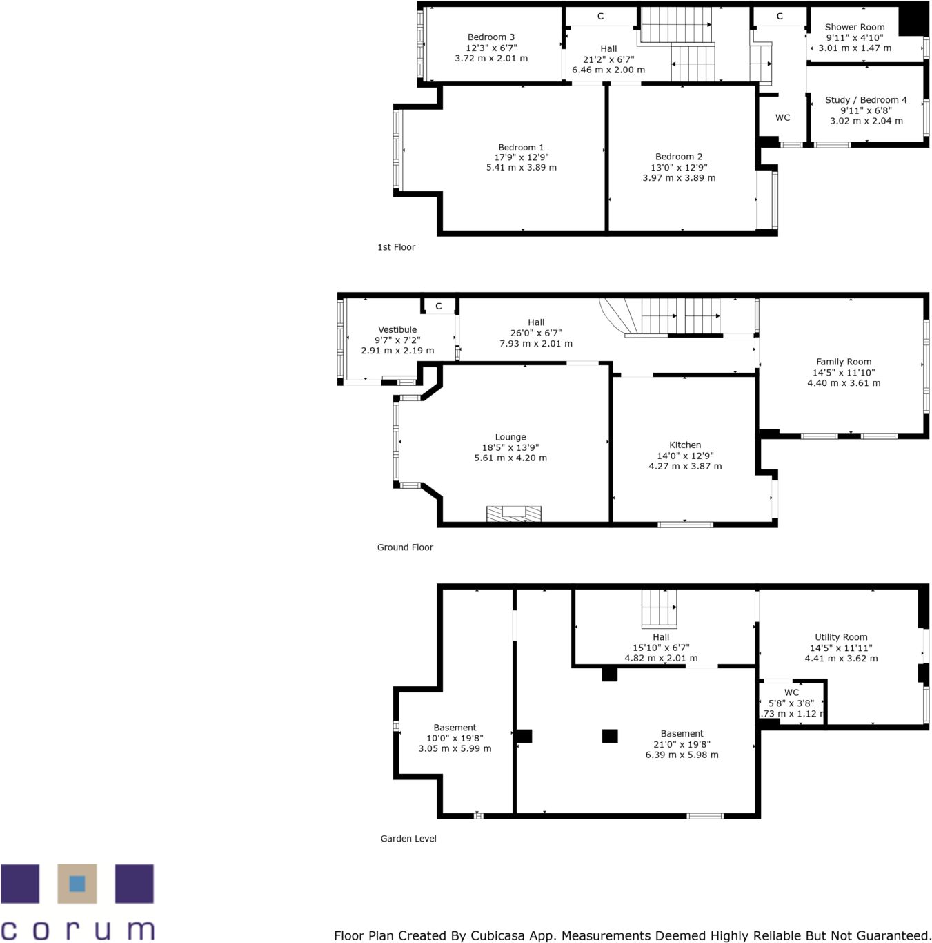
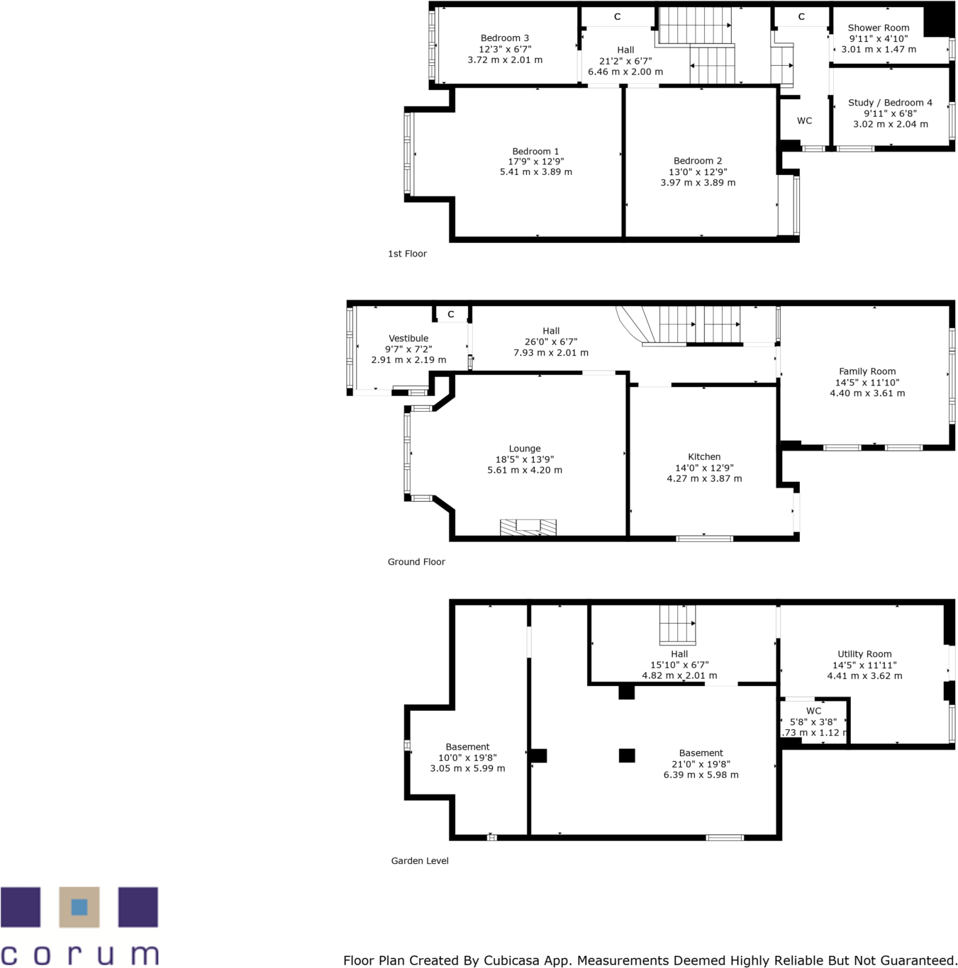
Set on an elevated, tree‑lined plot with direct rear access to Tannoch Loch, this early‑20th century semi‑detached villa offers a rare family home in Milngavie. Wide rooms, tall ceilings and bay windows retain strong period character, while the sunroom and raised patios maximise loch views and garden connection.
The house sits within large, mature landscaped grounds with formal lawns, specimen planting and a water feature. Off‑street parking, gated side access and a substantial basement provide useful storage and clear scope for improvement or additional living space (subject to planning consent).
Practical items to note: the property currently has a mix of single and double glazing and an EER Band F, so energy performance and window upgrades are advisable. Council tax is described as quite expensive. The home has been well cared for but presents an excellent opportunity to personalise and modernise for long‑term family living.
Well positioned for Milngavie village amenities, schools and the local rail link, this property will suit buyers seeking a landmark loch‑side residence with generous gardens and renovation potential rather than a turnkey move‑in solution.
3 bedroom semi-detached house for sale in 11 Montrose Gardens, Milngavie, G62 8NQ, G62 — £595,000 • 3 bed • 1 bath • 1518 ft²
6 bedroom detached house for sale in Tannoch Drive, Milngavie, G62 — £995,000 • 6 bed • 6 bath • 4500 ft²
3 bedroom semi-detached house for sale in 47 Braeside Avenue, Milngavie, G62 6NN, G62 — £360,000 • 3 bed • 2 bath • 1302 ft²
2 bedroom semi-detached house for sale in 34 Hunter Road, Milngavie, G62 7QX, G62 — £210,000 • 2 bed • 1 bath • 839 ft²
2 bedroom semi-detached house for sale in 100 Main Street, Milngavie, G62 6JN, G62 — £235,000 • 2 bed • 1 bath • 829 ft²
3 bedroom semi-detached house for sale in 34 Buchanan Street, Milngavie, G62 8AN, G62 — £320,000 • 3 bed • 1 bath • 969 ft²


































































































































































































































































































































































































































































