Approximately 88 acres of paddocks, parkland and formal gardens
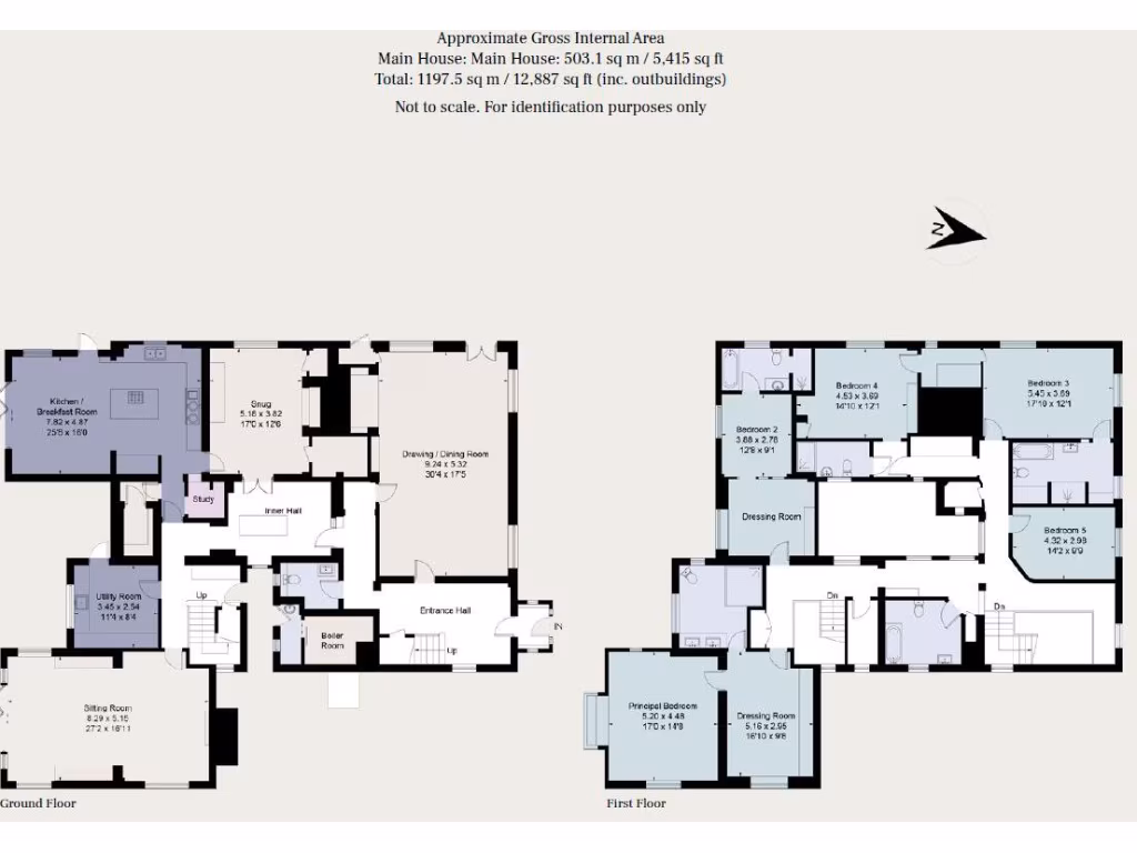
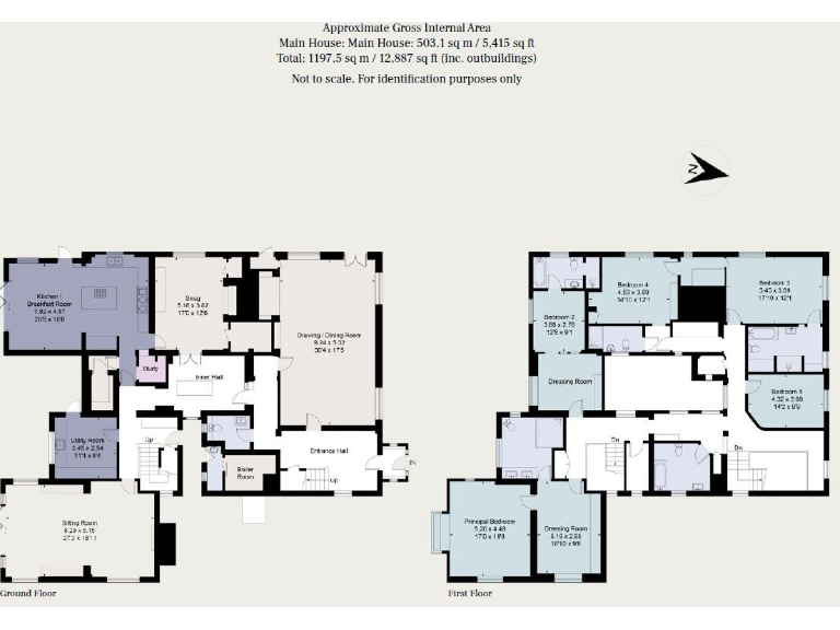
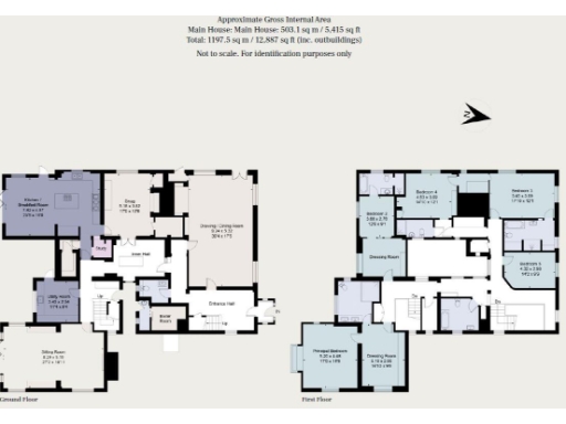
Gaskyns is a substantial Grade II listed country estate set in approximately 88 acres, combining a handsome five-bedroom period house with extensive equestrian and ancillary buildings. The principal home offers generous, characterful reception rooms, five bathrooms and flexible accommodation, arranged around formal gardens, ornamental pond and broad paddocks. Significant leisure facilities include indoor and outdoor pools, a gym, spa areas and a home office with a two‑bed flat above.
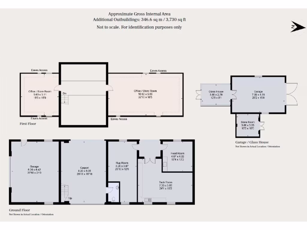
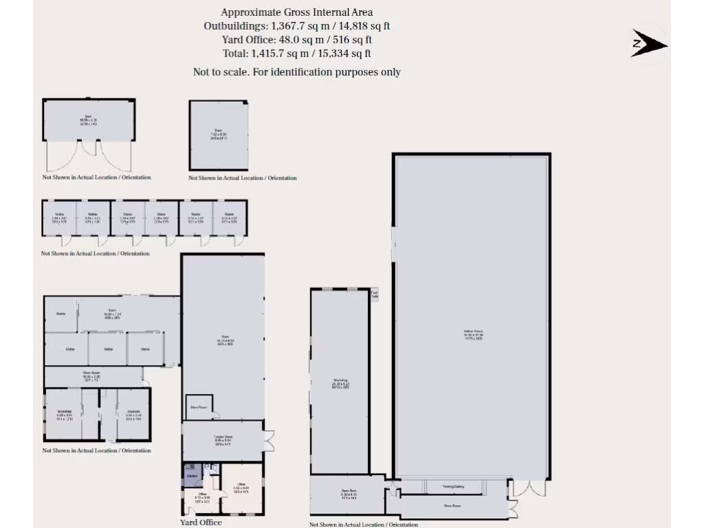
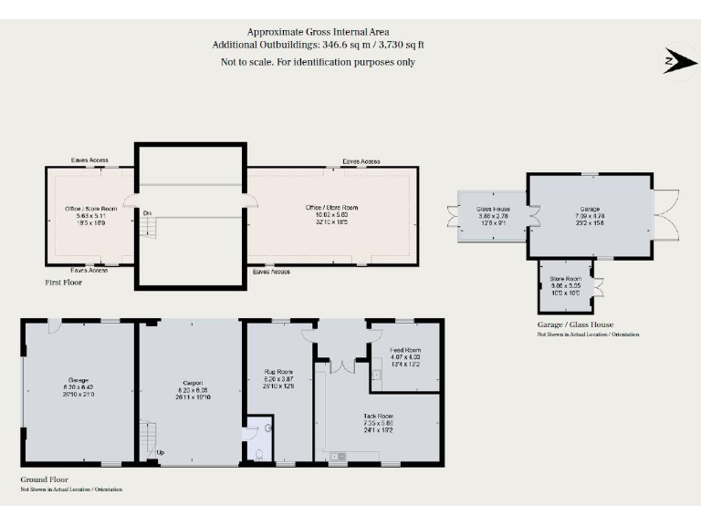
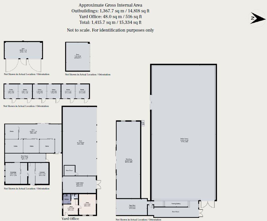
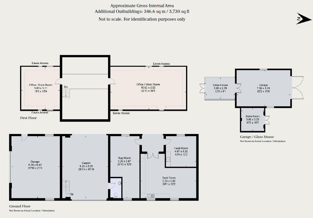
The equestrian complex is a core value driver: a modern indoor arena (approx. 36m x 17m) with sprinkler system, an outdoor ménage, well-maintained paddocks with mains water, 12 stables and substantial yard buildings that include workshop/agricultural storage. Ancillary income and operational advantages are provided by 210 solar panels (approx. £20,000–£25,000pa) and a superb barn office with a mezzanine, plus two separate two‑bed cottages and an office flat offering rental or staff accommodation.
Practical considerations are material. Listed status will constrain alterations and may complicate maintenance. The property is heated by oil-fired boilers, constructed with solid brick walls without modern cavity insulation (assumed), and benefits from double glazing installed post‑2002. Broadband speeds are slow despite excellent mobile signal; council tax is very expensive. There is a medium flood risk recorded for the area.
This estate offers strong potential for an equestrian operator, diversified agricultural or leisure business, or a purchaser seeking a private country home with income streams. Some buildings have potential for further stabling or repurposing, and planning permission exists (May 2023) to extend the kitchen into an orangery. Buyers should budget for listed‑building maintenance and possible retrofit works to improve energy performance.
Equestrian facility for sale in Gaskyns, Lyons Road, Slinfold, Horsham, West Sussex, RH13 — £5,350,000 • 5 bed • 5 bath • 15334 ft²
5 bedroom detached house for sale in Lyons Road, Slinfold, Horsham, West Sussex, RH13 — £2,950,000 • 5 bed • 5 bath • 5415 ft²
5 bedroom detached house for sale in Gaskyns House, Lyons Road, Slinfold, Horsham, West Sussex, RH13 — £2,950,000 • 5 bed • 5 bath • 5415 ft²
Equestrian facility for sale in Plumtree Cross Lane, Itchingfield, Horsham, West Sussex, RH13 — £3,750,000 • 8 bed • 1 bath • 12000 ft²
6 bedroom detached house for sale in Lyons Road, Slinfold, Horsham, West Sussex, RH13 — £2,250,000 • 6 bed • 4 bath • 3521 ft²
5 bedroom detached house for sale in Stane Street, Slinfold, Horsham, West Sussex, RH13 — £1,365,000 • 5 bed • 5 bath • 3740 ft²










































































































































