Chain-free flat with private garden close to Edmonton Green transport and shops.
Chain-free sale with a new lease on completion (172 years)
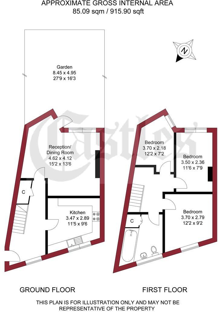
Private rear garden (small-to-average size) requiring clearing
About 1/4 mile to Edmonton Green shops and rail stations
Gas central heating and double glazing installed
Approx 915 sqft gross internal area, average-sized for a flat
Interior and communal areas need cosmetic refurbishment
Area flagged as very deprived; local crime levels high
Ground rent shown as £10; confirm service charges and tenure details
This chain-free, split-level ground-and-first-floor flat sits about a quarter-mile from Edmonton Green, putting shopping and two rail stations within easy walking distance. The property includes a private rear garden, gas central heating and double glazing, making it a practical starter home or a straightforward buy-to-let opportunity.
Internally the flat is lived-in and will benefit from cosmetic refurbishment — the kitchen, decoration and communal areas need updating and the garden requires clearing. These works are reflected in the asking price and create scope to add value for buyers happy to improve the property.
Tenure is leasehold with a new lease to be granted on completion (172 years reported). Service details are limited; ground rent is shown as £10 (amount unverified). Note: the location scores as very deprived locally and recorded local crime levels are high, which will be a consideration for some buyers or landlords.
Overall this is a modestly sized 3-bedroom flat of c. 915 sqft with realistic upside through renovation, plus the rare convenience of a private garden for this type of property. Suitably priced buyers looking for an affordable entry into the area or an investment requiring light-to-medium works should consider viewing.
3 bedroom maisonette for sale in Penn House, Edmonton, N9 — £290,000 • 3 bed • 1 bath • 829 ft²
2 bedroom flat for sale in Church Street, Edmonton, N9 — £320,000 • 2 bed • 1 bath • 550 ft²
1 bedroom flat for sale in Plevna Road, London, N9 — £190,000 • 1 bed • 1 bath • 485 ft²
2 bedroom flat for sale in Latymer Road, London, N9 — £285,000 • 2 bed • 1 bath • 529 ft²
1 bedroom ground floor flat for sale in Bunting Close, Edmonton, N9 — £200,000 • 1 bed • 1 bath • 498 ft²
1 bedroom flat for sale in Bury Street, London, N9 — £275,000 • 1 bed • 1 bath • 485 ft²






































































