Ready-to-build plot with panoramic fells views and existing foundations in sought-after village.
Planning consent for contemporary two-storey three-bedroom house (Ref: 7/2025/5286)
Freehold plot within Lake District National Park, strong fell and valley views
Existing stone garage with foundations in place; local stone and slate available
Decent plot for off-street parking, patio and modest garden
Local occupancy restriction applies; buyers must qualify to occupy
Mains water and electricity nearby; purchaser responsible for connections
Slow fixed broadband despite excellent mobile signal
Drainage currently connects to neighbouring septic tank; confirm arrangements
An unusual development opportunity in the heart of the Lake District, this stone-built plot in Troutbeck has planning consent for a contemporary two-storey three-bedroom home (Ref: 7/2025/5286). The design maximises the surrounding fell and valley views with an open-plan first-floor living area and balcony, and the existing outbuilding/garage already benefits from substantial foundations and local stone and slate availability, reducing early build uncertainty.
The plot sits in a small, private hamlet close to Windermere and local amenities including two pubs and a tea room. It is freehold and lies within the Lake District National Park, so the finished build must respect local character and quality. Services (mains water and electricity) are close by and drainage currently ties into a neighbouring septic tank; buyers must confirm and manage final service connections themselves.
Important restrictions and practical notes: the planning permission carries a local occupancy restriction — purchasers should check they meet the qualification criteria before committing. Broadband speeds are slow despite excellent mobile signal. The plot is a decent size for parking and a garden or patio, but immediate garden space is modest, and the surrounding setting is rural rather than private estate-like.
This site will suit a purchaser seeking a high-quality Lakeland home or a sympathetic conversion with good potential to capture panoramic views. It is not a turnkey purchase: building, final connections and compliance with National Park build standards remain the buyer’s responsibility.
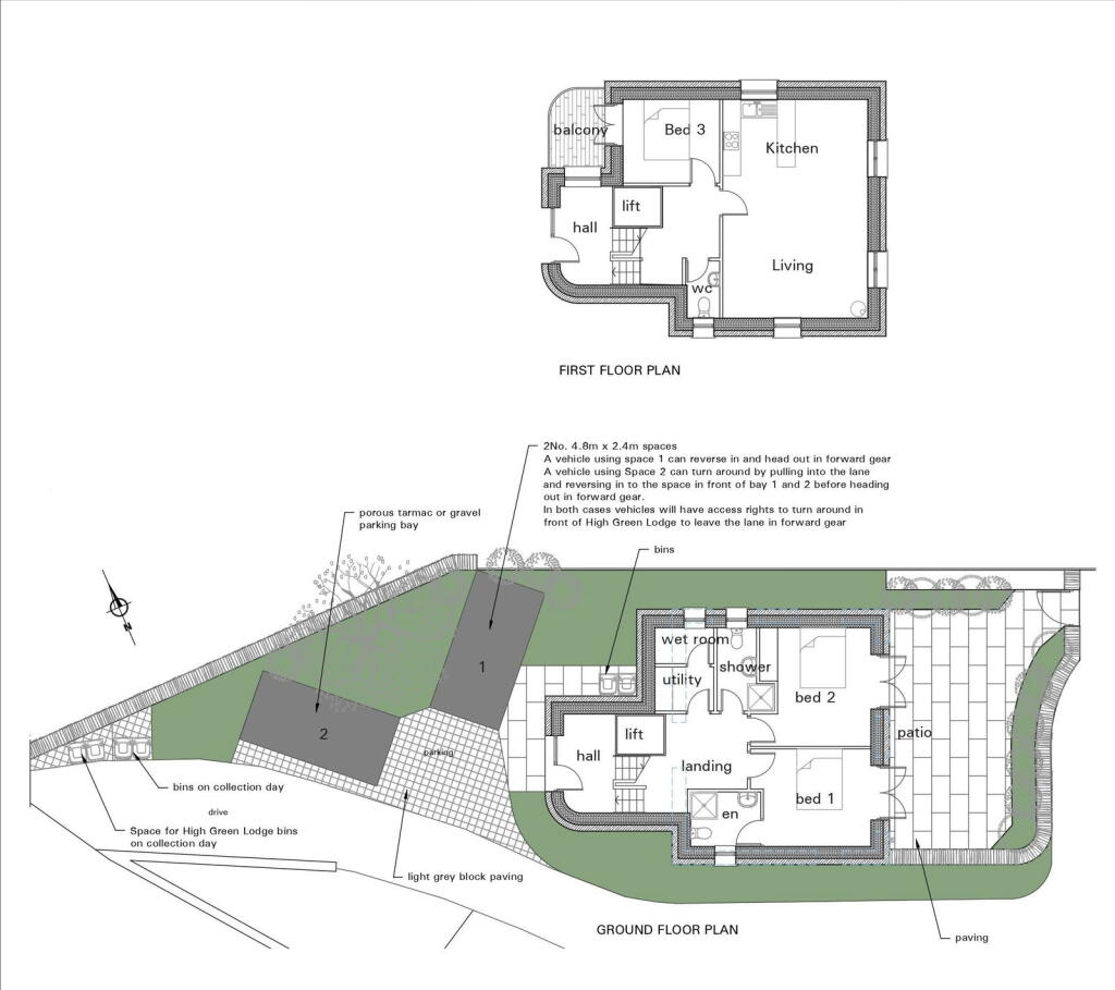
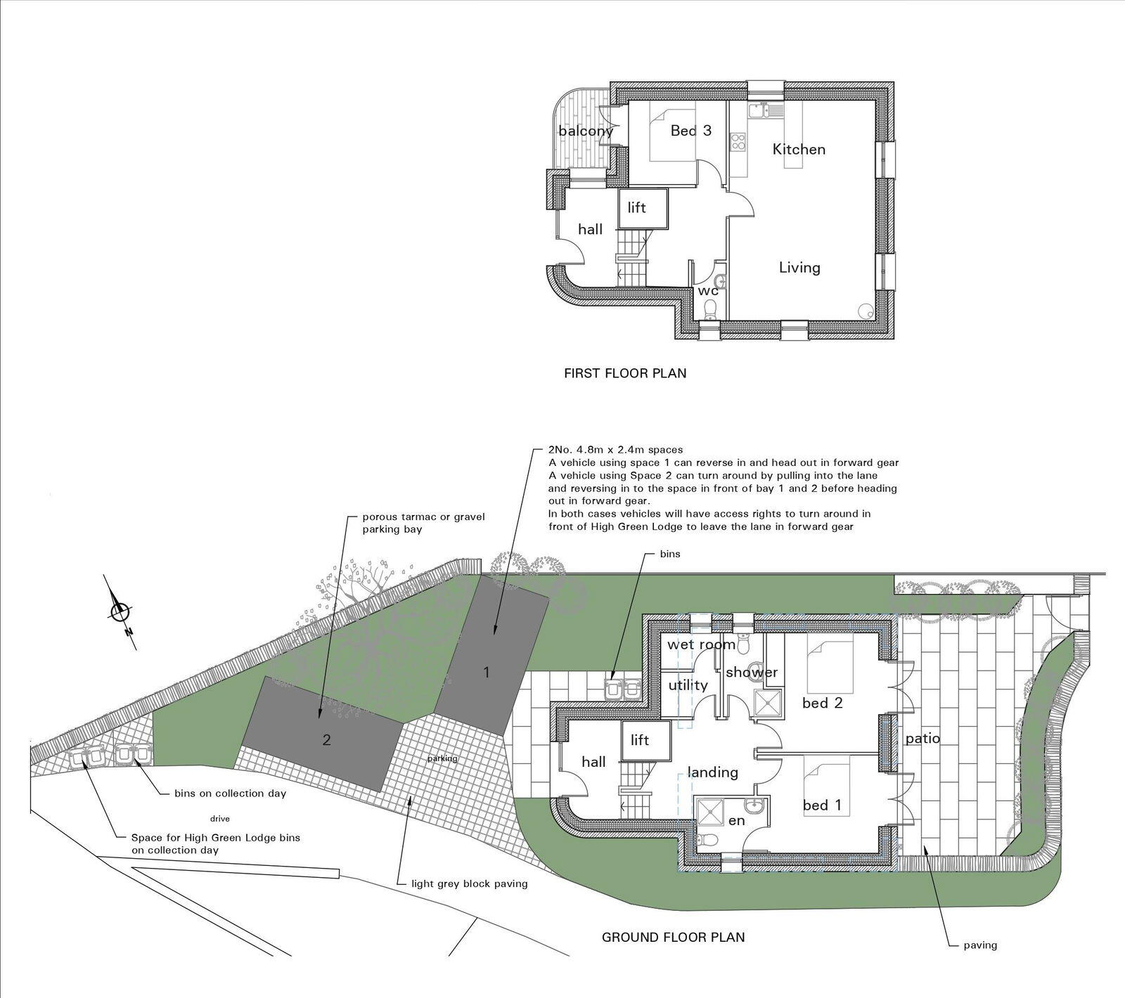
2 bedroom ground floor flat for sale in High Green Lodge, Troutbeck, Cumbria LA23 1PN, LA23 — £475,000 • 2 bed • 2 bath • 1054 ft²
5 bedroom detached house for sale in 2 Orchard Mount, Troutbeck, Windermere, The Lake District, LA23 1PJ, LA23 — £950,000 • 5 bed • 3 bath • 1590 ft²
Plot for sale in No. 3, Edlan Place, Old Hall Road, LA23 1JA, LA23 — £275,000 • 4 bed • 2 bath • 2573 ft²
4 bedroom detached house for sale in Newhouse, Troutbeck, Windermere, LA23 1PF, LA23 — £795,000 • 4 bed • 1 bath • 986 ft²
5 bedroom detached house for sale in Troutbeck Farmhouse, LA23 — £1,795,000 • 5 bed • 4 bath • 3084 ft²
2 bedroom cottage for sale in Applethwaite Cottage, 2 Birkhead Cottages, Troutbeck, Windermere, Cumbria LA23 1PQ, LA23 — £495,000 • 2 bed • 2 bath • 738 ft²














































