Chain-free, tenanted three-bed in central Warrington ideal for yield-focused buyers.
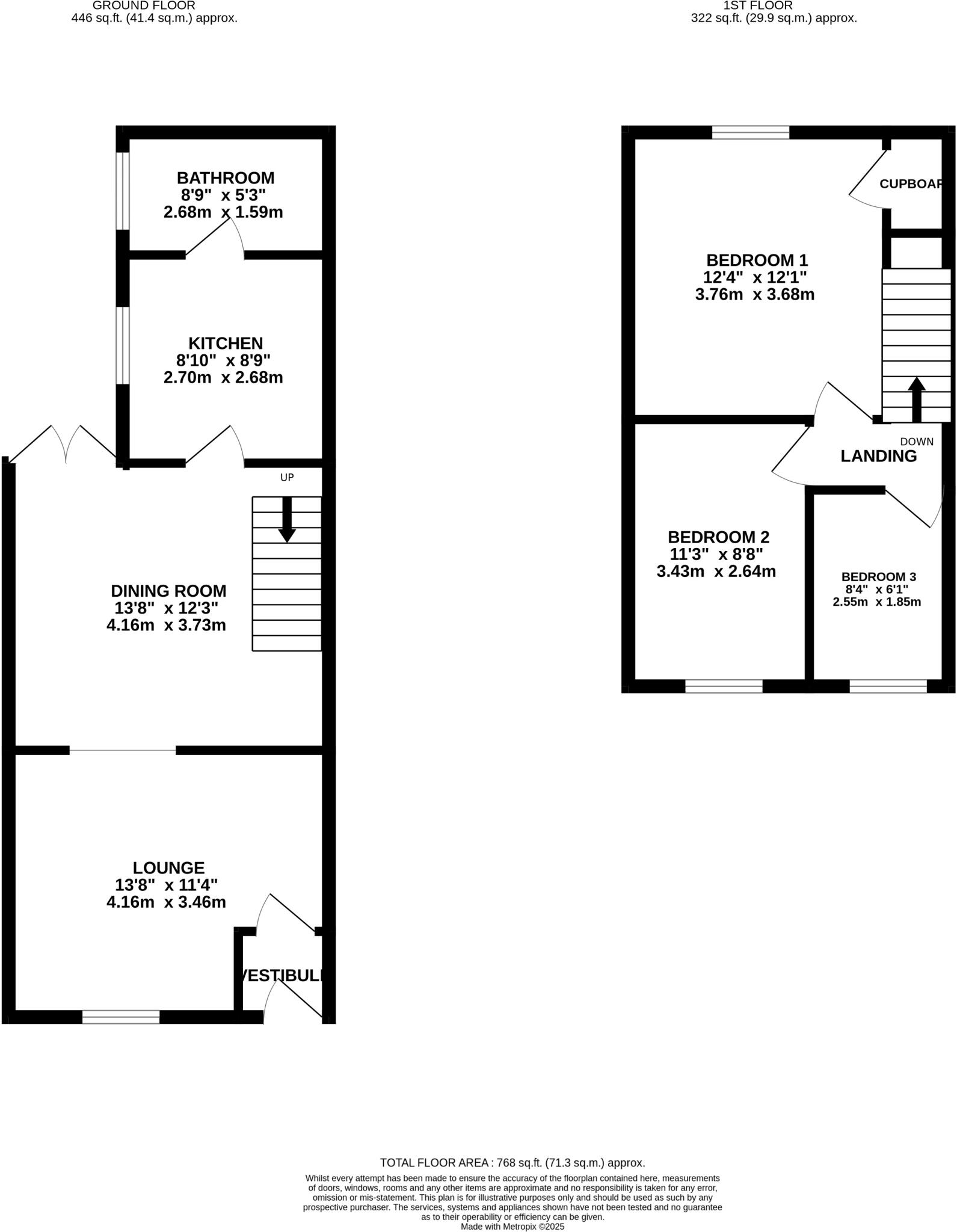
Three bedrooms and two reception rooms suitable for rental occupancy
Current income £9,372 per annum; tenant in situ (investor sale)
Chain free — straightforward legal process expected
Small rear plot, no front garden or driveway
Solid brick pre-1900 construction; likely no wall insulation
EPC rating D — may have higher than average heating costs
Located in a very deprived area with high local crime statistics
Ground-floor bathroom and compact room sizes; some modernisation possible
A straightforward buy-to-let in WA2, this Victorian mid-terrace offers three bedrooms, two reception rooms and a steady rental income of £9,372 pa with tenants in situ. The house is presented in neutral, tenant-ready condition and is offered chain-free, allowing an efficient purchase for an investor looking to add an income-producing asset.
The property footprint is compact with a small rear plot and no front garden. Construction is solid brick (pre-1900) and double glazed; there is assumed lack of wall insulation which, together with the EPC D rating, may mean higher heating costs than modern standards. The bathroom is on the ground floor and the layout is the traditional linear terrace plan — practical but not spacious.
Location provides easy access to public transport, local amenities and pleasant nearby walking routes, supporting consistent tenant demand. Important negatives for investors to note: the area is very deprived with high local crime statistics, tenure is unknown on the legal pack, and viewings may be limited while the property is tenanted. These factors affect management, insurance and re-letting risk and should be checked before purchase.
3 bedroom end of terrace house for sale in Sheffield Close, Warrington, WA5 — £185,000 • 3 bed • 1 bath • 797 ft²
3 bedroom terraced house for sale in Alpass Avenue, Warrington, WA5 — £179,950 • 3 bed • 1 bath • 818 ft²
3 bedroom terraced house for sale in Winifred Street, Warrington, WA2 — £150,000 • 3 bed • 1 bath • 948 ft²
3 bedroom terraced house for sale in Sharp Street, Warrington, WA2 — £150,000 • 3 bed • 1 bath • 753 ft²
3 bedroom terraced house for sale in Downall Green Road, Ashton in Makerfield WN4 0LZ, WN4 — £145,000 • 3 bed • 1 bath • 1082 ft²
2 bedroom terraced house for sale in Amelia Street, Warrington, Cheshire, WA2 — £119,500 • 2 bed • 1 bath • 705 ft²






































