Immediate rental income from a compact freehold home in a well-connected Warrington suburb..
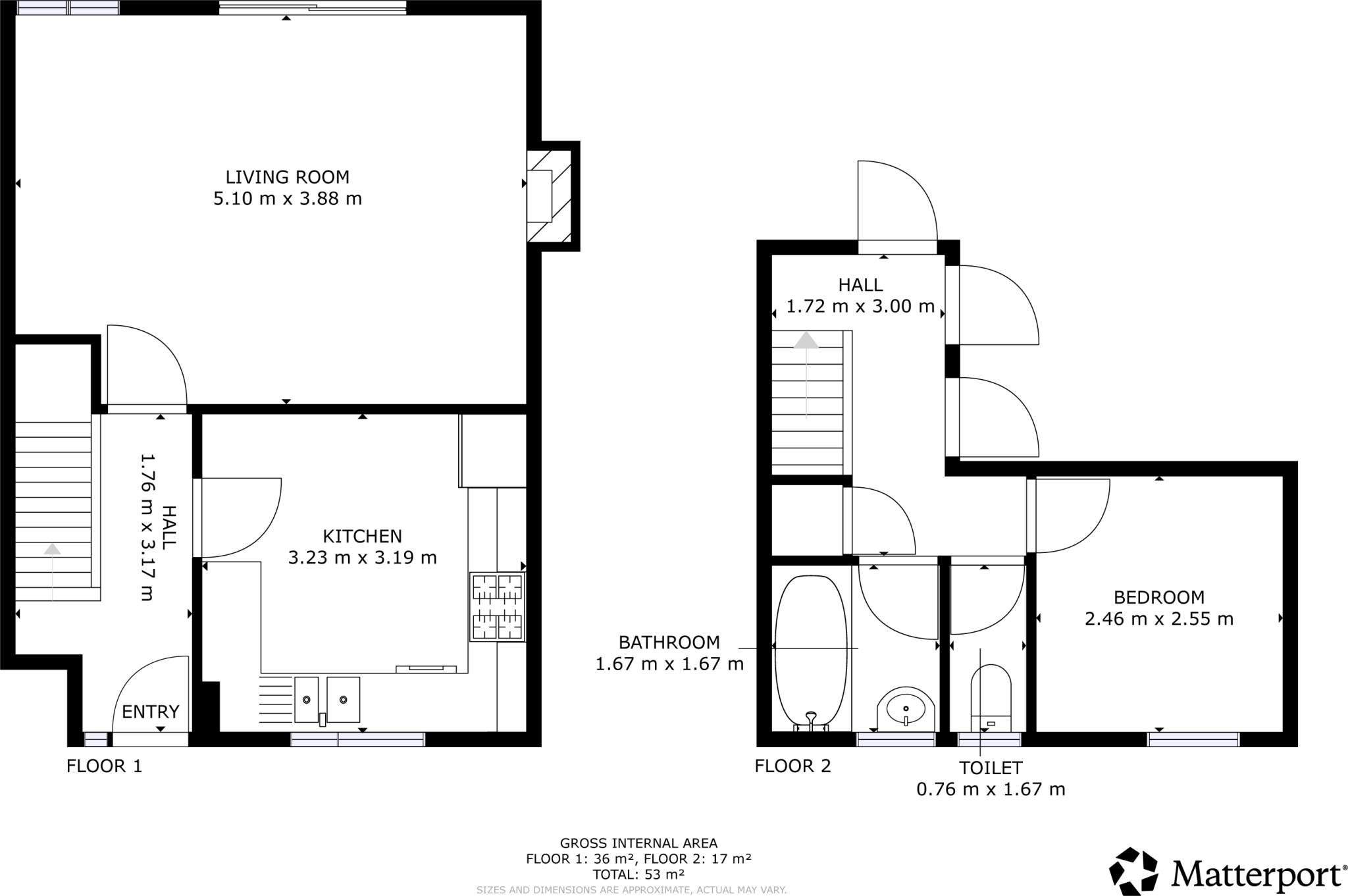
- Freehold three-bedroom end-of-terrace, approx. 797 sq ft
- Produces £11,400 gross annual income (tenant in situ)
- Potential uplift to ~£1,150/month rents (sales literature estimate)
- Small front and rear gardens; limited external space
- Street parking only; no private driveway
- Located in deprived area; average local crime levels
- Buyer’s premium applies on purchase
- Long-standing tenants expect to remain in property
A straightforward buy-to-let in WA5 offering immediate income and simple maintenance. The freehold, three-bedroom end-of-terrace currently produces £11,400 gross per year from long-standing tenants, making it suitable for investors seeking steady cashflow without vacancy risk.
The house is compact (approx. 797 sq ft) with small front and rear gardens, street parking and a brick 1970s facade that presents reasonable kerb appeal. Broadband speeds are reported as fast and the property has no flood risk, supporting rental demand in the area.
Buyers should note this sits in a deprived, working-class neighbourhood with average crime levels and limited plot size. The property is sold with tenants in situ and a buyer’s premium applies — good for investors but unsuitable for immediate owner-occupation. Interested parties should review the Let Property Pack and arrange a full inspection to confirm condition and potential upgrade costs.
5 bedroom terraced house for sale in Portland Road, Warrington, WA5 — £275,000 • 5 bed • 3 bath • 1313 ft²
2 bedroom flat for sale in Pinehurst Walk, Boston Boulevard, Warrington, Cheshire, WA5 — £110,000 • 2 bed • 2 bath • 603 ft²
1 bedroom flat for sale in Central Way, Warrington, WA2 — £108,000 • 1 bed • 1 bath
3 bedroom terraced house for sale in May Street, WA3 — £120,000 • 3 bed • 1 bath • 807 ft²
3 bedroom terraced house for sale in Alpass Avenue, Warrington, WA5 — £179,950 • 3 bed • 1 bath • 818 ft²
3 bedroom terraced house for sale in Winifred Street, Warrington, Cheshire, WA2 — £140,000 • 3 bed • 1 bath • 742 ft²


















































