Large town-centre unit with four private parking spaces and modern finishes.
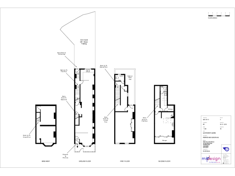
Self-contained office over basement, ground and two upper floors
A substantial, self-contained office in the heart of Altrincham’s Oxford Road corridor, this mid-terrace property extends to 1,861 sq ft arranged over basement, ground, first and second floors. The building presents neutral, modern finishes and benefits from rear access plus four designated car parking spaces — an uncommon convenience for town-centre offices. Broadband is fast and mobile signal is excellent, supporting modern occupiers.
The location sits on a busy, well-known commercial street with a mix of retail and professional occupiers, providing good footfall and local amenity. Nearby schools and leisure facilities add to the area’s broad appeal. The building’s period façade and bay window give character while the internal layout offers a combination of open-plan and cellular spaces suitable for office occupiers or continued investment letting.
Note the practical considerations: external amenity is limited (no garden and a small forecourt), and the property sits on a busy high street so noise and footfall are factors. Rating assessments combine to an RV of £22,750; the occupier/purchaser should confirm liabilities and obligations. Documentation references both freehold tenure and availability by way of a new full repairing & insuring lease — this should be clarified as part of due diligence.
For investors or owner-occupiers seeking a central, well-connected office with rare allocated parking and strong broadband/mobile connectivity, this property offers scale and flexibility. Confirm tenure, exact outgoings, and any lease arrangements before committing.
Office for sale in Unit 16 Edward Court, Altrincham Business Park, Altrincham, WA14 5GL, WA14 — £695,000 • 1 bed • 1 bath • 4025 ft²
Office for sale in Altrincham, WA14 — £85,000 • 1 bed • 1 bath • 389 ft²
Office for sale in 3 Retiro Street, Oldham, OL1 — £95,000 • 1 bed • 1 bath • 438 ft²
Office for sale in Unit 8, Edward Court, Altrincham Business Park, George Richards Way, Altrincham, WA14 5GL, WA14 — £400,000 • 1 bed • 1 bath • 4000 ft²
Office for sale in Marsland Road, Sale, Greater Manchester, M33 — £365,000 • 1 bed • 1 bath • 956 ft²
Office for sale in Unit 26, Edward Court, Altrincham Business Park, George Richards Way, Altrincham, WA14 5GL, WA14 — £675,000 • 1 bed • 1 bath • 5000 ft²






















































