HA0 1DW - 3 bed wembley three bedroom in Lily Gardens, HA0 1DW

View on Property Piper

3 bedroom semi-detached house for sale in Lily Gardens, Alperton, Wembley, HA0

Summary - 56 Lily Gardens HA0 1DW

3 bed 1 bath Semi-Detached

A traditional family home with garden and parking, ideal for improvement projects.
Three bedrooms with good room sizes
Private rear garden for outdoor living
Off-street driveway parking included
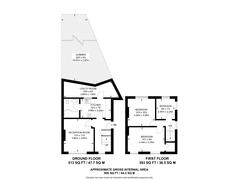
Approximately 906 sq ft on a small plot
Single bathroom only — may need adding/updating
Kitchen shows wear and needs refurbishment
Solid brick walls assumed uninsulated — energy upgrades advised
Freehold tenure; mains gas heating and double glazing
Set over two floors, this three-bedroom semi-detached house offers practical family living in a popular Wembley neighbourhood. The reception room is a comfortable social space and the private garden provides outdoor space for children and pets. Off-street parking adds useful convenience for busy households.

The home sits on a small plot and measures approximately 906 sq ft, with three good-sized bedrooms and one bathroom. The kitchen is modern in style but shows wear and will benefit from refurbishment to meet contemporary standards. The property is freehold and constructed in the early 20th century, offering period character alongside straightforward layout potential.

Practical utilities are in place: mains gas central heating with a boiler and radiators, double glazing (install date unknown), fast broadband and excellent mobile signal. Note the external walls are original solid brick with assumed no insulation, which could affect energy efficiency and future improvement costs. Local schools include two outstanding-rated primaries and several highly regarded independent options, making this a sensible choice for families.

Property Details

Image Descriptions

Floorplan Description

Rooms

Textual Property Features

Target Audience

AI Tags

Detected Visual Features

EPC Details

Nearby Schools

Nearest Bars And Restaurants

,,,,}

Nearest General Shops

,,}

Nearest Grocery shops

,,}

Nearest Supermarkets

,,}

Nearest Religious buildings

,,}

Nearest Medical buildings

,,,}

Nearest Airports

,}

Nearest Leisure Facilities

,,,,}

Nearest Tourist attractions

,,}

Nearest Train stations

,,,,}

Nearest Bus stations and stops

,,,,}

Nearest Hotels

,,}

Tags

Local Market Stats

AirBnB Data

Similar Properties

Meta

High Res Images

Compatible Images

Low res Images

Thumbnails

Raw Images

High Res Floorplan Images

Compatible Floorplan Images

Low res Floorplan Images

FloorplanImages Thumbnail

Raw Floorplan Images