Large rooms, garden and garage near Wembley Central, ideal for growing households.
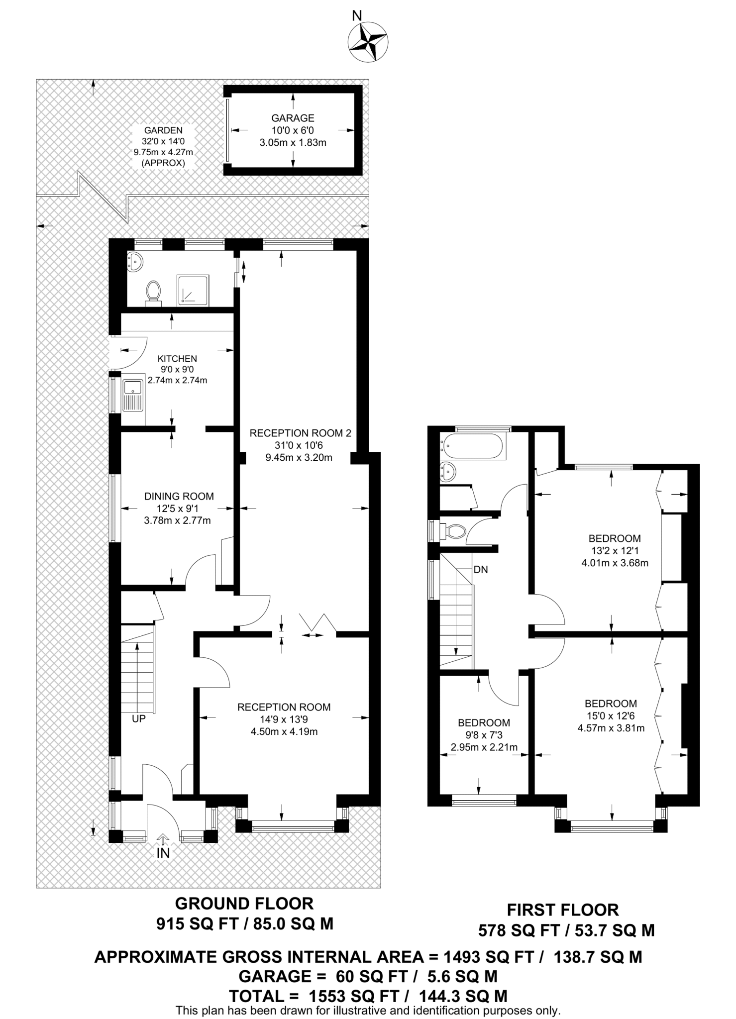
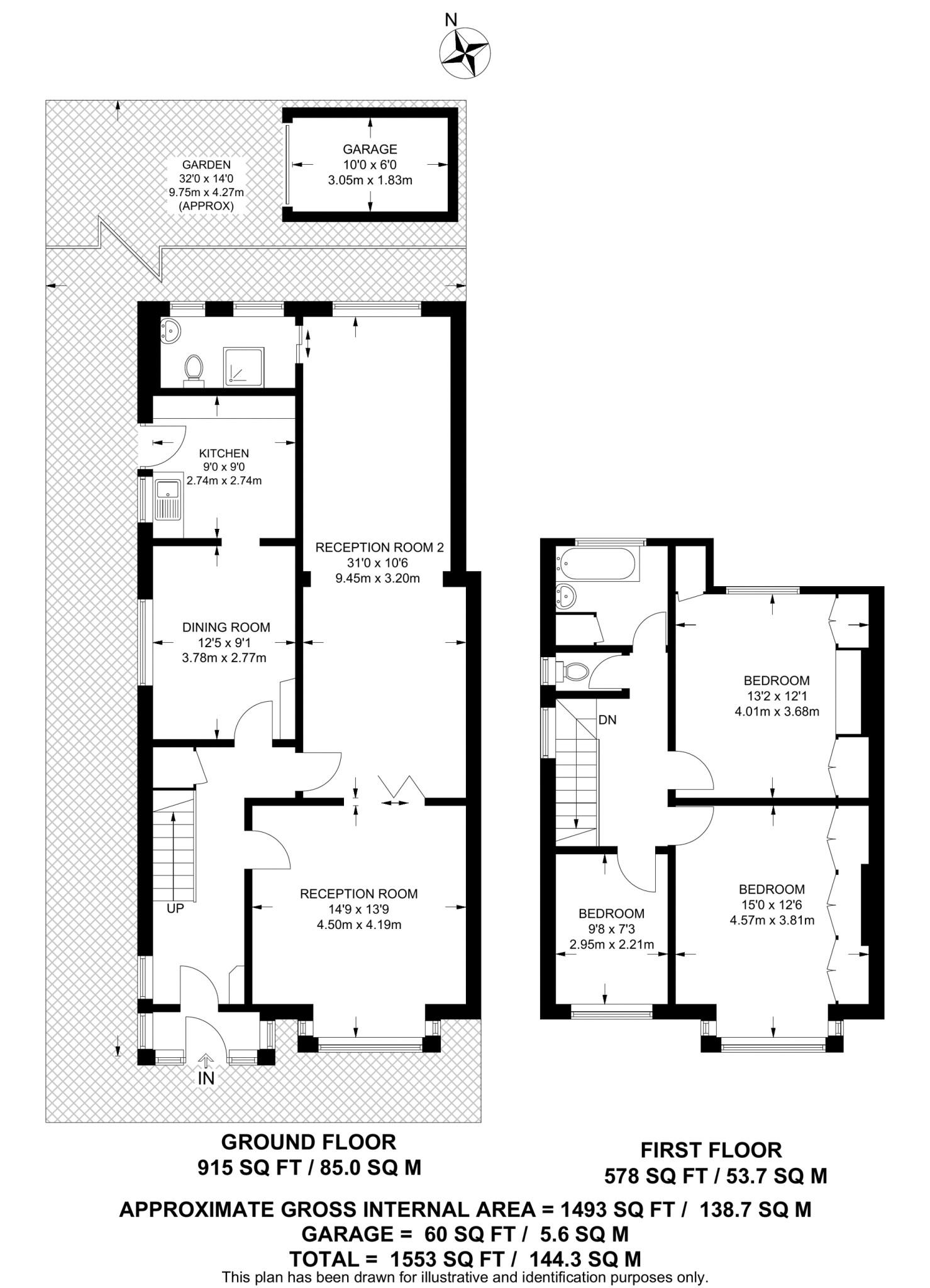
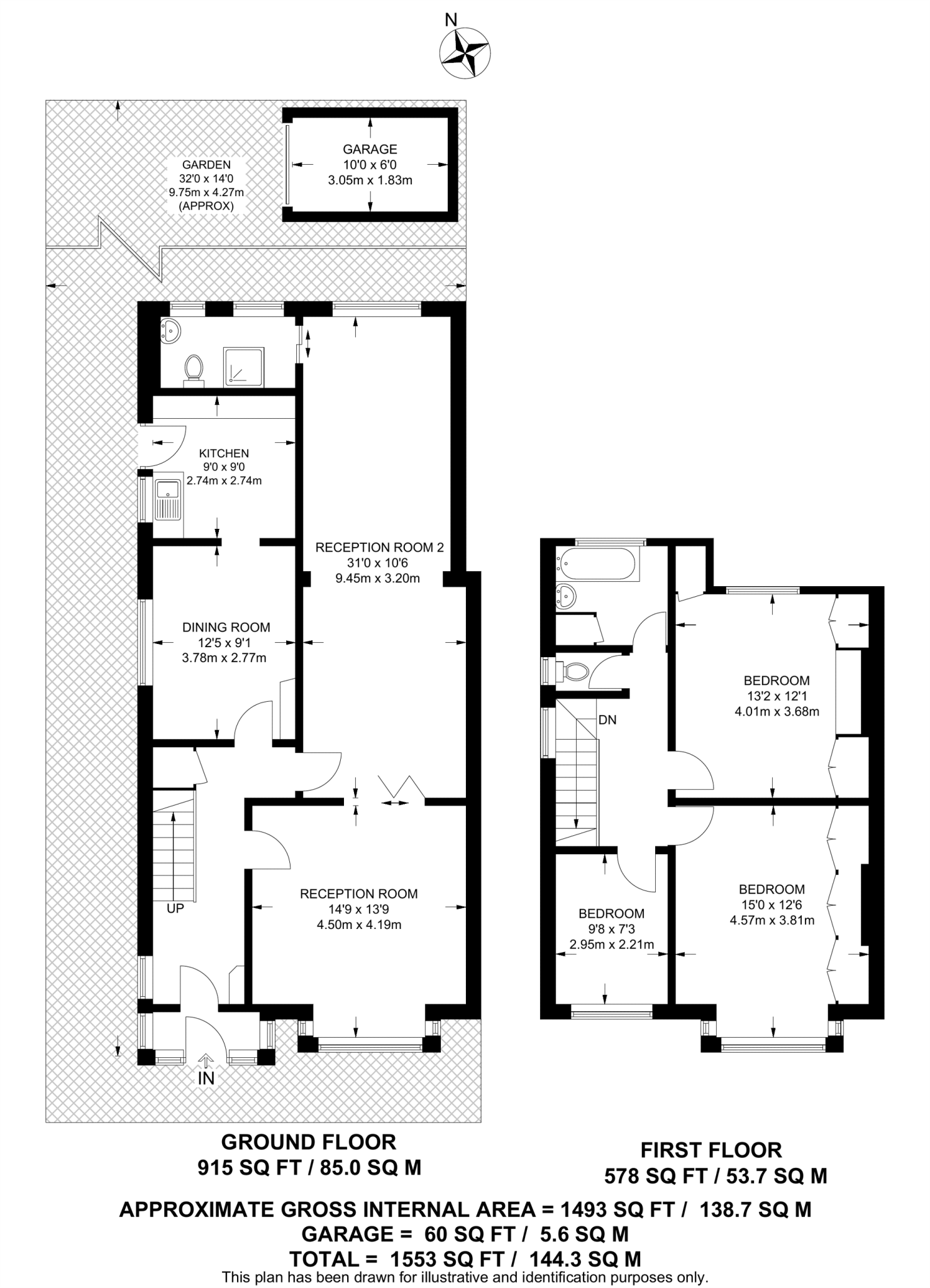
Three large bedrooms with good natural light
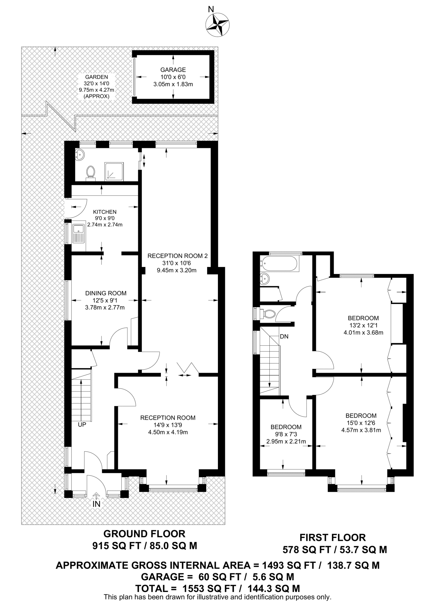
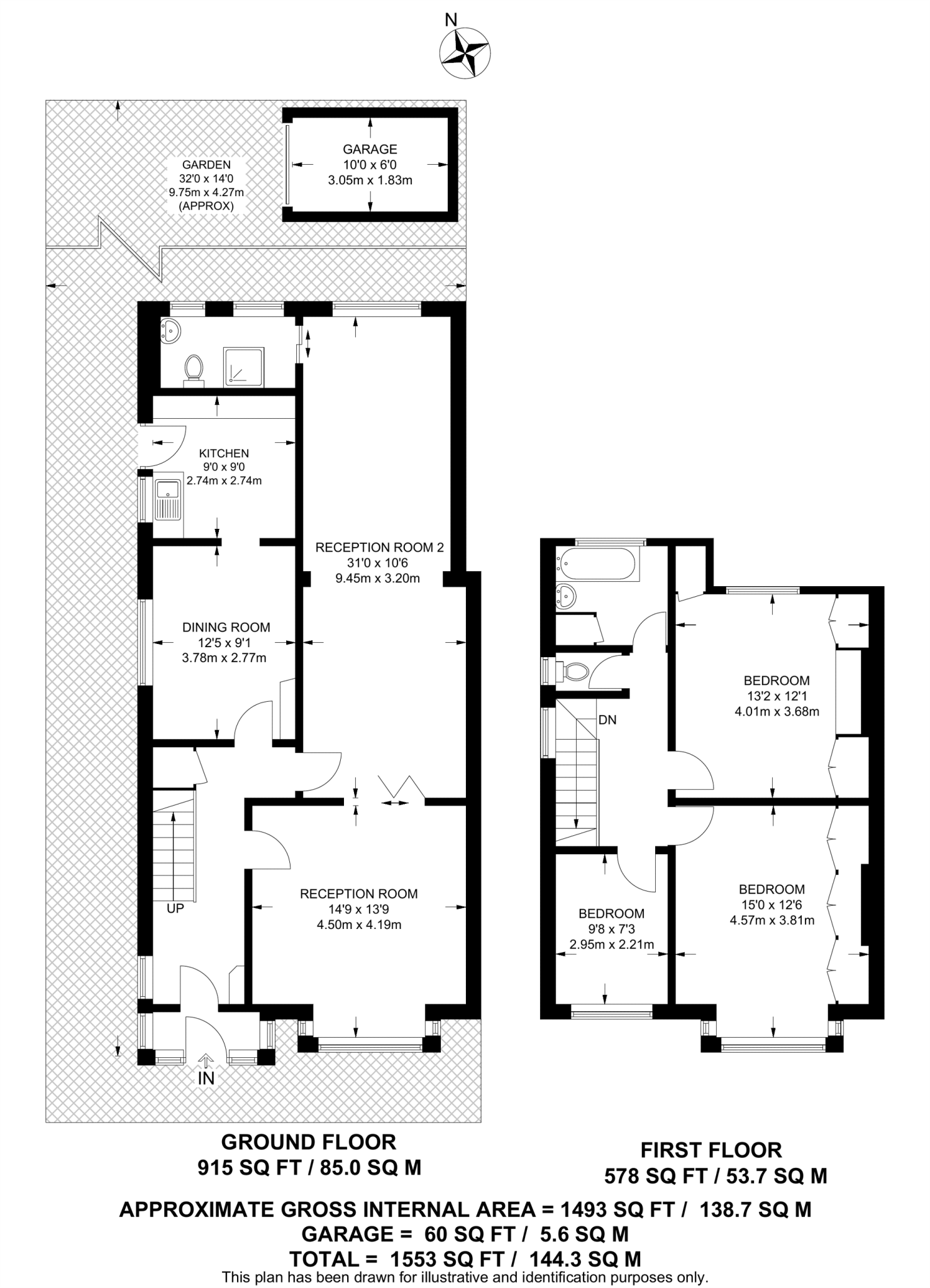
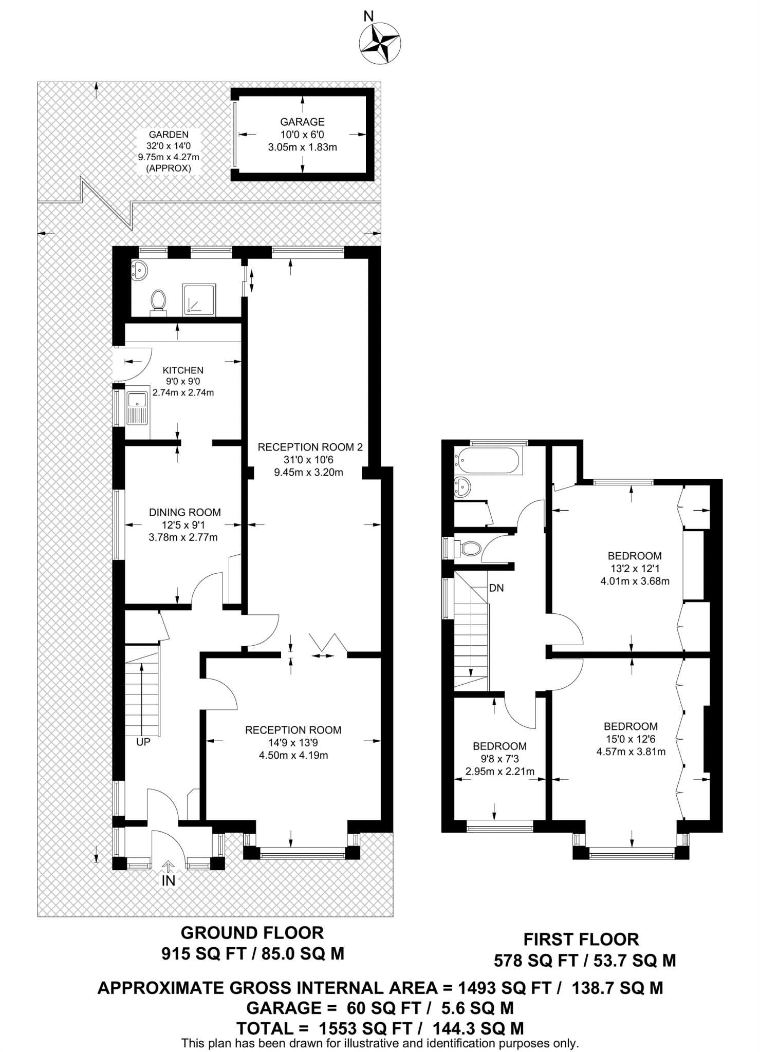
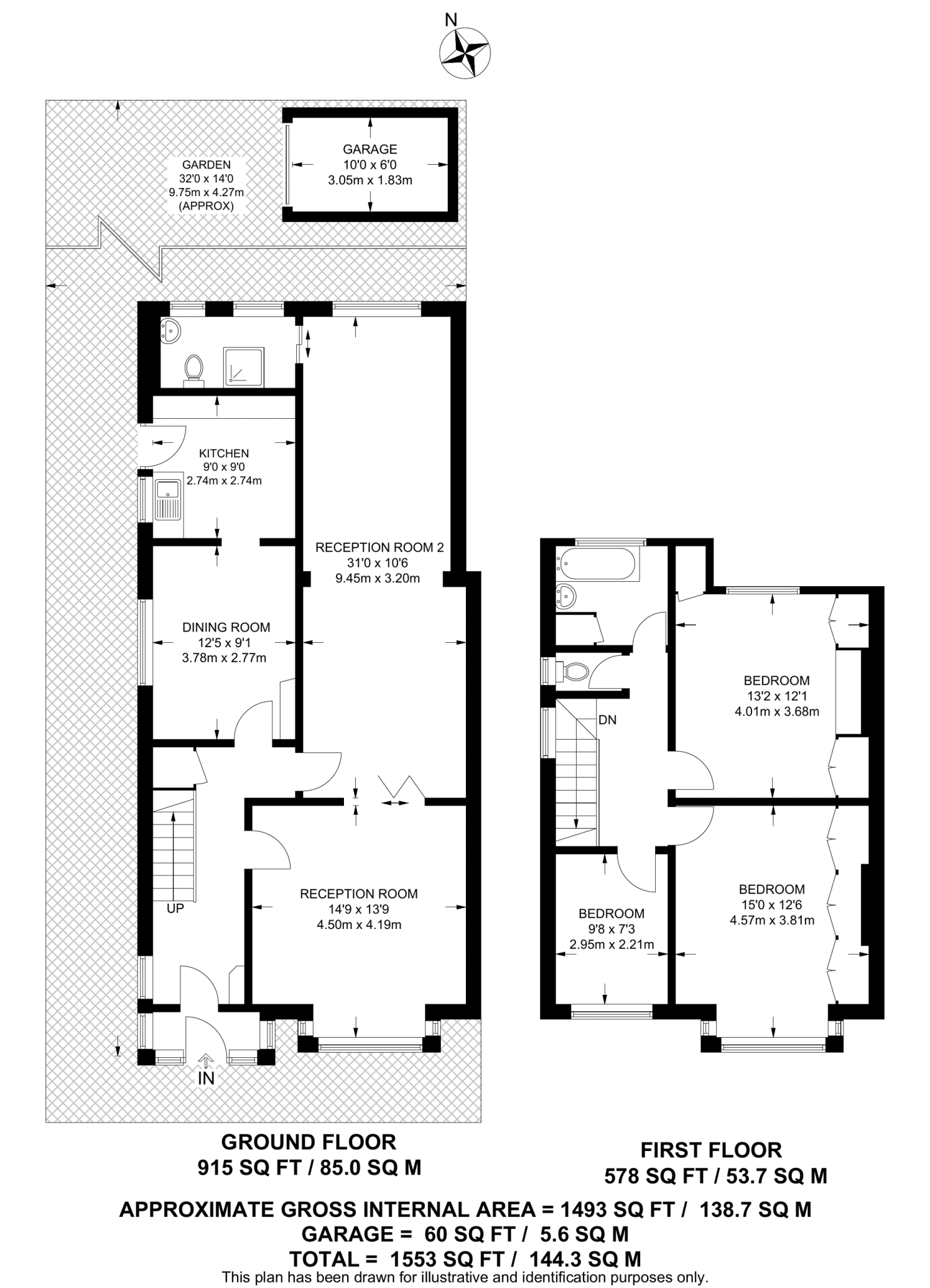
This substantial 1930s end-of-terrace offers generous living space across multiple floors, with three large bedrooms and two sizeable reception rooms. Extended ground-floor accommodation includes a kitchen with a dining area and good-sized rear garden — practical for family life and entertaining.
Practical benefits include gated off-street parking, a garage, side access to the garden, double glazing (installed before 2002) and mains gas central heating. The property is Freehold and located centrally in Wembley, close to Wembley Central transport links, schools and local amenities.
The house retains period character but shows signs of wear. Some rooms are dated and will benefit from renovation or modernisation; walls are solid brick with assumed no cavity insulation. Crime levels in the area are above average, which buyers should factor into security and insurance considerations.
This home suits families wanting space and scope to personalise, or investors looking for a larger property with refurbishment potential in a well-connected postcode. Flood risk is low and broadband and mobile connectivity are strong, supporting working-from-home arrangements.
5 bedroom semi-detached house for sale in Park View, Wembley, HA9 — £951,000 • 5 bed • 3 bath • 1431 ft²
3 bedroom terraced house for sale in Lonsdale Avenue, Wembley, HA9 — £650,000 • 3 bed • 1 bath • 1087 ft²
3 bedroom semi-detached house for sale in Lily Gardens, Alperton, Wembley, HA0 — £600,000 • 3 bed • 1 bath • 906 ft²
4 bedroom house for sale in Berkhamsted Avenue, Wembley, HA9 — £900,000 • 4 bed • 2 bath • 2627 ft²
3 bedroom semi-detached house for sale in Wyld Way, Wembley, HA9 — £625,000 • 3 bed • 1 bath • 1088 ft²
3 bedroom terraced house for sale in Park View, Wembley, HA9 — £650,000 • 3 bed • 1 bath • 1311 ft²


































































































































































































































































































































































































































































