Bright, modern flat with balcony views and excellent transport links.
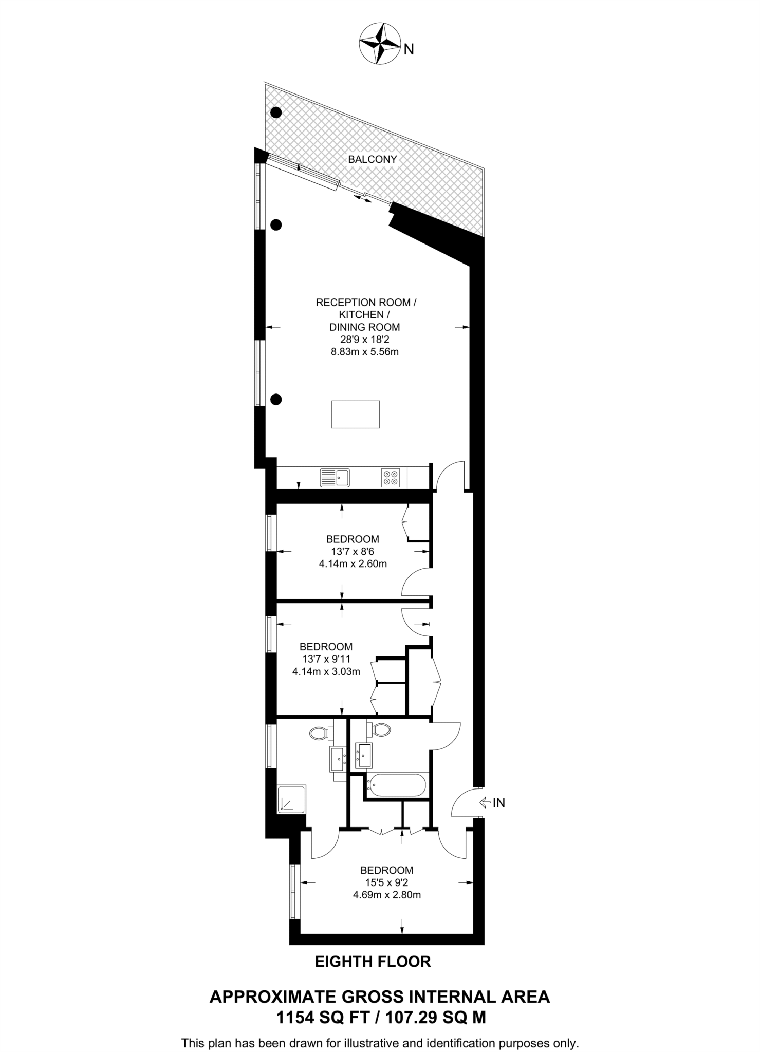
Newly renovated three-bedroom flat, 1,154 sq ft
This newly renovated three-bedroom flat in Royal Docks offers bright, contemporary living across an ample 1,154 sq ft. A large open-plan reception and kitchen leads to a private balcony with clear views over East London and the O2 — ideal for relaxed family entertaining or evening sunsets.
The apartment includes two modern bathrooms, plentiful fitted storage and well-proportioned bedrooms. Transport links are a strong selling point with easy access to the Elizabeth Line and local buses, plus nearby green space at Thames Barrier Park and several well-rated primary and secondary schools.
Practical details worth noting: the property is leasehold with 134 years remaining, serviced by a community heating scheme and electricity supply. Service charge and ground rent are above-average at £7,600 and £300 respectively, which will affect running costs. The surrounding area is an inner-city, multicultural neighbourhood with areas of deprivation, though local crime is low and amenities are plentiful.
Overall this is a bright, move-in ready flat that suits families seeking space, schools and transport convenience, or investors looking for strong rental appeal in a well-connected Docklands location.
3 bedroom flat for sale in Tyburn Gardens, E16, Docklands, London, E16 — £600,000 • 3 bed • 2 bath • 1000 ft²
2 bedroom flat for sale in Adriatic Apartments, E16, Docklands, London, E16 — £530,000 • 2 bed • 2 bath • 962 ft²
3 bedroom flat for sale in Westgate Apartments, Royal Docks, London, E16 — £480,000 • 3 bed • 2 bath • 782 ft²
3 bedroom apartment for sale in Alaska Apartments, Royal Victoria Dock, London, E16 — £700,000 • 3 bed • 2 bath • 1140 ft²
3 bedroom apartment for sale in Royal Docks West, 12 Western Gateway, London, E16 — £675,000 • 3 bed • 2 bath • 1021 ft²
3 bedroom flat for sale in Boyd Building, Gallions Reach, London, E16 — £560,000 • 3 bed • 2 bath • 1136 ft²


























































































































































































































































































































































