**Standout Features:**
- Rare building plot with full planning permission approved
- Plans for a luxurious 3,500 sq. ft detached home with double garage
- Approximately 0.4 acres in an exclusive development of only 8 homes
- Mains water, electricity, and drainage connected; alternative heating solutions encouraged
- Short walk to the picturesque River Hamble
**Notable Concerns:**
- No gas services currently connected; must consider alternative heating
- Annual maintenance charges to be detailed
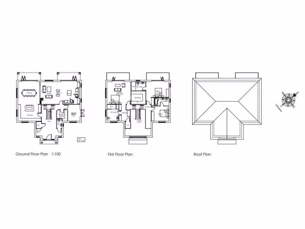
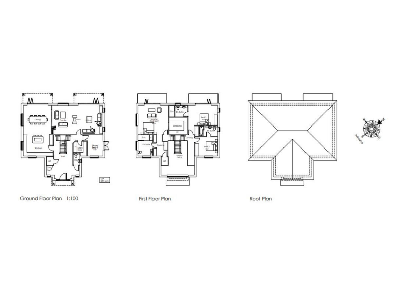
Discover an exceptional opportunity to build your dream home in the serene setting of Brook Avenue, Warsash. This prime plot comes with full planning permission for a stunning 3,500 sq. ft detached residence featuring modern design elements and luxurious amenities, providing ample space for comfort and family living. Nestled within a small, private development of only 8 luxury homes, you'll enjoy a peaceful atmosphere within steps of the scenic River Hamble.
The proposed layout boasts a welcoming entrance hall with an elevator, a spacious open-plan kitchen and dining room, a cozy lounge with garden views, and a versatile study that can double as a fourth bedroom. Upstairs, the lavish master suite awaits, complete with a dressing room and private balcony, along with two additional en-suite bedrooms.
Situated within a family-friendly area, this plot offers easy access to excellent schools, making it a perfect choice for families. Connect effortlessly to the M27, adding convenience for commutes or leisure travel. Take advantage of the flexibility to personalize your home plans to perfectly reflect your vision, with the potential for significant savings on stamp duty.
With its enviable location and development potential, this plot won't last long. Seize the chance to create your sanctuary in this highly sought-after area today!
Land for sale in Brook Avenue, Warsash,, SO31 — £700,000 • 5 bed • 4 bath • 3000 ft²
5 bedroom detached house for sale in Brook Avenue, Warsash, SO31 — £2,250,000 • 5 bed • 3 bath • 3704 ft²
5 bedroom detached house for sale in Brook Avenue, Warsash, SO31 — £1,750,000 • 5 bed • 3 bath • 2606 ft²
Land for sale in Brook Avenue, Warsash, Southampton, Hampshire, SO31 — £700,000 • 1 bed • 1 bath • 4420 ft²
Plot for sale in Brook Avenue, Warsash, SO31 — £700,000 • 1 bed • 1 bath • 3000 ft²
Plot for sale in Gurnard, Isle of Wight, PO31 — £595,000 • 3 bed • 3 bath • 3700 ft²






















