**Standout Features:**
- Rare opportunity to build a bespoke 3,000 sq. ft. detached home
- Full planning permission granted
- Generous plot size of approximately 0.4 acres
- Close proximity to the picturesque River Hamble
- Secluded setting backed by Holly Hill's serene woodland
- Excellent accessibility to utilities, ideal for development
- Significant stamp duty savings available
- Flexible planning for potential self-build and customization
**Summary:**
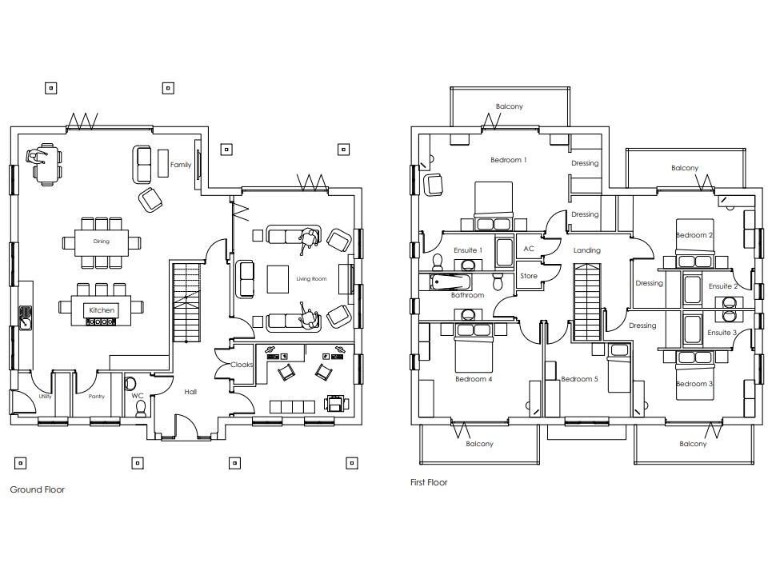
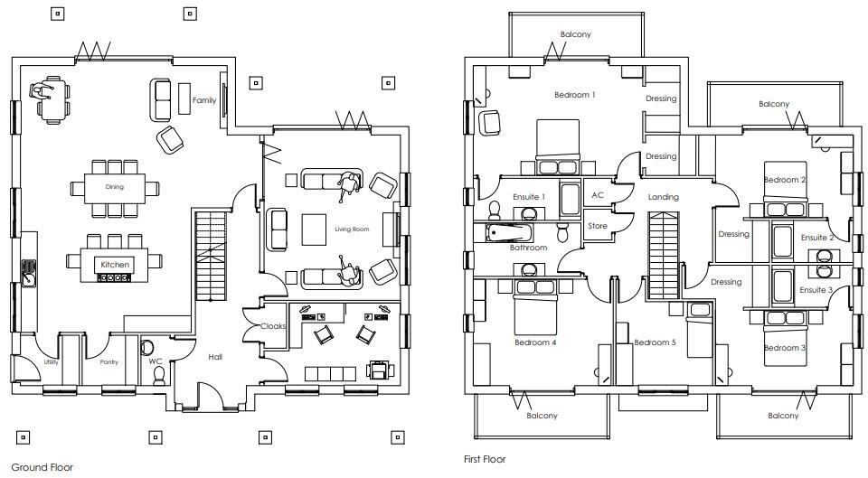
Discover the rare chance to design your dream home in an exclusive small development on Brook Avenue, Warsash. This pristine plot, set within a former garden nursery, allows for a luxurious 3,000 sq. ft. detached residence with an inviting entrance, a spacious open-plan kitchen/dining area, and a stunning lounge overlooking lush woodland. The first floor promises comfort with a main suite featuring a dressing room, en-suite bathroom, and private balcony, alongside two additional en-suite bedrooms.
Surrounded by nature yet conveniently located near the serene River Hamble, this opportunity combines tranquility with accessibility. The spacious corner plot, serviced by basic infrastructure, ensures you can tailor your build to fit your needs. With excellent schools nearby and a family-friendly atmosphere in an affluent area, this property is perfect for families seeking comfort, exclusivity, and room to grow. Don’t miss this unique opportunity—envision creating your sanctuary in this idyllic setting before it’s gone!
Plot for sale in Brook Avenue, Warsash, SO31 — £700,000 • 1 bed • 1 bath • 3000 ft²
Land for sale in Brook Avenue, Warsash, Southampton, Hampshire, SO31 — £700,000 • 1 bed • 1 bath • 4420 ft²
Plot for sale in Brook Lane, Warsash, SO31 — £520,000 • 1 bed • 1 bath • 4000 ft²
Plot for sale in Brook Lane, Warsash, SO31 — £375,000 • 1 bed • 1 bath • 2500 ft²
Land for sale in Brook Avenue Warsash Southampton, Hampshire, SO31 9HN, SO31 — £700,000 • 1 bed • 1 bath • 17424 ft²
Plot for sale in Willow Drive, Soberton, Southampton, Hampshire, SO32 — £450,000 • 1 bed • 1 bath • 3750 ft²






















