**Standout Features:**
- Spectacular 3.2-acre plot with approved planning for a contemporary 2-storey house
- Breathtaking views over Thorness Bay and The Solent
- Spacious open-plan layout, including a principal bedroom suite with en-suite
- Additional planning for a double carport, store room, and home office
- Recently refurbished Scandi-style cabin, fully functional with electricity and water
- Private drainage system already installed
- Low crime area with local amenities just a short drive away
**Summary:**
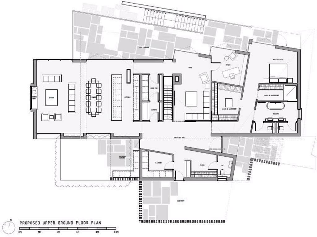
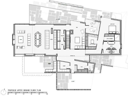
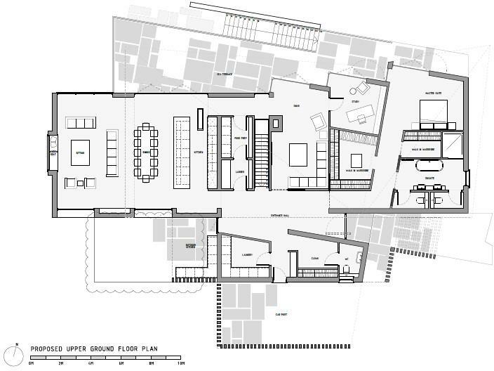
Seize the rare opportunity to build your dream home on this stunning 3.2-acre plot in Gurnard, Isle of Wight, with approved planning (reference 21/00315/FUL) for a spacious contemporary residence. Envision a lifestyle enriched by serene sea views and an expansive open-plan design, featuring generous living and dining areas that seamlessly connect with the outdoors. The proposed layout emphasizes comfort with three substantial bedrooms, including a luxurious principal suite, promising a bright, airy atmosphere thanks to large windows.
The plot's tranquil and rural setting is underpinned by lush green surroundings and the seclusion of matured woodlands, creating a peaceful retreat. A refurbished cabin offers an immediate escape, complete with its own amenities and stunning views. Although internet speeds may be slow, indulge in the bliss of coastal living. With all essential infrastructure in place, this property invites investors or families to visualize a bright future in a place where nature and privacy converge. Don’t miss your chance to claim this exclusive slice of paradise!
Plot for sale in Gurnard, Isle of Wight, PO31 — £595,000 • 3 bed • 3 bath • 3700 ft²
4 bedroom detached house for sale in Cranmore, Isle of Wight, PO41 — £1,499,000 • 4 bed • 4 bath • 7147 ft²
7 bedroom house for sale in Wootton Bridge, Isle Of Wight, PO33 — £1,795,000 • 7 bed • 7 bath • 11535 ft²
Plot for sale in New Road, PO33 — £995,000 • 1 bed • 1 bath
8 bedroom detached house for sale in Yarmouth, Isle of Wight, PO41 — £2,200,000 • 8 bed • 4 bath • 6410 ft²
3 bedroom detached house for sale in Ryde, Isle of Wight, PO33 — £695,000 • 3 bed • 3 bath • 1916 ft²






















































































