Compact one-bedroom apartment ideal for cash buyers or local investors near the station.
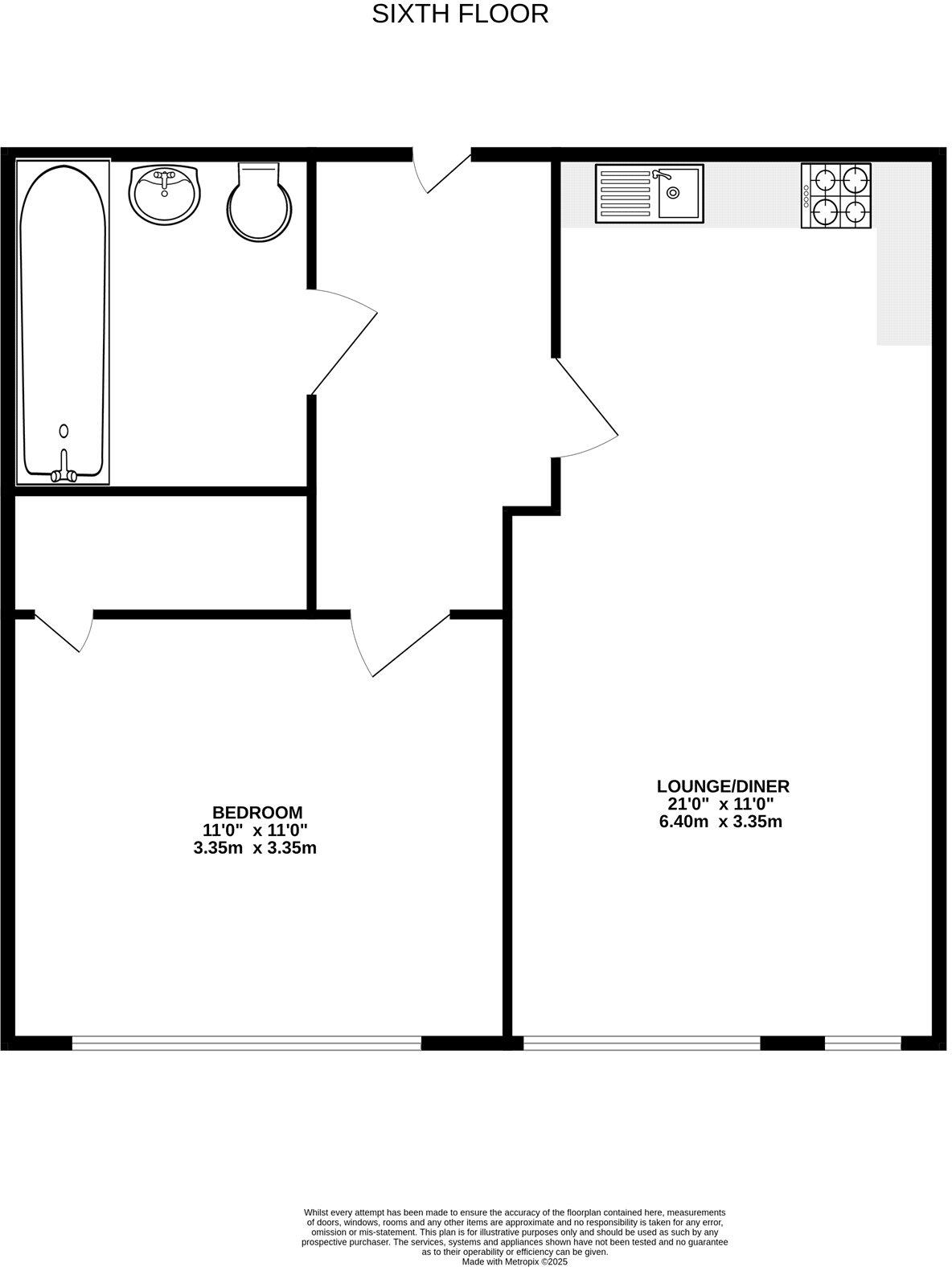
Sixth-floor flat with lift access and town-centre location
Set on the sixth floor with lift access, this one-bedroom apartment offers compact, town-centre living a short walk from Aldershot train station and local amenities. The flat has an open-plan lounge with a fitted kitchen, a double bedroom and a recently replaced bathroom. An EPC rating of B and double glazing give reasonable energy performance for an upper-floor apartment.
Important practical details affect mortgageability and running costs. The lease sits at 80 years remaining as at March 2025 (short for lenders) — many mortgage providers may refuse lending unless the lease is extended. Service charges are substantial at about £2,520 per year and heating is by electric storage heaters, which can push running costs higher than gas-heated properties.
This property is sold chain-free and may suit a cash buyer or an investor able to manage lease extension and service-charge commitments. The building dates from the late 1960s/early 1970s and has system-built walls that are assumed uninsulated; further refurbishment or insulation work could improve comfort and reduce energy costs. Viewings are recommended for buyers who prioritise central location and immediate possession.
1 bedroom flat for sale in Ascot Court, Aldershot, Hampshire, GU11 — £130,000 • 1 bed • 1 bath • 463 ft²
2 bedroom flat for sale in Ascot Court, Aldershot, Hampshire, GU11 — £175,000 • 2 bed • 1 bath • 452 ft²
1 bedroom apartment for sale in Station Road, Aldershot, Hampshire, GU11 — £150,000 • 1 bed • 1 bath • 515 ft²
1 bedroom flat for sale in Alice Road, Aldershot, Hampshire, GU11 — £145,000 • 1 bed • 1 bath • 360 ft²
1 bedroom apartment for sale in Frederick Street, Aldershot, Hampshire, GU11 — £125,000 • 1 bed • 1 bath • 614 ft²
1 bedroom flat for sale in Ascot Court, Aldershot, Hampshire, GU11 — £110,000 • 1 bed • 1 bath • 345 ft²






























