Compact one-bedroom with long lease and quick walk to Aldershot station, ideal for commuters..
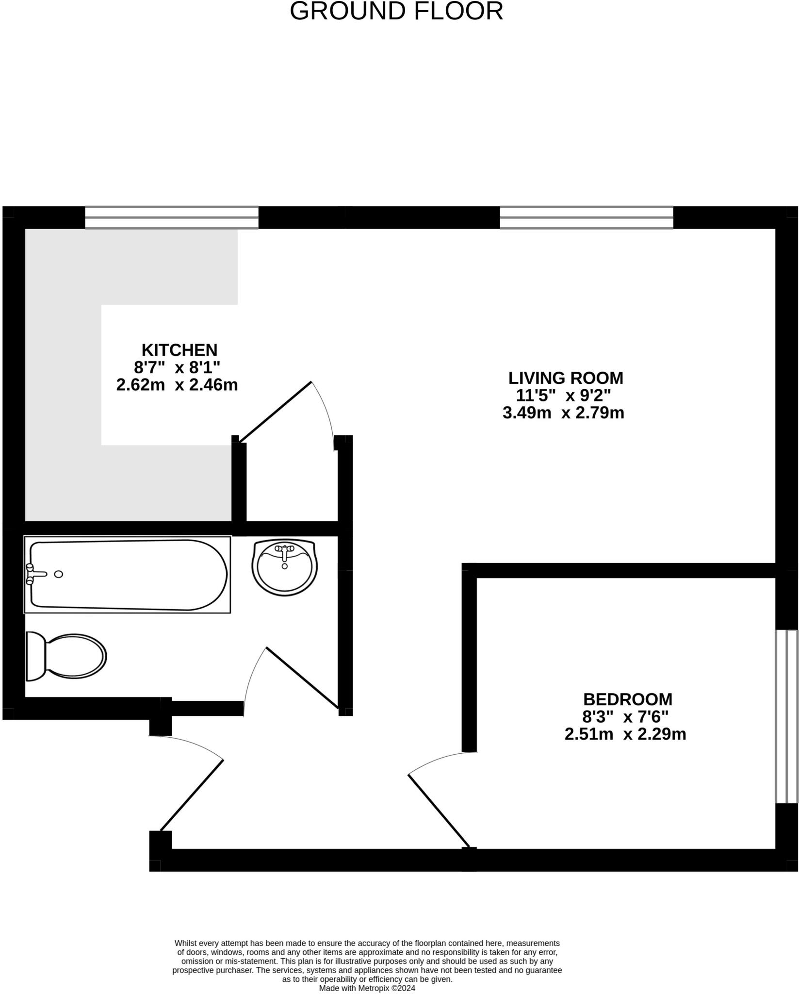
Ground-floor one-bedroom, approx. 345 sq ft
Long lease — c.116 years remaining; chain-free
Excellent for commuters — short walk to Aldershot station
Modern kitchen and bathroom; move-in ready
Electric room heaters (no gas central heating) — potentially higher running costs
Service charge ~£234.85/month; ground rent £150/year
Permit/off-street parking available; fast broadband, excellent mobile signal
Area has above-average crime and higher local deprivation
A bright ground-floor one-bedroom apartment with a long lease and no onward chain, well suited to first-time buyers or commuters. The living room, modern kitchen and bathroom make the apartment move-in ready, while double glazing and a C (67) EPC provide reasonable running efficiency.
Positioned a short walk from Aldershot station, the flat is genuinely convenient for regular rail commuters and benefits from fast broadband and excellent mobile signal. Off-street/permit parking and low council tax (Band A) further reduce monthly running costs. The lease extends well beyond a typical minimum at around 116 years remaining.
Buyers should note the property is small (about 345 sq ft) and heated by electric room heaters rather than a central gas system — running costs may be higher in winter. Service charges are relatively high at about £234.85 per month (circa £2,818 pa) and ground rent is payable (£150 pa). The local area records above-average crime and is in a generally deprived locality, which may affect resale for some buyers.
Overall this is a compact, practical option for a single occupant or couple seeking a commuter-friendly, low-stress purchase with rental potential (estimated £850 pcm). It suits someone prioritising location and convenience over generous internal space; inspect to confirm condition and running costs before deciding.
1 bedroom flat for sale in Birchett Road, Aldershot, Hampshire, GU11 — £159,900 • 1 bed • 1 bath • 496 ft²
1 bedroom flat for sale in Ascot Court, Aldershot, Hampshire, GU11 — £130,000 • 1 bed • 1 bath • 560 ft²
1 bedroom flat for sale in St. Michaels Road, Aldershot, Hampshire, GU12 — £130,000 • 1 bed • 1 bath • 392 ft²
1 bedroom apartment for sale in Ascot Court, Aldershot, Hampshire, GU11 — £130,000 • 1 bed • 1 bath • 678 ft²
1 bedroom flat for sale in Newport Road, Aldershot, Hampshire, GU12 — £145,000 • 1 bed • 1 bath • 335 ft²
1 bedroom flat for sale in Ascot Court, Aldershot, Hampshire, GU11 — £130,000 • 1 bed • 1 bath • 463 ft²


































