Large plot, two garages and flexible 3/4 bedroom layout — renovation opportunity close to town..
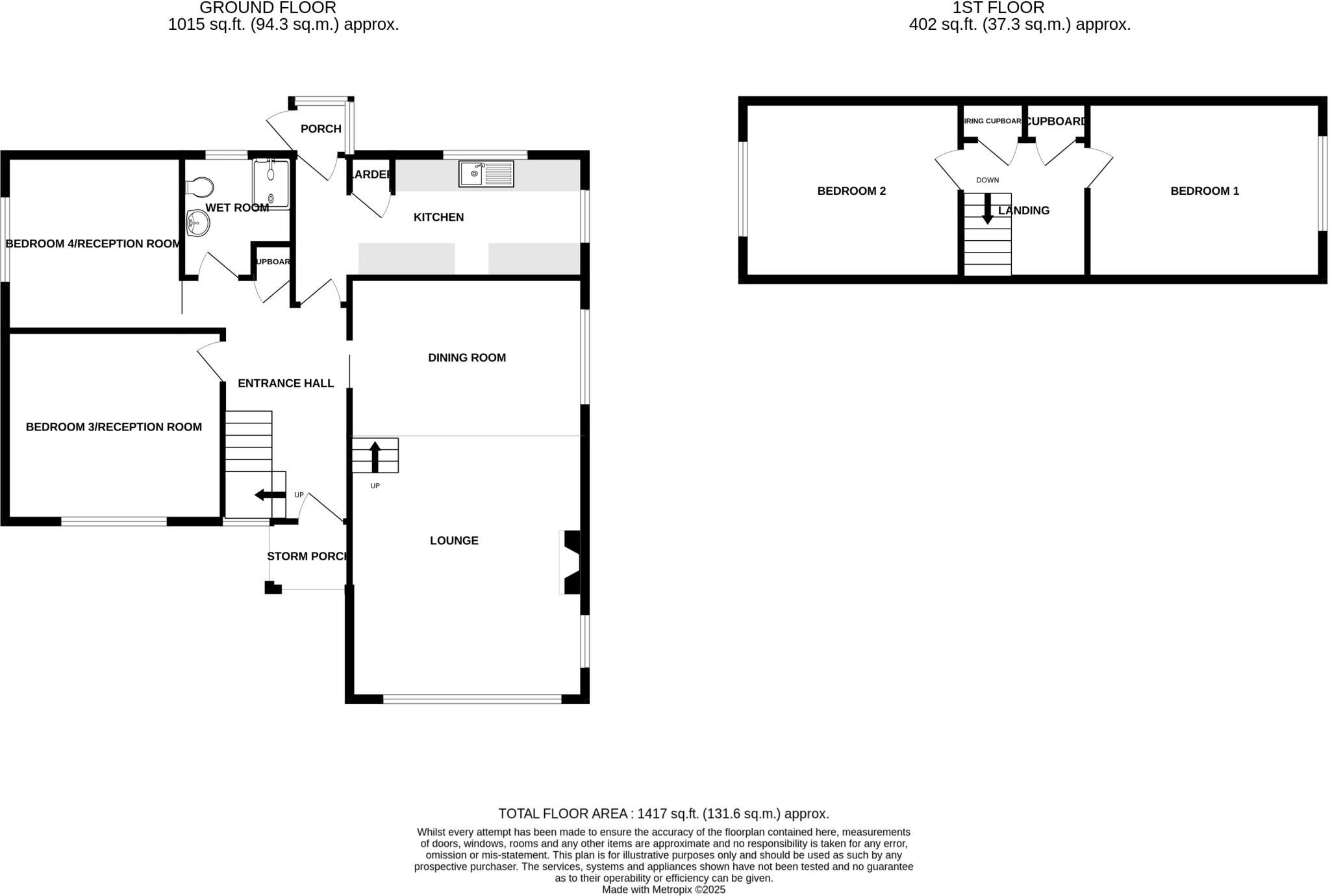
- Detached 3/4 bedroom chalet bungalow on a large plot
- 26ft lounge/diner with dual-aspect windows and raised dining area
- Two garages, driveway parking and enclosed private patio
- Chain free sale and freehold tenure
- Needs renovation throughout; ideal for updating and improvement
- Only ground-floor wet room; upstairs bathroom requires added services
- Cavity walls assumed uninsulated; energy improvements likely needed
- Local area: high crime and social deprivation; council tax above average
Set over two levels, this detached 3/4 bedroom chalet bungalow sits on a large plot close to Chard town centre. A bright 26ft lounge/diner with dual-aspect windows and a raised dining area gives generous living space, while the fitted kitchen includes a built-in larder and good appliance space. Two ground-floor bedrooms and a wet room provide flexible living; two further double bedrooms occupy the first floor with fitted storage cupboards.
Outdoors there is a driveway, off-street parking and two single garages, plus gardens and a private enclosed patio with external W.C. Practical benefits include double glazing and mains gas central heating (back-boiler). The property is chain free and sold freehold, offering scope to add value through updating and reconfiguring the upstairs bathroom (subject to services).
Important considerations: the house needs renovation and updating throughout, with cavity walls likely uninsulated. Current accommodation includes only a ground-floor wet room; an upstairs bathroom would require new services. The area has higher crime and relative deprivation, and council tax sits above average — factors to weigh alongside the property’s size and potential.
This home will suit buyers seeking space and scope to modernise — families wanting flexible layout, or DIY-focused purchasers looking to add value. Internal viewing is recommended to appreciate the accommodation, plot and conversion potential.
4 bedroom detached house for sale in Mitchell Gardens, Chard, Somerset, TA20 — £435,000 • 4 bed • 2 bath • 1837 ft²
3 bedroom bungalow for sale in Monmouth Court, Chard, Somerset, TA20 — £375,000 • 3 bed • 2 bath • 1266 ft²
3 bedroom bungalow for sale in Elder Close, Chard, Somerset, TA20 — £235,000 • 3 bed • 2 bath • 983 ft²
2 bedroom bungalow for sale in Summerfields Road, Chard, Somerset, TA20 — £219,500 • 2 bed • 1 bath • 722 ft²
4 bedroom detached house for sale in Manor Farm, Chard, Somerset, TA20 — £325,000 • 4 bed • 1 bath • 944 ft²
4 bedroom detached house for sale in Court Mill Lane, Wadeford, Chard, TA20 — £575,000 • 4 bed • 1 bath • 2340 ft²






















































































































































