TA20 2EB - 4 bed fourbedroom detached home in Yeovil, TA20 2EB

View on Property Piper

4 bedroom detached house for sale in Manor Farm, Chard, Somerset, TA20

Summary - 15, MANOR FARM, CHARD TA20 2EB

4 bed 1 bath Detached

Large garden and garage; tidy but needs modernisation throughout.
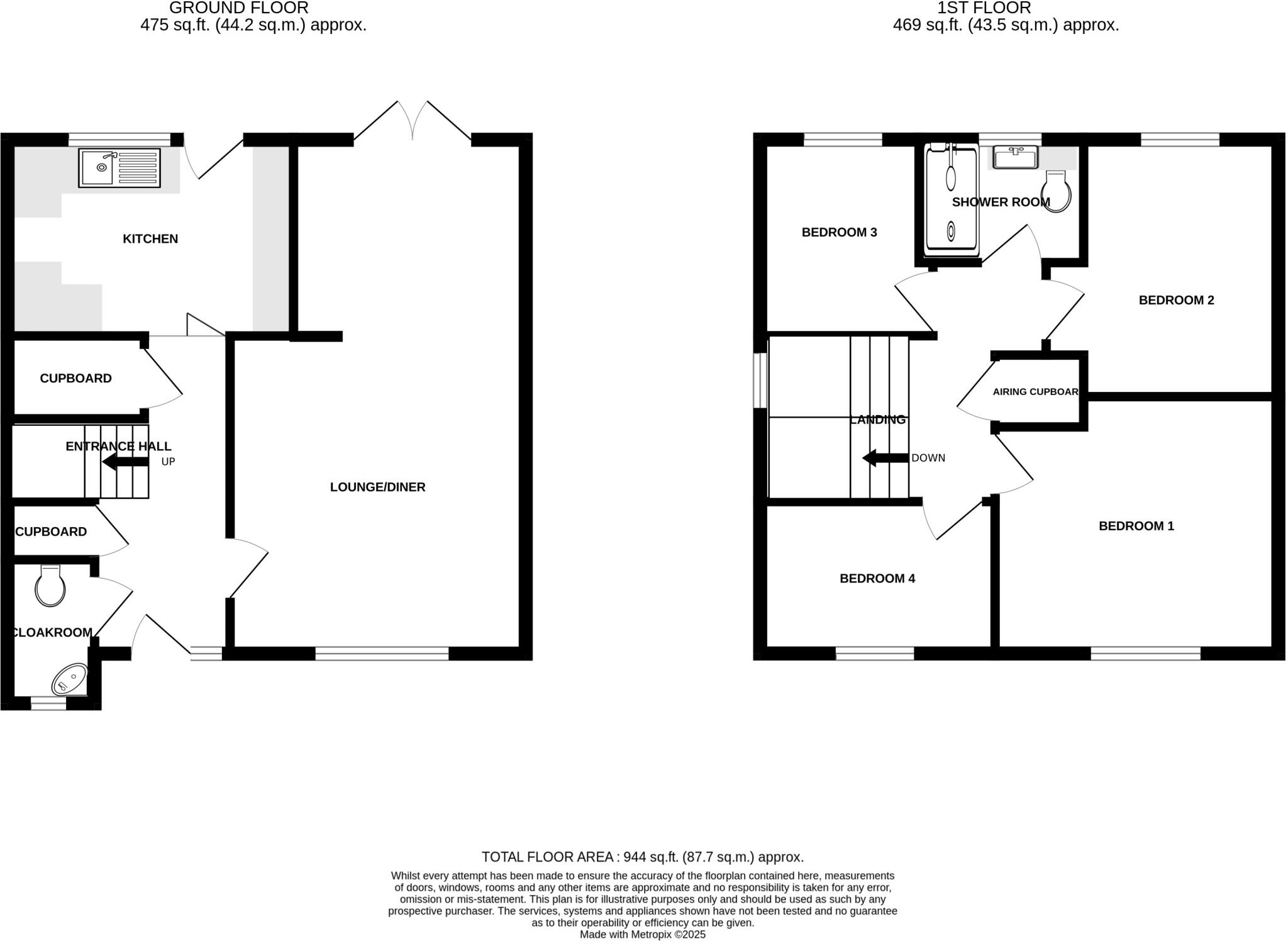
Four bedrooms on a compact 944 sq ft footprint
A practical four-bedroom detached home set on a large plot close to Chard town centre and local schools. The house offers a private driveway, single garage and a generous rear garden that will suit family life and outdoor plans. Broadband and mobile signal are strong; the property is freehold with mains gas central heating and no flood risk.

Internally the layout is straightforward: entrance hall, lounge/diner, fitted kitchen, cloakroom and handy understairs storage on the ground floor, with four bedrooms and a single shower room upstairs. At about 944 sq ft the accommodation is compact for four bedrooms, so rooms feel efficient rather than expansive.

The house was built in the 1980s and has double glazing installed before 2002 and an EPC D rating. Decorative and mechanical updates are needed — the décor and fittings are dated and a buyer should expect some investment to modernise heating controls, kitchen and bathroom to contemporary standards. The property presents clear refurbishment potential for a growing family or as a value purchase for someone prepared to update.

Practical positives include low local crime, nearby good primary and secondary schools, and easy walking access to town amenities and the medical centre. Note there is only one bathroom and the single garage limits storage; factor these into planning for family living or renovation layouts.

Property Details

Brochure Descriptions

Image Descriptions

Floorplan Description

Rooms

Textual Property Features

Target Audience

AI Tags

Detected Visual Features

EPC Details

Nearby Schools

Nearest Bars And Restaurants

,,,,}

Nearest General Shops

,,}

Nearest Grocery shops

,,}

Nearest Supermarkets

,,}

Nearest Religious buildings

,,}

Nearest Medical buildings

,,,}

Nearest Airports

}

Nearest Leisure Facilities

,,,,}

Nearest Tourist attractions

,,}

Nearest Train stations

,,,,}

Nearest Bus stations and stops

,,,,}

Nearest Hotels

,,}

Tags

Local Market Stats

Similar Properties

Meta

High Res Images

Compatible Images

Low res Images

Thumbnails

Raw Images

High Res Floorplan Images

Compatible Floorplan Images

Low res Floorplan Images

FloorplanImages Thumbnail

Raw Floorplan Images