Four-bedroom detached home on a large plot — ideal for refurbishment buyers..
Large generous plot with enclosed rear garden and patio
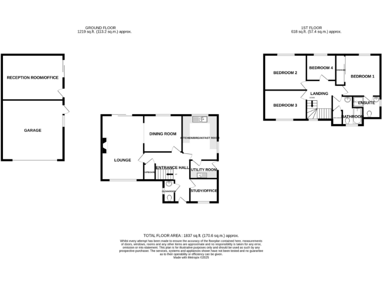
Four bedrooms plus en-suite; flexible extended room off garage
Double garage and driveway providing secure off-street parking
Freehold property offered with no onward chain
Needs renovation throughout; suitable for a refurbishment project
EPC rating D; specific glazing and services install dates unknown
High local crime and area deprivation may affect resale/value
Fast broadband and excellent mobile signal, good nearby schools
This detached four-bedroom house on a generous plot offers a clear blank canvas for a family seeking to create a bespoke home. The traditional two-storey layout includes a main living room opening to the garden, a separate dining area, kitchen with utility, ground-floor study/office and an extended rear-of-garage room that adds flexible space.
Practical positives include a double garage with driveway, an enclosed lawned garden with patio, freehold tenure and no onward chain — easing purchase and renovation plans. The property benefits from fast broadband and excellent mobile signal, and is close to several well-regarded primary and secondary schools, making it appealing to families wanting local schooling options.
Buyers should plan for a renovation project: the house is described as needing updating throughout and has an EPC rating of D. The wider area shows higher crime levels and signs of local deprivation, which may affect resale values and should be weighed when considering investment or family safety measures. Cavity walls and double glazing are present, but install dates are unknown.
Overall, this is a practical opportunity for buyers who prioritise space and potential over move-in readiness. Those prepared to invest in refurbishment can tailor the layout and finish to modern family living, while taking account of local area challenges when budgeting and planning improvements.
4 bedroom detached house for sale in Manor Farm, Chard, Somerset, TA20 — £325,000 • 4 bed • 1 bath • 944 ft²
2 bedroom semi-detached house for sale in Hervey Road, Chard, Somerset, TA20 — £250,000 • 2 bed • 1 bath • 1135 ft²
3 bedroom end of terrace house for sale in Lyddons Mead, Chard, Somerset, TA20 — £250,000 • 3 bed • 1 bath • 1043 ft²
3 bedroom detached house for sale in Forton Road, Chard, Somerset, TA20 — £465,000 • 3 bed • 2 bath • 1783 ft²
3 bedroom semi-detached house for sale in Furzehill, Chard, Somerset, TA20 — £230,000 • 3 bed • 1 bath • 1063 ft²
4 bedroom detached house for sale in Manor Farm, Chard, Somerset, TA20 — £385,000 • 4 bed • 2 bath • 1474 ft²






























































































