Efficient starter home with driveway and en suite.
New-build three-storey semi-detached home, energy efficient
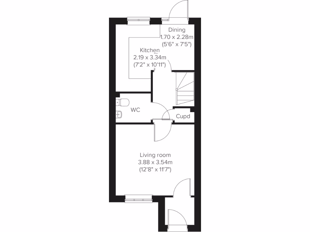
This compact three-storey Saunton offers a practical, modern starter home in Northallerton. At around 656 sq ft the layout maximises space with an open-plan kitchen/dining room that leads outside, a front-aspect living room and a top-floor main bedroom with en suite — useful for flexible family or sharer living.
Homes is new build and energy efficient, reducing running costs. Practical touches include a downstairs WC, enclosed porch, three handy storage cupboards and an off-street driveway. Broadband speeds are fast and mobile signal is excellent, helping remote working and connectivity.
Be realistic about scale: overall and plot size are small and some rooms are compact. Local character is rural and quiet, but the immediate area records above-average crime levels — a material consideration for buyers. Council tax band will be confirmed after occupation.
This property suits first-time buyers seeking a low-maintenance, efficient home with good connectivity and schooling close by. It also offers straightforward long‑term potential for those looking to start building equity in a modern freehold house.
3 bedroom end of terrace house for sale in Darlington Road, Northallerton, North Yorkshire, DL6 2FQ, DL6 — £229,950 • 3 bed • 1 bath • 656 ft²
3 bedroom semi-detached house for sale in Caxton Close,
Brompton On Swale,
DL10 7TT, DL10 — £193,163 • 3 bed • 1 bath • 656 ft²
3 bedroom terraced house for sale in Darlington Road, Northallerton, North Yorkshire, DL6 2FQ, DL6 — £214,950 • 3 bed • 1 bath • 1177 ft²
3 bedroom semi-detached house for sale in Caxton Close,
Brompton On Swale,
DL10 7TT, DL10 — £193,163 • 3 bed • 1 bath • 656 ft²
3 bedroom semi-detached house for sale in Caxton Close,
Brompton On Swale,
DL10 7TT, DL10 — £193,163 • 3 bed • 1 bath • 1461 ft²
3 bedroom terraced house for sale in Darlington Road, Northallerton, North Yorkshire, DL6 2FQ, DL6 — £209,950 • 3 bed • 1 bath • 1302 ft²






































































