DL6 2FQ - 3 bedroom end of terrace house for sale in Darlington Road,…

View on Property Piper

3 bedroom end of terrace house for sale in Darlington Road, Northallerton, North Yorkshire, DL6 2FQ, DL6

Summary - Darlington Road, Northallerton, North Yorkshire, DL6 2FQ DL6 2FQ

3 bed 1 bath End of Terrace

New-build, energy-efficient three-bed ideal for first-time buyers or small families.
Three bedrooms including top-floor main with en suite
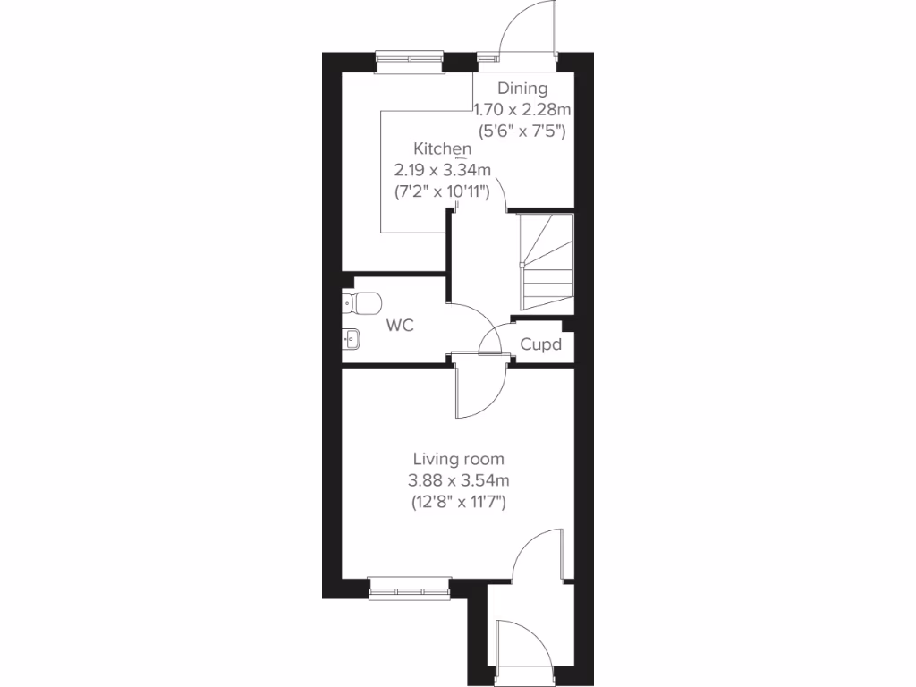
A compact modern three-storey end-terrace with practical family-focused layout and new-build specification. The ground floor offers an open-plan kitchen/dining room with outside access, a front-aspect living room and a downstairs WC — useful for busy mornings and visitors. The top-floor main bedroom includes an en suite, while two further bedrooms occupy the middle floor.

The house is energy efficient and comes with off-street parking and an enclosed porch, plus three built-in storage cupboards that help maximise the modest footprint. Rooms are modestly sized across a total of about 656 sq ft, so the property suits first-time buyers or small families wanting a low-maintenance home rather than expansive living space.

Set in a semi-rural hamlet setting with fast broadband and excellent mobile signal, the location benefits from nearby good primary and secondary schools. Buyers should note the overall plot and rooms are small, and local crime rates are above average — factors to weigh against the new-build condition and efficient running costs.

Property Details

Image Descriptions

Floorplan Description

Rooms

Textual Property Features

Target Audience

AI Tags

Detected Visual Features

Nearby Schools

Nearest Bars And Restaurants

,,,,}

Nearest General Shops

,,}

Nearest Grocery shops

,,}

Nearest Supermarkets

,,}

Nearest Religious buildings

,,}

Nearest Medical buildings

,,,}

Nearest Leisure Facilities

,,,,}

Nearest Tourist attractions

,,}

Nearest Train stations

,,,,}

Nearest Bus stations and stops

,,,,}

Nearest Hotels

,,}

Tags

Local Market Stats

AirBnB Data

Similar Properties

Meta

High Res Images

Compatible Images

Low res Images

Thumbnails

Raw Images

High Res Floorplan Images

Compatible Floorplan Images

Low res Floorplan Images

FloorplanImages Thumbnail

Raw Floorplan Images