Compact, efficient living with driveway and en suite.
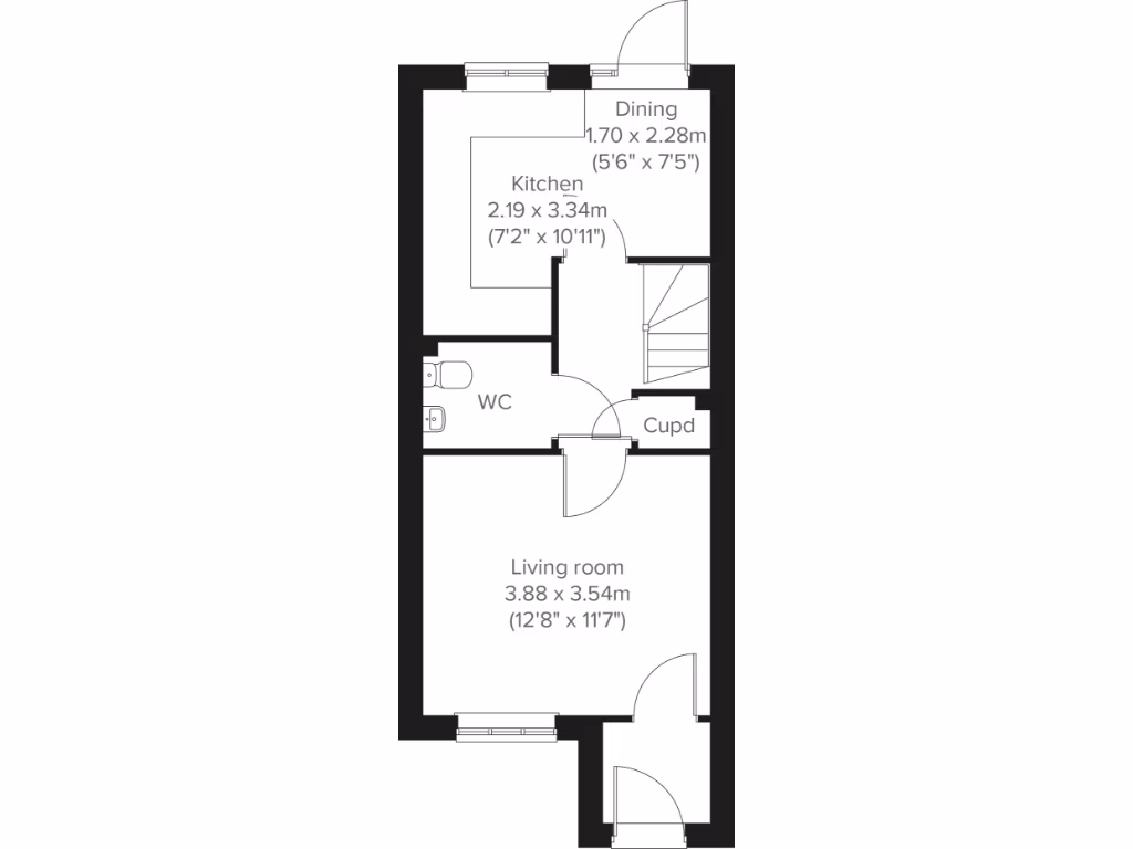
Open-plan kitchen/dining with direct outside access
Top-floor main bedroom with private en suite
Downstairs WC plus three handy storage cupboards
Enclosed porch and enclosed rear garden
Off-street driveway parking for convenience
New-build, energy-efficient construction and freehold tenure
Compact overall size — approx 656 sq ft, limited living space
Council tax band not yet available until occupation
This attractive three-storey Saunton offers efficient, low-maintenance living in a quiet village setting. The new-build layout includes an open-plan kitchen/dining room, a front-aspect living room and a top-floor main bedroom with en suite — well suited to families seeking practical space and modern fixtures.
At about 656 sq ft the home is compact and thoughtfully arranged: three bedrooms, a family bathroom, downstairs WC and three useful storage cupboards. The enclosed porch, decent rear garden and off-street parking add everyday convenience in a very affluent, low-crime neighbourhood.
Buyers should note the property’s smaller overall size and compact kitchen/dining footprint; internal living space is limited compared with larger family homes. Council tax band information is not yet available until occupation. Energy-efficient new construction and freehold tenure are strong positives for lower running costs and straightforward ownership.
3 bedroom semi-detached house for sale in Caxton Close,
Brompton On Swale,
DL10 7TT, DL10 — £193,163 • 3 bed • 1 bath • 656 ft²
3 bedroom terraced house for sale in Caxton Close,
Brompton On Swale,
DL10 7TT, DL10 — £271,950 • 3 bed • 1 bath • 656 ft²
3 bedroom semi-detached house for sale in Darlington Road, Northallerton, North Yorkshire, DL6 2FQ, DL6 — £244,950 • 3 bed • 1 bath • 656 ft²
3 bedroom end of terrace house for sale in Darlington Road, Northallerton, North Yorkshire, DL6 2FQ, DL6 — £229,950 • 3 bed • 1 bath • 656 ft²
3 bedroom semi-detached house for sale in Caxton Close,
Brompton On Swale,
DL10 7TT, DL10 — £193,163 • 3 bed • 1 bath • 656 ft²
3 bedroom semi-detached house for sale in Darlington Road, Northallerton, North Yorkshire, DL6 2FQ, DL6 — £244,950 • 3 bed • 1 bath • 656 ft²


























































































































































































