Renovated two-bedroom flat in central Marylebone, minutes from Baker Street and Regent’s Park..
- Recently renovated two-bedroom flat, open-plan reception and kitchen
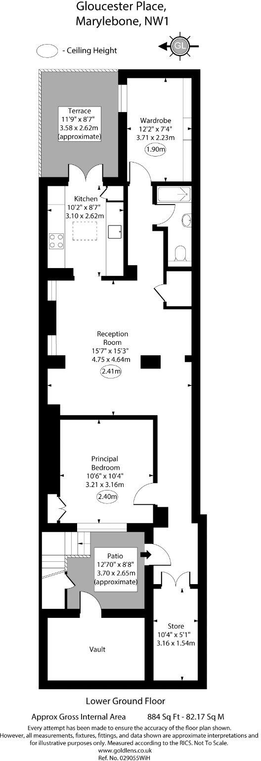
- Approximately 884 sq ft with terrace, courtyard and storage area
- Long lease: c.969 years (leasehold)
- Period Georgian façade with modern interiors and secondary glazing
- Solid brick walls; original construction likely without insulation
- EPC rating C; Council Tax Band D (Westminster)
- Excellent transport links to Baker Street, Marylebone and Regent's Park
- Inner-city location with high local crime rates to consider
A recently renovated two-bedroom apartment set within a handsome Georgian terrace on Gloucester Place, moments from Baker Street, Marylebone High Street and Regent’s Park. The flat’s open-plan living area, contemporary finishes and private terrace/courtyard offer low-maintenance city living with clear letting and pied-à-terre appeal. At about 884 sq ft, it delivers comfortable accommodation for a central London home or rental unit.
The property combines period exterior character with modern interiors: pale hardwood floors, recessed lighting and a fitted kitchen alongside traditional sash-window elevations. Practical benefits include mains gas boiler and radiators, secondary glazing, generous built-in storage and a long lease (c.969 years). Transport and local amenities are excellent, supporting strong rental demand and flexible owner-occupier use.
Buyers should note material facts plainly: the flat is leasehold, on-street parking only with limited forecourt space, and external walls are the building’s original solid brick (insulation assumed absent). The neighbourhood is a busy inner-city area with high local crime statistics, typical of a central London location — something to weigh for occupation or tenant selection. The EPC is C and council tax band is D.
This apartment will suit investors seeking a central Marylebone let or professionals wanting a well-specified, low-upkeep city base. Value drivers are location, recent renovation and usable outdoor space; practical considerations include urban setting, modest private external area and building-age fabric. Viewing is recommended to assess room proportions and outdoor areas in person.
2 bedroom flat for sale in Gloucester Place, London, NW1 — £749,000 • 2 bed • 2 bath • 651 ft²
1 bedroom flat for sale in Gloucester Place, Marylebone, NW1 — £550,000 • 1 bed • 1 bath • 542 ft²
2 bedroom flat for sale in Tennyson Court, Dorset Square, Marylebone, London, NW1 — £2,395,000 • 2 bed • 2 bath • 945 ft²
2 bedroom flat for sale in Baker Street, Marylebone, NW1 — £1,000,000 • 2 bed • 1 bath • 1067 ft²
1 bedroom flat for sale in Gloucester Place, London, NW1 — £520,000 • 1 bed • 1 bath • 625 ft²
1 bedroom apartment for sale in Wyndham Street, London, W1H — £815,000 • 1 bed • 2 bath • 570 ft²


































































