Modernised, spacious three-bedroom detached house on large private plot with triple garage and panoramic views..
- Spacious open-plan 31'9" kitchen/family room with underfloor heating
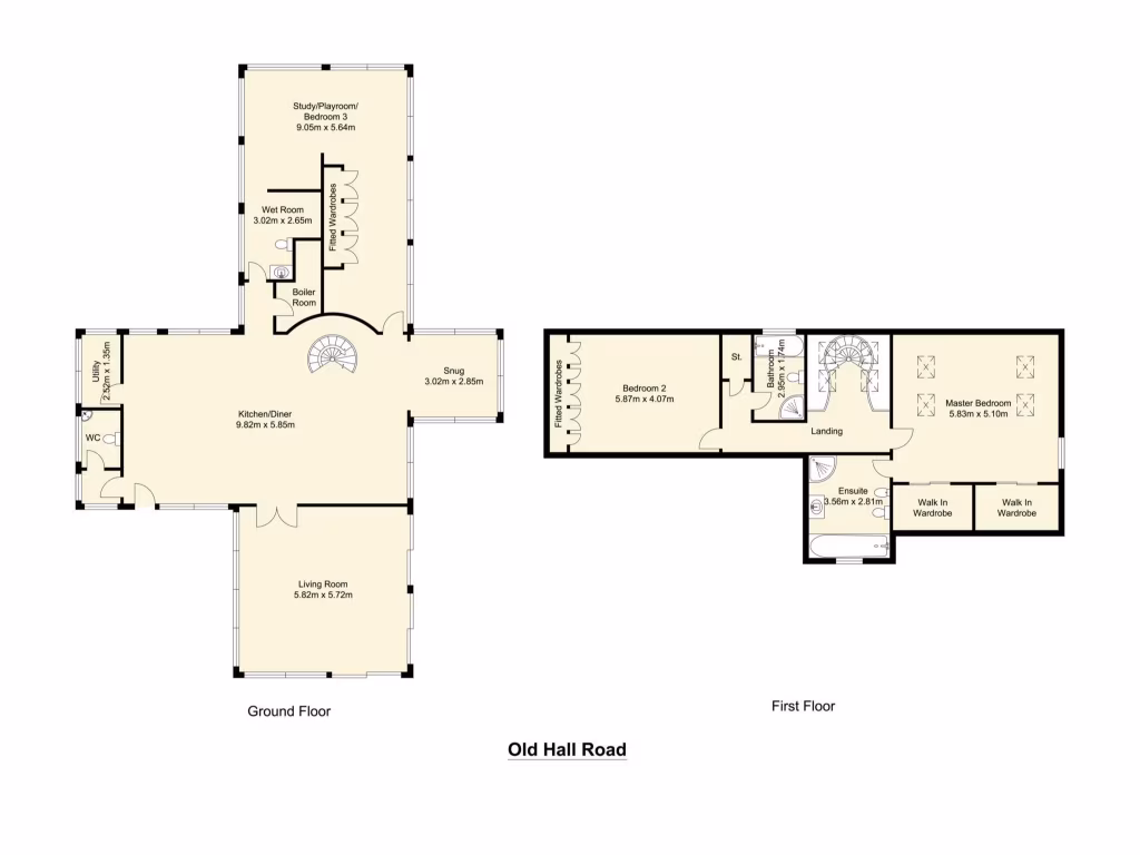
- Ground-floor bedroom suite with ensuite and garden access
- Master bedroom with large ensuite and air-conditioning
- Triple detached garage with remote doors, power and light
- Elevated position with superb panoramic views and high privacy
- Newly modernised throughout; integrated appliances and sound system
- Slow broadband in area; council tax described as quite expensive
- Older build (pre-1900) with walls assumed to lack insulation
A truly exceptional, fully modernised three-bedroom detached home set on an elevated, private plot in Upper Batley. The house has been thoughtfully remodelled to create generous reception spaces that make the most of superb panoramic views, including a 31'9" open-plan dining kitchen/family room, sunroom and a bright 20' lounge. Ground-floor living is practical and flexible with an L-shaped bedroom suite and wet room; two further double bedrooms sit on the first floor, with a luxurious ensuite to the master.
High-specs include underfloor heating to the ground floor, air conditioning to principal living spaces, remote-controlled blinds to most windows, integrated appliances, a built-in sound system, CCTV and an alarm. Outside, mature hedging, manicured lawns, a patio, raised deck and hot-tub area create sheltered private gardens. A triple detached garage (remote doors, power and light) and a large parking/turning area complete the plot.
This is a move-in-ready property for families seeking space, privacy and luxury finishes, but purchasers should note a few practical points: the house is an older build (pre-1900) with walls assumed to lack cavity insulation, double glazing install date is unknown, broadband speeds are reported slow and council tax is described as quite expensive. Interested buyers should verify services, insulation and any environmental installations (solar flagged but unconfirmed) during inspection.
6 bedroom detached house for sale in Greatfield, Batley Field Hill, Upper Batley, WF17 — £975,000 • 6 bed • 3 bath • 3735 ft²
5 bedroom detached house for sale in Birch Grove, Upper Batley, WF17 — £450,000 • 5 bed • 1 bath • 1808 ft²
5 bedroom detached house for sale in Heaton Road, Upper Batley, WF17 — £874,950 • 5 bed • 1 bath • 2935 ft²
3 bedroom semi-detached house for sale in Carlinghow Lane, Batley, WF17 — £290,000 • 3 bed • 2 bath • 840 ft²
3 bedroom detached house for sale in Upper Batley Lane, Batley, West Yorkshire, WF17 — £330,000 • 3 bed • 3 bath • 1216 ft²
4 bedroom semi-detached house for sale in Asquith Street, Birstall, WF17 — £695,000 • 4 bed • 3 bath • 3100 ft²






















































































































































































































































