Well-presented one-bedroom with parking and excellent DLR links.
Third-floor one-bedroom with private balcony and unrestricted views
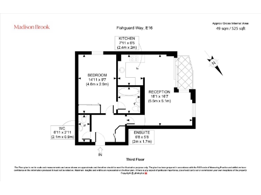
Light-filled top-floor one-bedroom apartment offering 525 sq ft of practical living in a modern riverside development. The open-plan reception and fitted kitchen lead to a private balcony with unrestricted urban and distant water views, giving a pleasant spot to relax and a sense of space. Underground allocated parking and built-in storage add everyday convenience for city living.
This flat suits a first-time buyer or city-based professional seeking a well-presented, low-maintenance home with very good transport links. King George V and Gallions Reach DLR stations are moments away for quick journeys into Canary Wharf and central London. Broadband speeds are fast, the area is affluent with low crime, and flood risk is very low.
Important practical points: heating is by electric storage heaters, which can be more expensive than gas alternatives. The property is leasehold (176 years remaining) and has no private garden; the accommodation is compact and best for singles or couples. Overall this is a straightforward, move-in-ready home with commuting convenience and rental potential, but buyers should factor in running costs and the leasehold nature when budgeting.
1 bedroom flat for sale in Fishguard Way London, E16 — £250,000 • 1 bed • 1 bath • 580 ft²
1 bedroom apartment for sale in Sheerness Mews, London, E16 — £230,000 • 1 bed • 1 bath • 548 ft²
1 bedroom apartment for sale in Lowestoft Mews, Galleons Lock, E16 — £265,000 • 1 bed • 1 bath • 545 ft²
1 bedroom apartment for sale in Wards Wharf Approach, London, E16 — £285,000 • 1 bed • 1 bath • 517 ft²
1 bedroom flat for sale in Meadow Court, 14, Booth Road, London, E16 — £345,000 • 1 bed • 1 bath • 484 ft²
1 bedroom apartment for sale in Sheerness Mews, Galleons Lock, E16 — £245,000 • 1 bed • 1 bath • 570 ft²






































