Bright, newly renovated one-bedroom with river views, parking and long lease.
Dual-aspect river-facing balcony with striking water views
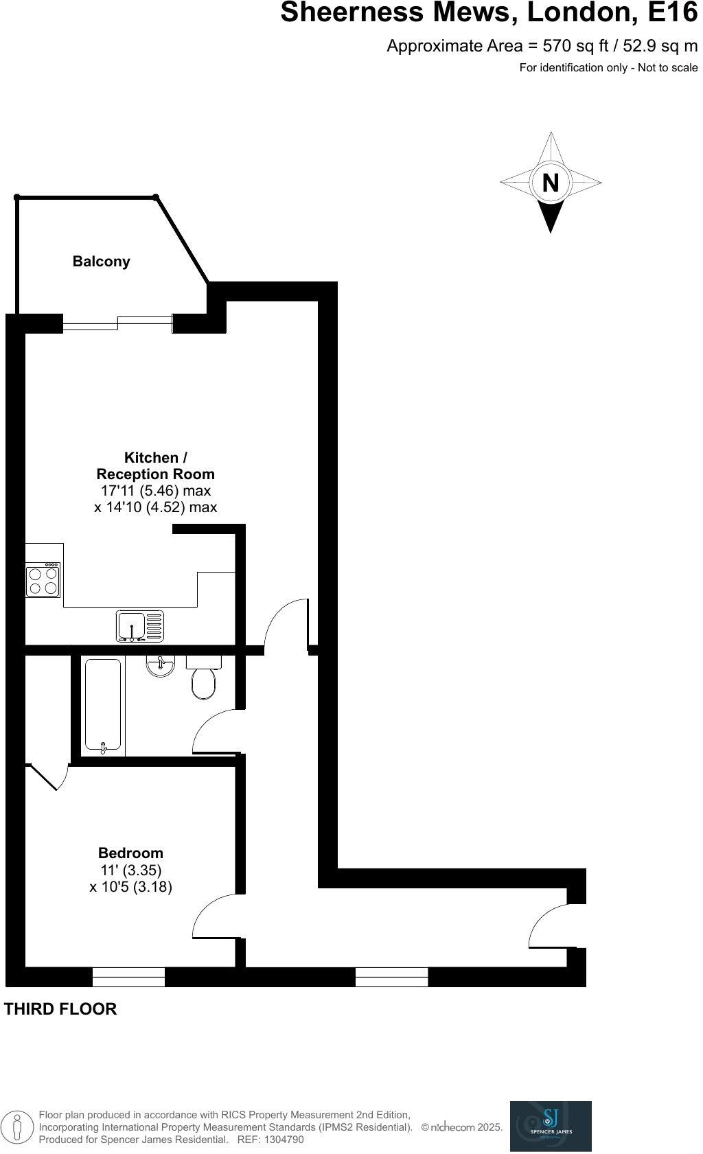
Third-floor apartment with lift access and contemporary finish
Newly renovated interior; bright open-plan living and kitchen
Secure allocated underground parking plus a second ground-level permit
24-hour security and on-site estate office; well-maintained grounds
Share of freehold with 972 years remaining; EPC B
Service charge c. £3,292 pa; main heating is electric storage heaters
Ground rent nominal (£1); EWS1 A1 compliant
Light-filled one-bedroom apartment on the third floor, freshly renovated and presented with contemporary finishes. Dual-aspect living and a balcony look directly over the river, creating an appealing city-riverside outlook and strong rental or lifestyle appeal.
Practical benefits include lift access, secure allocated underground parking plus a secondary permit, 24-hour security/estate office and well-kept communal grounds. The property is sold share of freehold with a very long 972-year lease and an EPC rating of B.
Notable running costs and specifications are stated plainly: a service charge of £3,292 (average) and electric storage heaters as the main heating source — these can be less efficient than gas alternatives and may affect bills. Ground rent is nominal (£1). The development is EWS1 A1 compliant.
Positioned within walking distance of Gallions Reach and King George V DLR stations, with quick access to the Elizabeth line and London City Airport, the flat suits first-time buyers seeking a low-maintenance central home or investors targeting well-located rental stock. Schools and local amenities are nearby, and crime and flood risk are low.
1 bedroom apartment for sale in Sheerness Mews, London, E16 — £250,000 • 1 bed • 1 bath • 548 ft²
2 bedroom apartment for sale in Fishguard Way, Galleons Lock, E16 — £315,000 • 2 bed • 2 bath • 748 ft²
2 bedroom flat for sale in Fishguard Way, Galleons Lock, E16 , E16 — £359,995 • 2 bed • 2 bath • 748 ft²
2 bedroom flat for sale in Inverness Mews, Galleons Lock, E16 , E16 — £365,000 • 2 bed • 2 bath • 877 ft²
1 bedroom apartment for sale in Lowestoft Mews, Galleons Lock, E16 — £265,000 • 1 bed • 1 bath • 545 ft²
1 bedroom apartment for sale in Fishguard Way, London, E16 — £275,000 • 1 bed • 1 bath • 578 ft²






























































