### Standout Features:
- **Self-build plot**: 4 acres with full planning permission
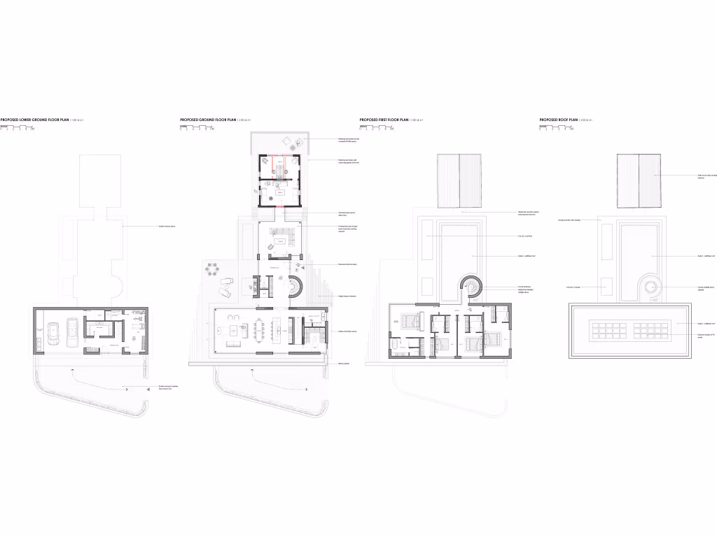
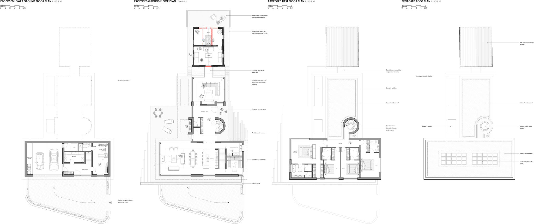
- **Spacious design**: Approved project of 4,960 sqft, featuring a unique blend of contemporary and traditional elements
- **Architectural excellence**: Designed by award-winning Hollaway Studio with large windows and high ceilings
- **Versatile layout**: 4 en-suite bedrooms, multiple living spaces including a gym and office, with potential for annexe or additional beds
- **Scenic location**: West-facing aspect offering picturesque countryside views
- **Chain-free sale**: Facilitates a smoother purchase process
- **Good connectivity**: Proximity to Hythe and excellent transport links
### Summary:
Embrace the opportunity to create your dream home on this expansive 4-acre self-build plot, complete with full planning permission for a stunning contemporary design by prestigious architects, Hollaway Studio. Spanning an impressive 4,960 sqft, the approved layout features a harmonious mix of space and functionality, including 4 en-suite bedrooms, a generous kitchen/dining area, snug, gym, and flexible spaces that could convert into an annexe or additional bedrooms.
Set in the tranquil surroundings of Saltwood, this property is ideal for families or investors looking for a unique, tailor-made living experience. The elevated west-facing site offers lush countryside views and a generously sized garden. Despite the serene rural feel, you're only a short drive from Hythe’s charming cobbled streets, independent boutiques, and beautiful coastline. Families will appreciate the access to highly-rated schools and excellent transport links to London and beyond.
While the local area exhibits above-average crime rates, the affluent setting promises a peaceful and community-oriented lifestyle. With slow broadband connectivity—potential buyers should consider future upgrades—this remarkable opportunity to build a bespoke landmark home in a prime countryside location won't last long. Schedule a site visit to explore its potential and envision your future in this remarkable setting!
4 bedroom detached house for sale in Plot + Build Opportunity at Blue House Lane, CT21 — £2,450,000 • 4 bed • 1 bath • 4960 ft²
Land for sale in Appledore Road, Stone In Oxney, Tenterden, Kent TN30 7JL , TN30 — £475,000 • 4 bed • 2 bath • 3202 ft²
Plot for sale in Cheesemans Green Lane, Sevington, Ashford, Kent, TN24 — £275,000 • 1 bed • 1 bath • 2509 ft²
Plot for sale in The Avenue, Temple Ewell, Dover, CT16 — £325,000 • 3 bed • 2 bath
Land for sale in St Leonards Road, Hythe, CT21 — £175,000 • 1 bed • 1 bath • 1362 ft²
Land for sale in Brogdale Road, Faversham, ME13 — £230,000 • 1 bed • 1 bath • 2045 ft²






























































