**Standout Features:**
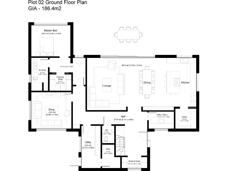
- **Size & Layout:** Extremely large plot (0.51 acres) with 3202 square feet potential for new builds.
- **Planning Permission:** Granted for two detached contemporary houses (Planning Ref: PA/2025/0197).
- **Energy Efficient:** Features air source heat pump and solar panels with battery storage.
- **Location:** Set in the tranquil hamlet of Stone Village within an Area of Outstanding Natural Beauty.
- **Accessibility:** Nearby primary schools and close proximity to Tenterden and Rye with train links to London.
- **Environment:** Low crime rate and fast broadband speeds available.
**Summary:**
This impressive land opportunity in the picturesque hamlet of Stone Village offers approved planning for two modern, environmentally sustainable homes designed by acclaimed architects. Spanning a generous 0.51-acre plot, potential buyers will appreciate the expansive outdoor space perfect for serene gardens or family gatherings. The plot comes equipped with contemporary amenities, including an air source heat pump and solar panels, ensuring energy efficiency aligned with modern living standards.
Nestled in a beautiful rural setting, this property allows easy access to local community amenities, schools, and transport links, providing the ideal balance of tranquility and convenience. While the area exhibits characteristics of an ageing rural community, it remains vibrant with potential for growth. This unique opportunity won’t last long in today’s market—imagine the comfort of designing your dream home in an enviable location that promises both privacy and picturesque views.
Land for sale in Appledore Road, Stone in Oxney, Tenterden, Kent TN30 7JN, TN30 — £425,000 • 4 bed • 2 bath • 3202 ft²
Plot for sale in Maytham Road, TN17 — £595,000 • 4 bed • 1 bath • 2890 ft²
4 bedroom detached house for sale in Windmill Hill, Brenchley, Tonbridge, Kent, TN12 — £700,000 • 4 bed • 1 bath • 3450 ft²
Plot for sale in Stone, Tenterden, Kent, TN30 — £875,000 • 5 bed • 1 bath • 3078 ft²
Plot for sale in Starvecrow Lane, Peasmarsh, Rye, East Sussex, TN31 — £2,150,000 • 1 bed • 1 bath
Plot for sale in Starvecrow Lane, Peasmarsh, Rye, East Sussex, TN31 — £2,150,000 • 1 bed • 1 bath










































