KA15 1EZ - Land for sale in Glebe Road, Beith, KA15

View on Property Piper

Land for sale in Glebe Road, Beith, KA15

Summary - Glebe Road KA15 1EZ

3 bed 1 bath Land

**Key Features:**
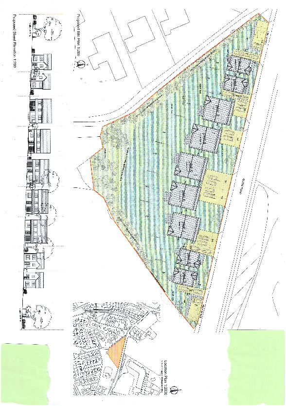
- Large plot of land with planning permission
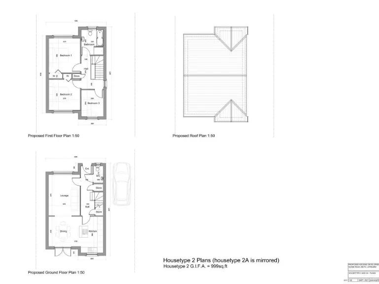
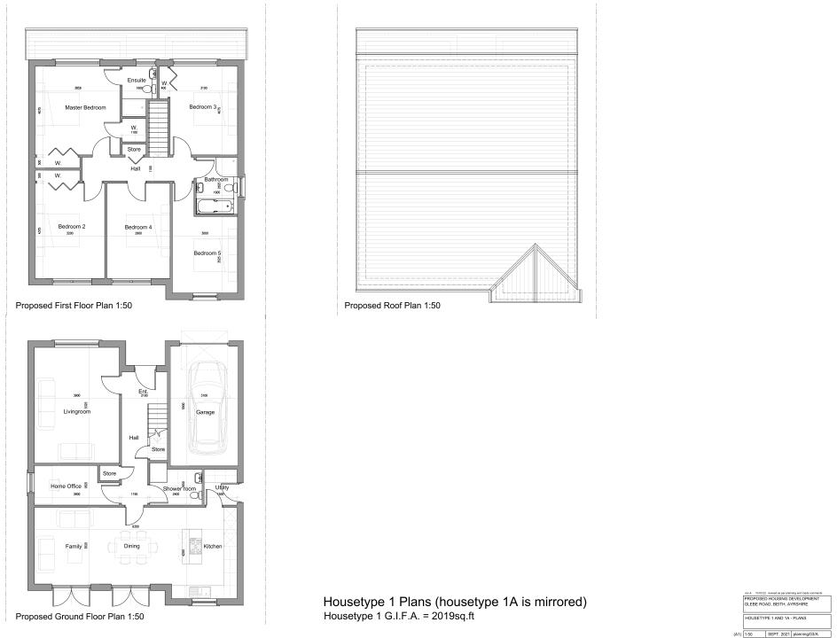
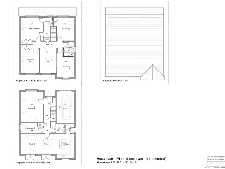
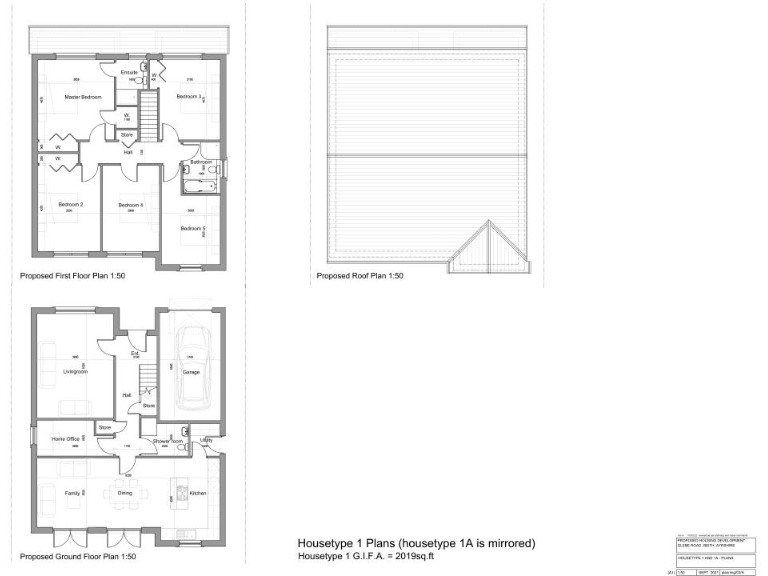
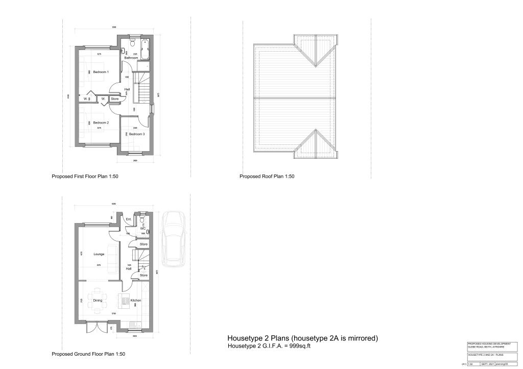
- Approved development for 5x 5-bedroom and 4x 3-bedroom detached villas
- Highly desirable location on Glebe Road, Beith KA15
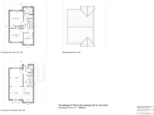
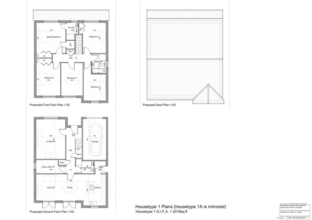
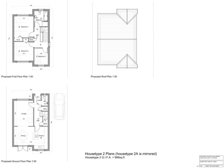
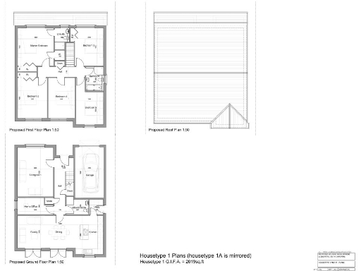
- Total area: 2,019 sq ft
- Freehold tenure
- Excellent mobile signal and fast broadband speeds
- Proximity to schools, parks, shops, and restaurants

Explore this outstanding investment opportunity in the tranquil and sought-after town of Beith. With planning approved for a substantial development, this extensive plot provides the chance to build a collection of 5 spacious 5-bedroom and 4 charming 3-bedroom detached villas, tailored to meet market demand. Just a 35-minute drive from Glasgow, this area combines the appeal of suburban life with convenient access to urban amenities.

Families will appreciate the close-knit community, esteemed local schools, and nearby parks for outdoor leisure. Though the area may face some socio-economic challenges, the unique appeal of this development project promises high demand and substantial returns. Don't miss your chance to capitalize on this rare opportunity to shape the landscape of Beith and enjoy the benefits of a thriving residential development. Act quickly, as opportunities like this are limited!

Property Details

Image Descriptions

Floorplan Description

Rooms

Textual Property Features

Detected Visual Features

Nearest Bars And Restaurants

,,,,}

Nearest General Shops

,,}

Nearest Grocery shops

,,}

Nearest Supermarkets

,,}

Nearest Religious buildings

,,}

Nearest Medical buildings

,,,}

Nearest Airports

,}

Nearest Leisure Facilities

,,,,}

Nearest Tourist attractions

,,}

Nearest Train stations

,,,,}

Nearest Bus stations and stops

,,,,}

Nearest Hotels

,,}

Tags

Local Market Stats

AirBnB Data

Similar Properties

Meta

High Res Images

Compatible Images

Low res Images

Thumbnails

Raw Images

High Res Floorplan Images

Compatible Floorplan Images

Low res Floorplan Images

FloorplanImages Thumbnail

Raw Floorplan Images