PA11 3HP - Land for sale in Clevans Road, Bridge of Weir, PA11

View on Property Piper

Land for sale in Clevans Road, Bridge of Weir, PA11

Summary - Clevans Road, Bridge of Weir PA11 3HP

1 bed 1 bath Land

**Standout Features:**
- Plot size: Approximately 0.4 acres
- Full planning permission obtained (Renfrewshire Council ref: 24/0388/PP)
- Unique two-home development with rural views
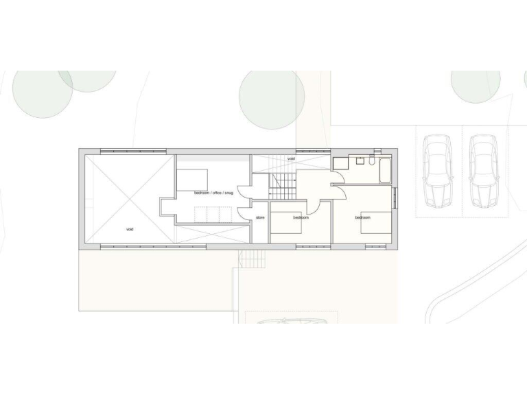
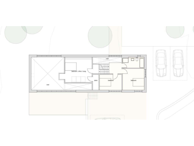
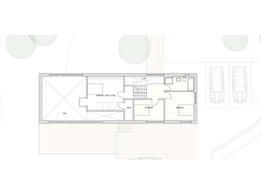
- Proposed contemporary detached villa with four bedrooms
- Split-level design optimizing natural light and garden views
- Adjacent to Ranfurly Castle golf course
- Excellent mobile signal and fast broadband speeds

**Potential Downsides:**
- Located in an area classified as very deprived
- Surrounding area may lack certain modern amenities

**Summary:**
Discover the unique opportunity to build your dream home in the highly sought-after area of Bridge of Weir, located on picturesque Clevans Road. This generous plot of 0.4 acres comes with full planning permission for a stunning contemporary villa, designed to maximize natural light and offer exquisite views of the surrounding countryside. The proposed design features four bedrooms and a stylish open plan living space, all set within a spacious garden—a perfect canvas for families or investors looking to create an exceptional living space.

Nestled next to the prestigious Ranfurly Castle golf course, this area combines the tranquility of rural living with the convenience of local amenities, including well-respected schools and access to major transport links, making it a desirable location for commuters. With only two homes in this exclusive development, don't miss the chance to secure this rare parcel of land and bring your vision to life in a community known for its blend of tradition and modernity. Act quickly—opportunities like this are limited!

Property Details

Brochure Descriptions

Image Descriptions

Floorplan Description

Rooms

Textual Property Features

Detected Visual Features

Nearest Bars And Restaurants

,,,,}

Nearest General Shops

,,}

Nearest Grocery shops

,,}

Nearest Supermarkets

,,}

Nearest Religious buildings

,,}

Nearest Medical buildings

,,,}

Nearest Airports

,}

Nearest Leisure Facilities

,,,,}

Nearest Tourist attractions

,,}

Nearest Train stations

,,,,}

Nearest Bus stations and stops

,,,,}

Nearest Hotels

,,}

Tags

Local Market Stats

AirBnB Data

Similar Properties

Meta

High Res Images

Compatible Images

Low res Images

Thumbnails

Raw Images

High Res Floorplan Images

Compatible Floorplan Images

Low res Floorplan Images

FloorplanImages Thumbnail

Raw Floorplan Images