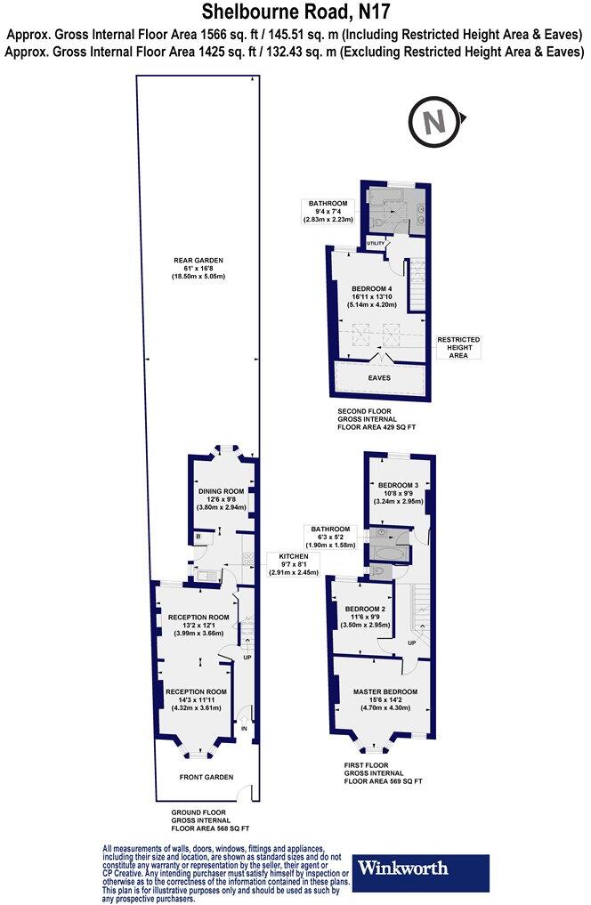
Four bedrooms including 2024 loft conversion and en-suite bathroom
Open-plan reception and kitchen/dining ideal for family living
West-facing garden larger than local average with shed and Wendy house
New boiler 2020; double-glazed PVC sash windows throughout
Potential for side-return/rear extension subject to consents
Solid brick walls; likely no cavity insulation (assumed)
Area shows above-average crime and broader local deprivation
Freehold, 1,566 sq ft, close to Tottenham Hale and good schools
A handsome Victorian mid-terrace reworked for modern family life. Arranged over three floors, the house combines original features—bay windows, high ceilings and period plasterwork—with recent upgrades including a 2024 loft conversion, contemporary finishes and treated pine floorboards. The ground floor has been opened up to create a connected reception and kitchen/dining flow that suits everyday family use and entertaining.
Practical updates reduce short-term maintenance: a new boiler (2020) and double-glazed PVC sash windows. The west-facing garden is a particular asset—described as larger than the local average and planted with mature trees, shed and Wendy house—offering private outdoor space for children and socialising. There is further scope to extend with a side return or rear extension, subject to planning permission.
Important facts to note: the property sits in an area with above-average crime and broader local deprivation indicators, and the house’s solid-brick construction likely lacks cavity wall insulation (assumed). The plot is described as small overall; some buyers may want to confirm insulation, glazing installation dates and council tax banding. Connections are strong — Tottenham Hale, Northumberland Park and Bruce Grove are all within walking distance — and several well-rated primary and secondary schools are nearby, making this a practical family choice.
3 bedroom terraced house for sale in Sherringham Avenue, London, N17 — £550,000 • 3 bed • 2 bath • 868 ft²
5 bedroom terraced house for sale in Sherringham Avenue, London, N17 — £675,000 • 5 bed • 2 bath • 1141 ft²
3 bedroom terraced house for sale in Woodside Gardens, London, N17 — £795,000 • 3 bed • 1 bath • 1240 ft²
3 bedroom terraced house for sale in Tilson Road, London, N17 — £775,000 • 3 bed • 3 bath • 1479 ft²
4 bedroom terraced house for sale in Dowsett Road, London, N17 — £770,000 • 4 bed • 2 bath • 1312 ft²
4 bedroom house for sale in Malvern Road, London, N17 — £650,000 • 4 bed • 2 bath • 1371 ft²






























































































