N17 6UN - 3 bedroom terraced house for sale in Woodside Gardens, Lond…

View on Property Piper

3 bedroom terraced house for sale in Woodside Gardens, London, N17

Summary - 75 WOODSIDE GARDENS LONDON N17 6UN

3 bed 1 bath Terraced

Spacious three-bed Victorian with loft potential and excellent transport links..
Freehold late-Victorian terrace with original period features
Side-return kitchen extension — nearly 20ft with skylights and full-height glazing
Spacious 26ft double reception room, high ceilings and bay window
Three double bedrooms; loft wired/plumbed for conversion
Southwest-facing, low-maintenance two-level rear garden with power and lights
One family bathroom only; no en-suite or ground-floor shower
Small plot size; inner-city location with above-average local crime
Excellent transport links to Liverpool Street and Victoria Line stations
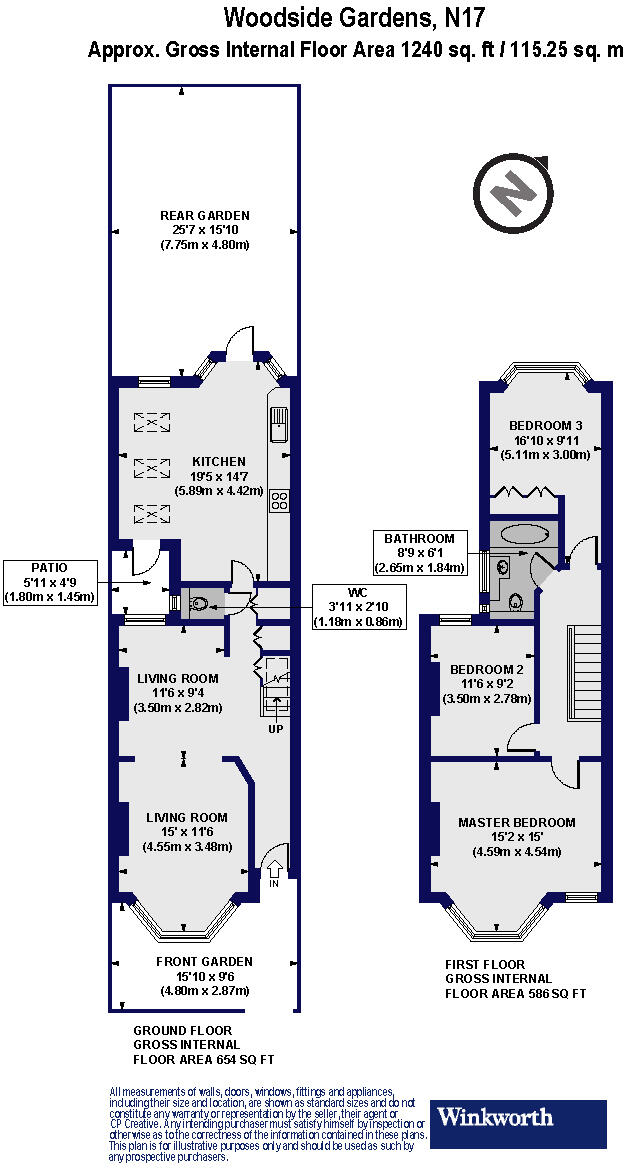
Light-filled, well-proportioned and thoughtfully updated, this late-Victorian terraced home offers 1,240 sqft of family-focused living in a convenient Tottenham pocket. Period features such as high ceilings, bay windows and decorative cornices remain intact while a side-return extension creates a bright, nearly 20ft kitchen/dining space with full-height glazing, skylights and bespoke units.

The ground floor flows through an expansive 26ft double reception into the extended kitchen and out to a two-level southwest-facing garden that is low maintenance yet set up for evening entertaining with external lighting and power. Upstairs are three double bedrooms with fitted storage and a quality family bathroom with underfloor heating. A loft with existing wiring and plumbing presents clear potential for an extra room (subject to planning).

Practical strengths include freehold tenure, excellent transport links (Bruce Grove, Tottenham Hale, Seven Sisters) and fast broadband/multiple mobile networks. These features suit commuting families wanting comfortable living close to parks and good schools, including nearby Bruce Grove Primary and Harris Academy Tottenham.

Notable considerations: the house has a single bathroom, a relatively small rear plot, and the immediate area records above-average crime and high deprivation indices. Buyers should weigh these local factors alongside the property’s strong internal space, conversion potential and location benefits.

Property Details

Image Descriptions

Floorplan Description

Rooms

Textual Property Features

Target Audience

AI Tags

Detected Visual Features

Nearby Schools

Nearest Bars And Restaurants

,,,,}

Nearest General Shops

,,}

Nearest Grocery shops

,,}

Nearest Supermarkets

,,}

Nearest Religious buildings

,,}

Nearest Medical buildings

,,,}

Nearest Airports

,}

Nearest Leisure Facilities

,,,,}

Nearest Tourist attractions

,,}

Nearest Train stations

,,,,}

Nearest Bus stations and stops

,,,,}

Nearest Hotels

,,}

Tags

Local Market Stats

AirBnB Data

Similar Properties

Meta

High Res Images

Compatible Images

Low res Images

Thumbnails

Raw Images

High Res Floorplan Images

Compatible Floorplan Images

Low res Floorplan Images

FloorplanImages Thumbnail

Raw Floorplan Images