Six-acre Grade II listed smallholding with stables and barn conversion potential near Norden village..
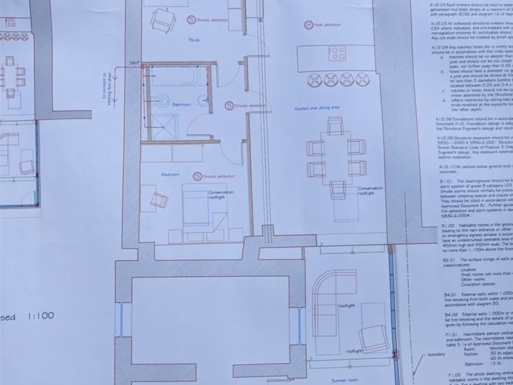
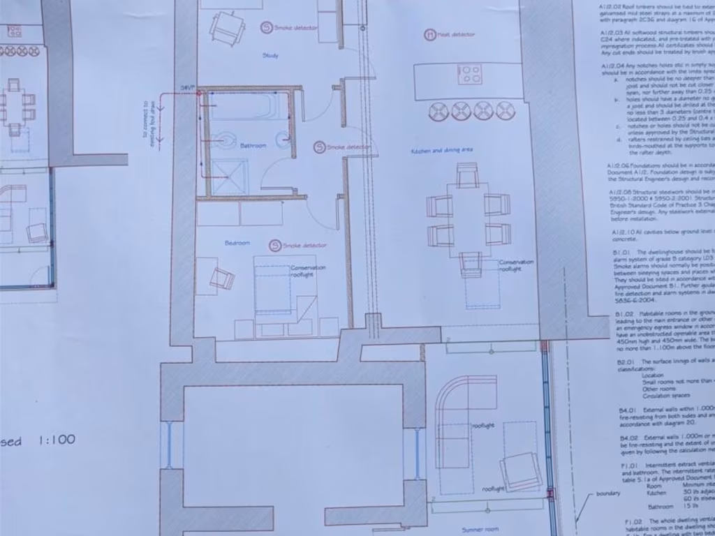
- Grade II listed 3-bedroom farmhouse full of character
- Approximately six acres: paddock and three fenced fields
- Attached barn: structural work and slab passed by building control
- Stone stable block: large barn plus three full-sized stables
- Large off-street parking and private courtyard garden
- No flood risk; excellent mobile signal; very low crime
- Listed status will complicate alterations and conversions
- Slow broadband; tenure details not provided
A rare smallholding set across approximately six acres in a peaceful hamlet, this Grade II listed farmhouse offers classic character, countryside views over Ashworth Valley and immediate equestrian potential. The three-bedroom farmhouse is presented with traditional features — exposed beams, stone fireplace and a wood-burning stove — and has been lovingly maintained. Off-street parking, a courtyard and large garden/paddock complement the living space.
The attached barn has had all structural works and an internal ground slab approved by building control, so conversion to extra accommodation, an annexe or short-let is feasible — but buyers must factor in listed-building consents and planning permissions before work can start. A substantial stone stable block with a large barn, three full-sized stables and verandah provides useful turnkey facilities for horses and livestock.
Practical strengths include very low local crime, excellent mobile signal, no flood risk and proximity (about ten minutes’ walk) to Norden village amenities and good primary schools. Drawbacks are material and must be considered: the property is Grade II listed which will complicate alterations, tenure details are unknown, broadband speeds are slow and further refurbishment or modernization may be needed to meet specific modern living or commercial standards.
This holding will suit buyers seeking a character farmhouse with immediate equestrian capability, owners wanting a smallholding lifestyle close to village facilities, or developers/investors prepared to manage listed-building consents to create additional accommodation. Early viewing is recommended to appreciate the scale, layout and conversion potential for this unique plot.
4 bedroom manor house for sale in Roman Road, Eccleshill, Darwen, BB3 — £600,000 • 4 bed • 2 bath • 1991 ft²
Equestrian facility for sale in Hargreaves Fold Lane, Rossendale, BB4 — £725,000 • 4 bed • 2 bath • 2650 ft²
4 bedroom farm house for sale in Alma Place, Accrington, BB5 — £750,000 • 4 bed • 1 bath • 5100 ft²
3 bedroom detached house for sale in Newmarket Road, Ashton-under-Lyne, Greater Manchester, OL7 — £595,000 • 3 bed • 1 bath • 2000 ft²
3 bedroom semi-detached house for sale in Southfield, Burnley, BB10 — £425,000 • 3 bed • 1 bath • 1145 ft²
2 bedroom terraced house for sale in Bacup Road, Todmorden, West Yorkshire, OL14 — £330,000 • 2 bed • 1 bath • 1790 ft²


































































































































































