TR7 1RS - 1 bed central newquay apartment in St Thomas Road, TR7 1RS

View on Property Piper

1 bedroom apartment for sale in St. Thomas Road, Newquay, TR7

Summary - Flat 1, 1, St. Thomas Road TR7 1RS

1 bed 1 bath Apartment

Small furnished flat with private patio and letting permission.
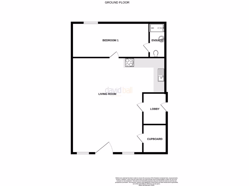
- Compact one-bedroom apartment, 323 sq ft
A compact, fully furnished one-bedroom apartment in central Newquay, offered with a private entrance and a small sunny patio. The open-plan living area and fitted kitchen make efficient use of the 323 sq ft footprint, while double glazing and smart electric heating keep maintenance straightforward. The long lease (982 years) and permission for short-term and holiday lets make this a clear investment or lifestyle bolt-hole near beaches and town amenities.

Practical running notes: heating is by electric room heaters, mains services are present but unverified, and the building’s solid brick walls likely lack cavity insulation. Broadband speeds are reported as very slow and the wider area records higher crime and deprivation indices—factors to weigh for letting or full-time occupation. Service charge is £389 and council tax band is very low, which helps holding costs.

This property suits investors seeking holiday-let income or buyers wanting a low-upkeep coastal pied-à-terre. The layout and low-maintenance patio offer immediate rental appeal, but potential purchasers should budget for energy-efficiency improvements and check connectivity before committing. Viewing recommended to assess the compact space and its suitability for your intended use.

Property Details

Brochure Descriptions

Image Descriptions

Floorplan Description

Rooms

Textual Property Features

Target Audience

AI Tags

Detected Visual Features

EPC Details

Nearby Schools

Nearest Bars And Restaurants

,,,,}

Nearest General Shops

,,}

Nearest Grocery shops

,,}

Nearest Supermarkets

,,}

Nearest Religious buildings

,,}

Nearest Medical buildings

,,,}

Nearest Leisure Facilities

,,,,}

Nearest Tourist attractions

,,}

Nearest Train stations

,,,,}

Nearest Bus stations and stops

,,,,}

Nearest Hotels

,,}

Tags

Local Market Stats

AirBnB Data

Similar Properties

Meta

High Res Images

Compatible Images

Low res Images

Thumbnails

Raw Images

High Res Floorplan Images

Compatible Floorplan Images

Low res Floorplan Images

FloorplanImages Thumbnail

Raw Floorplan Images