Compact, affordable mid-terrace close to town — needs modest updating.
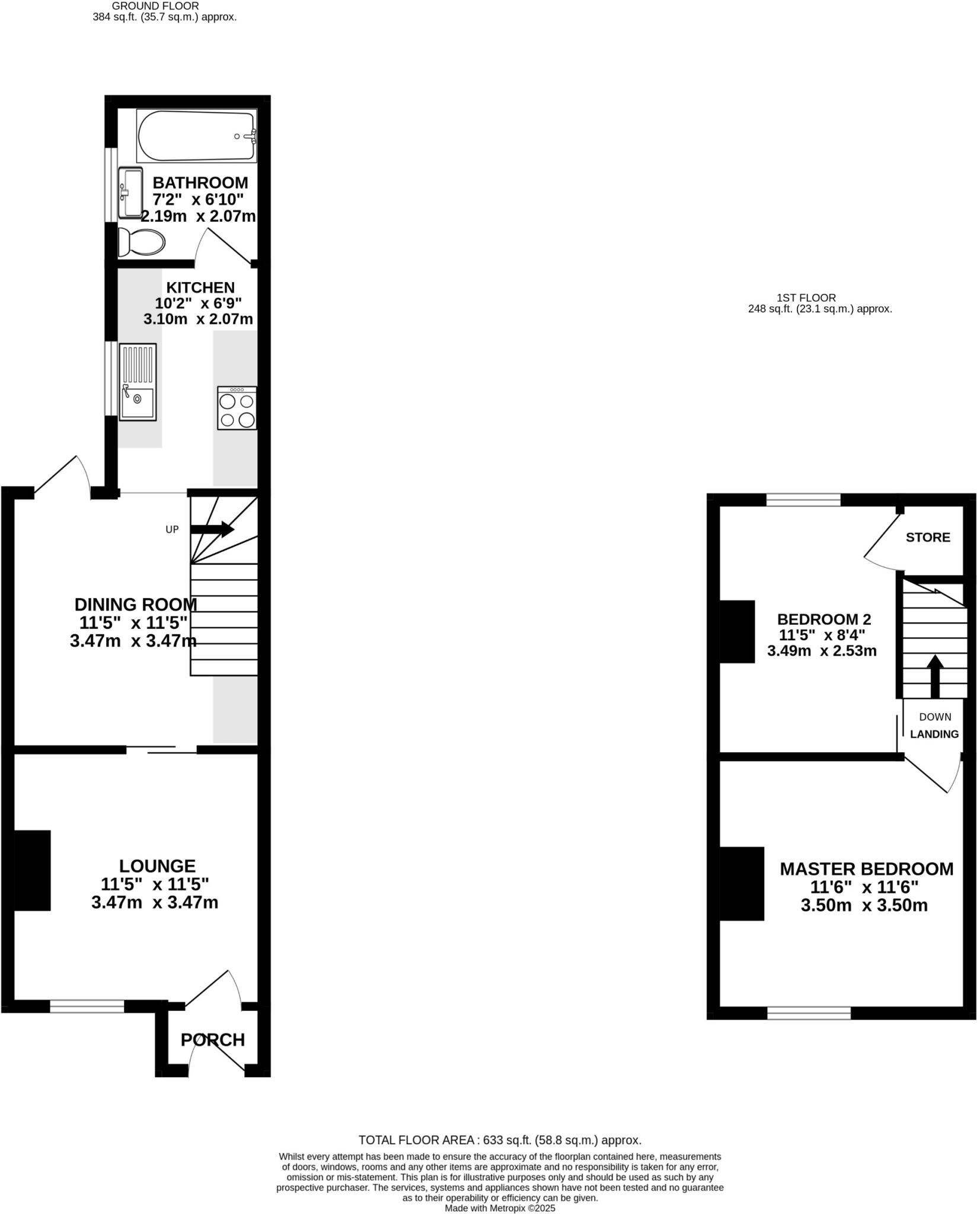
Two double bedrooms, two reception rooms
This traditional mid-terraced two-bedroom house offers a compact, practical layout ideal for a first-time buyer or buy-to-let investor. The property benefits from two reception rooms, a modern kitchen and bathroom, gas central heating and UPVC double glazing. A fully enclosed, low-maintenance rear garden and small front yard add private outdoor space in a town-centre location.
Internally rooms are small-to-average in size with period features such as a bay window and a Victorian-style fireplace; the property would reward modest updating to improve kerb appeal and internal finishes. EPC is D and the house is sold freehold, with very cheap council tax and fast broadband and excellent mobile signal for modern living or letting.
Buyers should note material drawbacks: there is no visible off-street parking and the location is assessed as having a high flooding risk. The wider area is characterised by blue-collar terraces and ageing suburban residents, and some external cosmetic work may be needed. Local schools and amenities are close by, making this a practical, affordable purchase for those prioritising convenience over space.
2 bedroom terraced house for sale in Rosliston Road, Stapenhill, Burton-on-Trent, DE15 — £134,950 • 2 bed • 1 bath • 735 ft²
2 bedroom terraced house for sale in South Oak Street, Burton-on-Trent, DE14 — £145,000 • 2 bed • 1 bath
2 bedroom terraced house for sale in Woods Lane, Stapenhill, DE15 — £160,000 • 2 bed • 1 bath • 765 ft²
2 bedroom terraced house for sale in Grange Street, Burton-on-Trent, DE14 — £150,000 • 2 bed • 1 bath • 798 ft²
2 bedroom terraced house for sale in Waterloo Street, Burton-On-Trent, DE14 — £125,000 • 2 bed • 1 bath • 851 ft²
3 bedroom terraced house for sale in Heath Road, Stapenhill, Burton-on-Trent, DE15 — £140,000 • 3 bed • 1 bath • 814 ft²














































