Affordable three-bedroom home close to shops, schools and transport links.
Freehold three-bedroom mid-terrace with immediate vacant possession
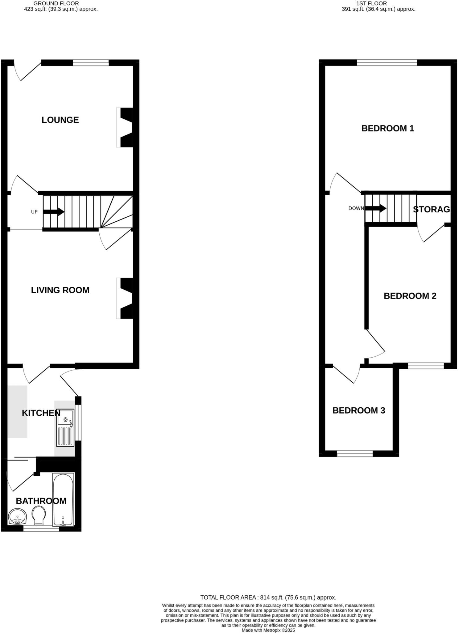
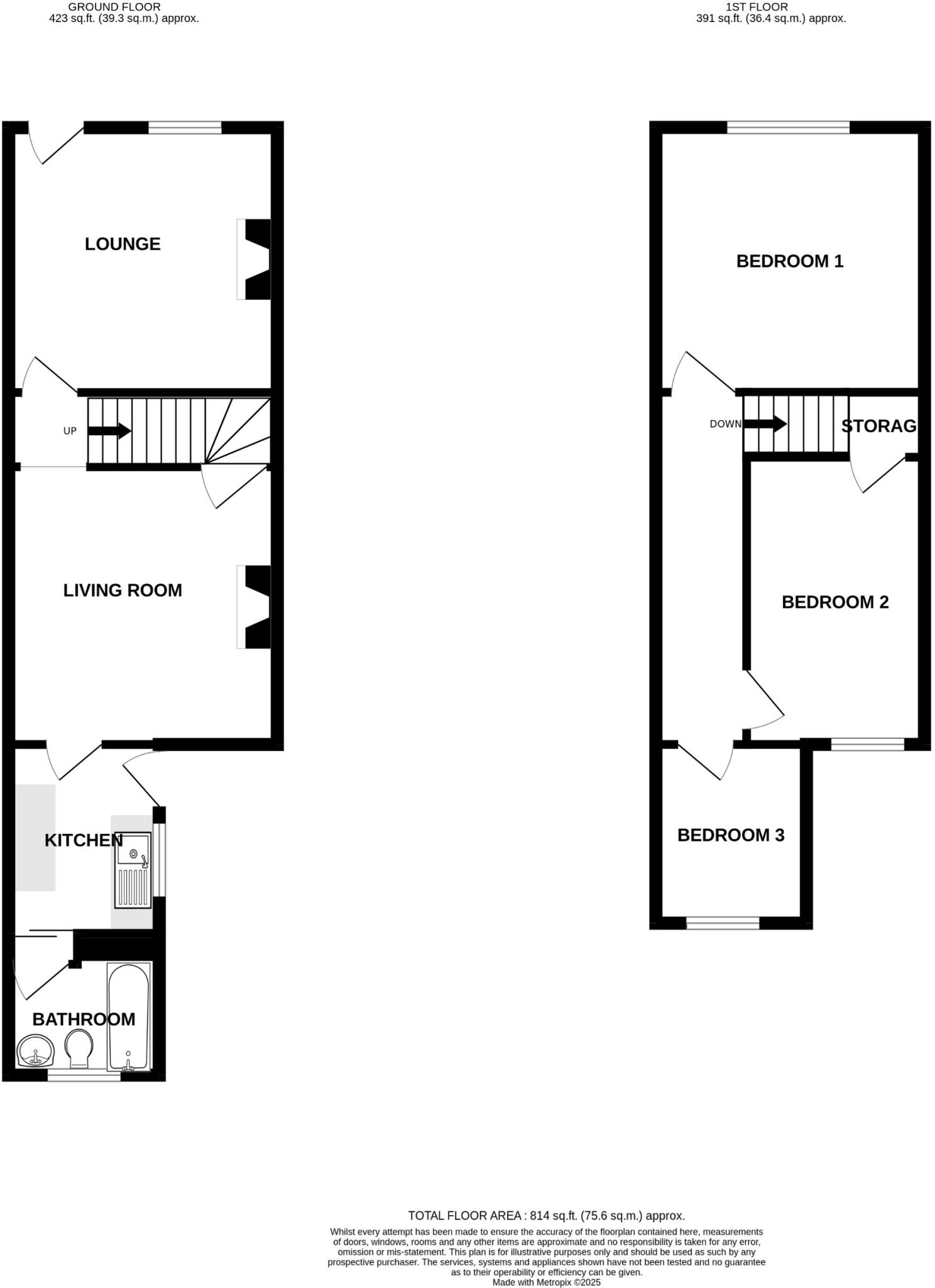
This three-bedroom mid-terrace offers compact, practical living in a well-established Stapenhill neighbourhood. The property is freehold with immediate vacant possession, two reception rooms and an enclosed rear garden with mature fruit trees — a rare private outside space for an urban plot.
Internals are modest in scale (approximately 814 sq ft) with small rooms and standard ceiling heights typical of Victorian terraces. The house has been cared for but presents clear scope for energy and cosmetic improvements: EPC rating F indicates poor thermal efficiency and there may be ongoing running costs to address.
Location is a strong selling point — a short walk to local shops, bus routes and primary and secondary schools rated Good to Outstanding. Broadband and mobile signals are strong, making the home suitable for commuting or home working. The area has higher-than-average crime levels, so buyers should consider security measures.
This property will suit a first-time buyer seeking an affordable three-bedroom home to personalise, or an investor targeting a buy-to-let in a residential rental catchment. Expect some renovation and upgrading (heating/insulation/energy improvements) to maximise comfort and long-term value.
3 bedroom terraced house for sale in Woods Lane, BURTON-ON-TRENT, DE15 — £160,000 • 3 bed • 1 bath • 631 ft²
3 bedroom terraced house for sale in Lansdowne Terrace, Burton Upon Trent, DE14 — £120,000 • 3 bed • 1 bath • 641 ft²
3 bedroom terraced house for sale in Stafford Street, Burton-On-Trent, DE14 — £155,000 • 3 bed • 1 bath • 1235 ft²
2 bedroom terraced house for sale in Woods Lane, Stapenhill, DE15 — £160,000 • 2 bed • 1 bath • 765 ft²
3 bedroom terraced house for sale in Craven Street, Burton-on-Trent, Staffordshire, DE13 — £135,000 • 3 bed • 1 bath • 808 ft²
3 bedroom house for sale in All Saints Road, Burton-On-Trent, DE14 — £120,000 • 3 bed • 1 bath • 1621 ft²


















































