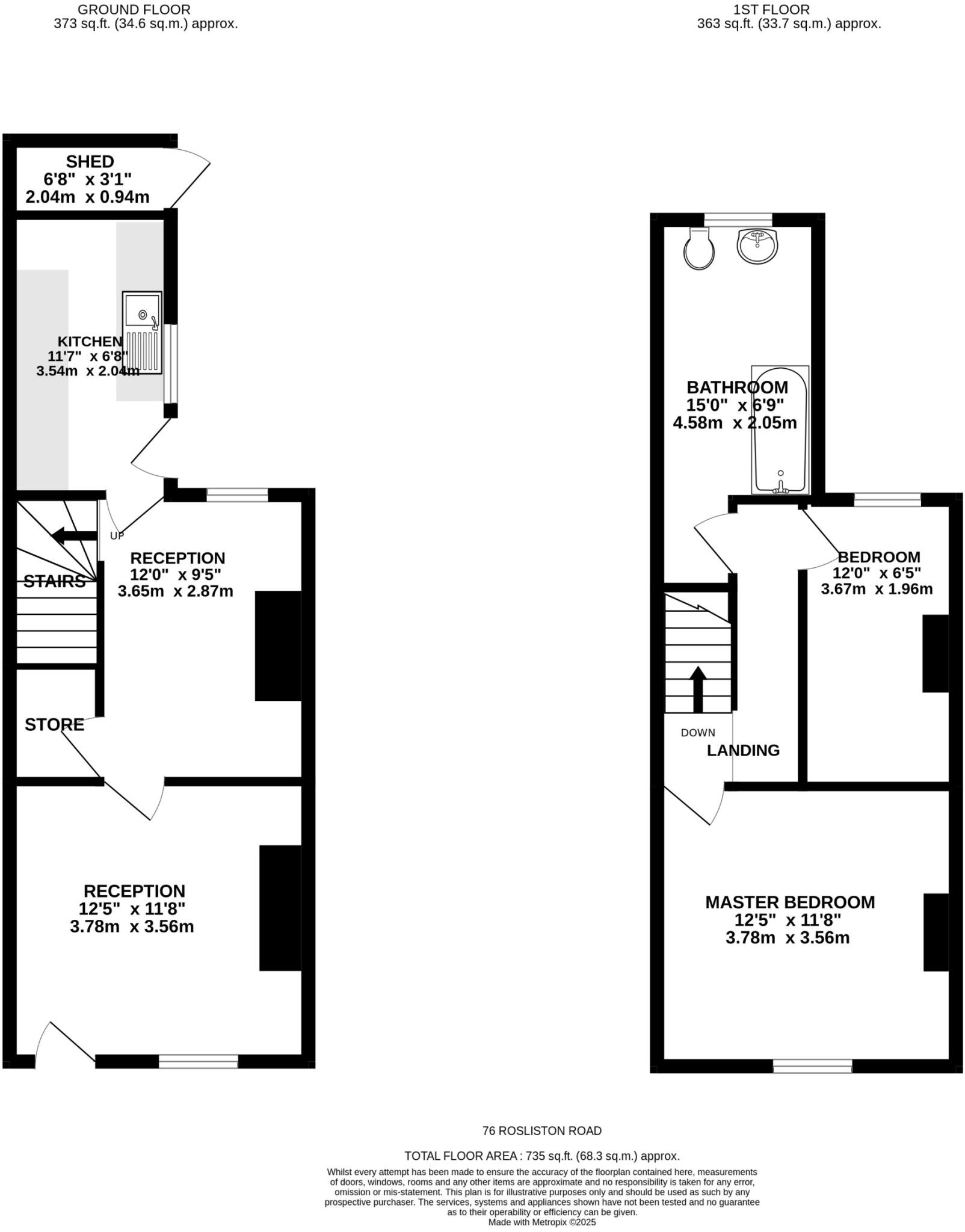
- Chain free freehold mid-terrace with two bedrooms and one bathroom
- Two reception rooms plus a good-sized kitchen, versatile layout
- Good sized rear garden; potential for extension subject to planning
- Compact rooms and standard ceiling heights; limited internal space
- EPC rating D — average energy efficiency, may need improvements
- High local crime levels recorded; consider security measures
- Council tax described as very cheap; no flood risk
- Suitable for first-time buyers or investors; requires some refurbishment
A chain-free, freehold mid-terrace in Stapenhill offering straightforward starter-home or buy-to-let potential. The house has two reception rooms, a practical kitchen and an upstairs bathroom across two modest bedrooms — layout suited to first-time buyers or investors seeking an easy-to-manage property.
The house sits on a small corner plot but benefits from a deceptively large rear garden, useful for outdoor space or future extension (subject to planning). Internally rooms are compact with standard ceiling heights and traditional Victorian brick character to the facade. EPC rating D, so expect average energy performance.
Notable practical points: the area records higher crime levels, and the house is an average-sized, older terrace so buyers should budget for modernisation or targeted refurbishment to maximise value. Council tax is described as very cheap and the property has no flooding risk and strong mobile and broadband connectivity — practical positives for renters or a young household.
Viewings and a full inspection are recommended to confirm condition and refurbishment scope before purchase. For investors, the combination of low entry price, rental-friendly layout and chain-free sale makes this a straightforward acquisition; for first-time buyers it offers an affordable foothold with clear scope for improvement and future value uplift.















































