EX23 8BH - Commercial property for sale in Lansdown Road, Bude, EX23

View on Property Piper

Commercial property for sale in Lansdown Road, Bude, EX23

Summary - 13 LANSDOWN ROAD,BUDE,EX23 8BH EX23 8BH

2 bed 1 bath Commercial Property

**Standout Features:**
- Iconic freehold commercial and residential property in Bude town center
- Dual frontage with two large 12ft windows
- Versatile retail space with several store rooms and two first-floor offices
- Spacious 2-bedroom flat, including five attic rooms for potential development
- Chain-free sale with affordable council tax
- Prominent high street location with strong visibility

**Summary:**
Discover a unique opportunity to own an architecturally intriguing freehold property in the heart of Bude, perfectly positioned with dual frontage on both Queen Street and Lansdown Road. This expansive commercial-residential space features a versatile retail area, enhanced by several store rooms and two first-floor offices, catering to various business needs. The spacious two-bedroom residential flat above provides a comfortable living space, complete with a covered balcony, making it an ideal home or rental opportunity.

The five attic rooms present exciting potential for further development or conversion, offering room for creativity and customization, subject to planning permissions. Situated in a bustling town surrounded by local amenities, this property flaunts both commercial viability and residential charm. While the location is bustling, prospective buyers should be mindful of the average crime rate in the area, and necessary renovations may be required for upkeep. Don’t miss the chance to capitalize on this versatile space that combines both business opportunity and living comfort—act quickly as properties with such potential don’t last long on the market!

Property Details

Brochure Descriptions

Image Descriptions

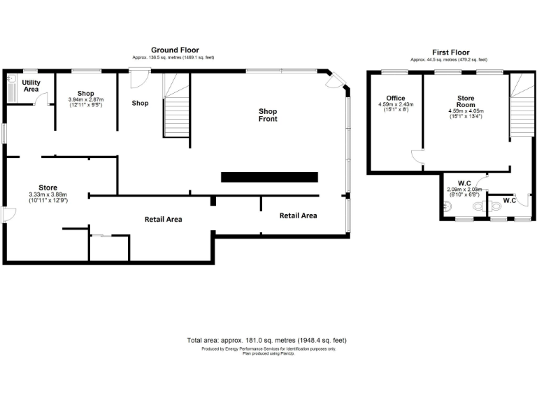
Floorplan Description

Rooms

Textual Property Features

Detected Visual Features

Nearby Schools

Nearest Bars And Restaurants

,,,,}

Nearest General Shops

,,}

Nearest Grocery shops

,,}

Nearest Supermarkets

,,}

Nearest Religious buildings

,,}

Nearest Medical buildings

,,,}

Nearest Leisure Facilities

,,,,}

Nearest Tourist attractions

,,}

Nearest Train stations

,,,,}

Nearest Bus stations and stops

,,,,}

Nearest Hotels

,,}

Tags

Local Market Stats

AirBnB Data

Similar Properties

Meta

High Res Images

Compatible Images

Low res Images

Thumbnails

Raw Images

High Res Floorplan Images

Compatible Floorplan Images

Low res Floorplan Images

FloorplanImages Thumbnail

Raw Floorplan Images