South/east garden backing onto parkland, ideal for families seeking space and schools.
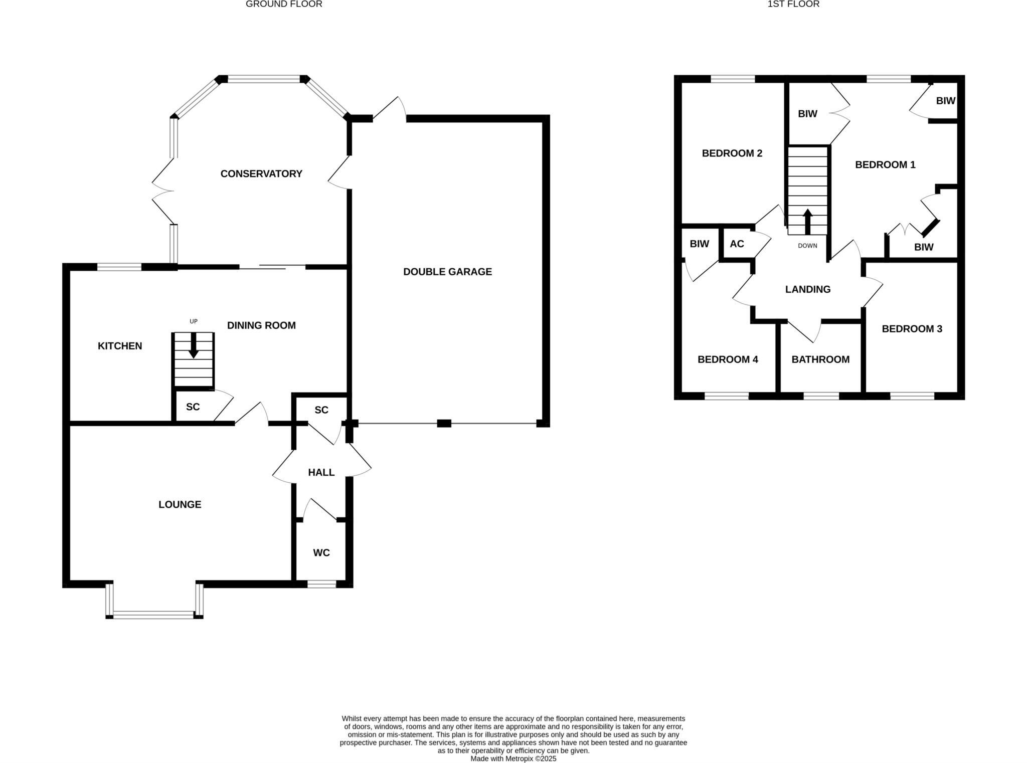
Four bedrooms with traditional layout and good natural light
Conservatory connects to garden; versatile additional living space
Separate summerhouse/home office with power and lighting
Double garage with boiler; potential conversion subject to planning
South/East-facing private garden backing onto parkland
Single bathroom only — may be limiting for larger families
Overall internal size is small (approx. 786 sq ft)
Freehold in a very affluent, low-crime neighbourhood
Set on the Poets Development, this four-bedroom detached house offers practical family living with a private garden backing onto parkland. The conservatory and separate summerhouse/home office add flexible space for working from home or hobbies, while the double garage and driveway provide plentiful parking and storage. The South/East-facing garden and deck create a pleasant outdoor room for much of the day.
Accommodation is arranged in a traditional layout with a lounge, dining room, kitchen, conservatory and four bedrooms upstairs. The property is well presented throughout with wood-style floors and double glazing; it benefits from mains gas central heating and a modern feel but occupies a relatively small overall internal size (approximately 786 sq ft). There is only one family bathroom, which may be limiting for larger households.
Practical positives include strong school catchment (Portfields and Ousedale), easy access to local shops, parkland and good transport links to Milton Keynes and the M1. The double garage houses the boiler and offers conversion potential subject to planning; the garden studio provides immediate, powered workspace. Buyers should note that services, fixtures and fittings have not been tested and measurements are approximate.
5 bedroom detached house for sale in Sitwell Close, Newport Pagnell, Buckinghamshire, MK16 — £750,000 • 5 bed • 2 bath • 2028 ft²
4 bedroom semi-detached house for sale in Byron Drive, Newport Pagnell, Buckinghamshire, MK16 — £425,000 • 4 bed • 2 bath • 1030 ft²
4 bedroom detached house for sale in Whitton Way, Newport Pagnell, MK16 — £450,000 • 4 bed • 1 bath • 1002 ft²
4 bedroom detached house for sale in Wolverton Road, Newport Pagnell, MK16 — £600,000 • 4 bed • 2 bath • 1496 ft²
3 bedroom bungalow for sale in Sitwell Close, Newport Pagnell, MK16 — £700,000 • 3 bed • 2 bath • 1130 ft²
4 bedroom detached house for sale in Dart Close, Newport Pagnell, MK16 — £475,000 • 4 bed • 2 bath • 1066 ft²










































































































