Flexible 3/4 bedroom home with large garden and multiple off-street parking spaces.
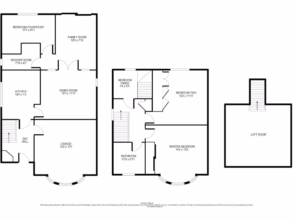
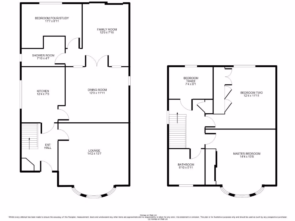
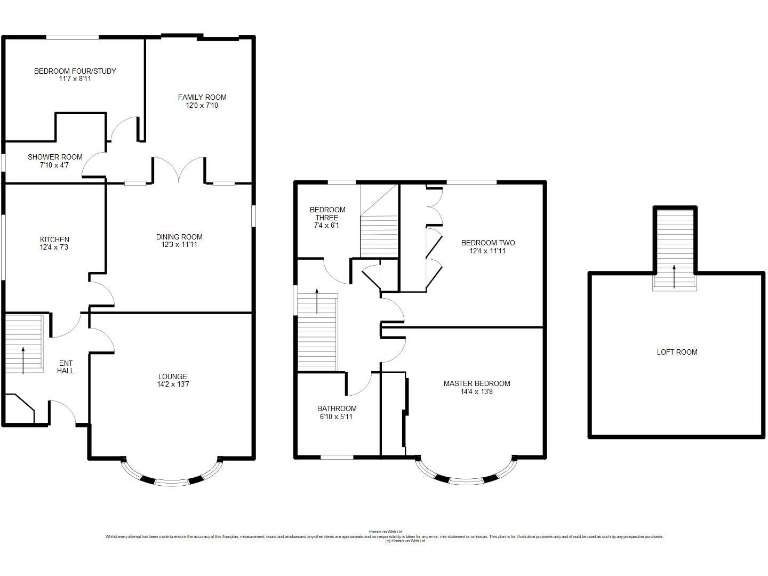
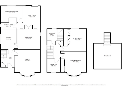
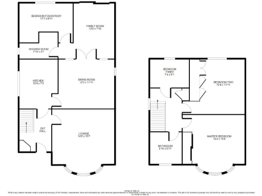
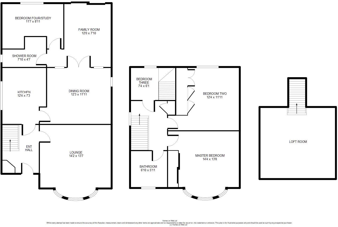
Approximately 1,496 sq ft of flexible family accommodation
A flexible family home close to Newport Pagnell High Street and well-placed for Ousedale School. The house offers about 1,496 sq ft across three reception rooms, a ground-floor shower room, and a loft room accessed from the third bedroom — useful as a home office, playroom or occasional bedroom. A large, private rear garden and driveway for multiple cars make it practical for family life and entertaining.
Recent works include a full roof retile in June 2025, removal of spray foam in the loft and new guttering; the property also benefits from triple glazing and gas central heating. Interiors combine period character (bay windows, a cosy wood burner in the front lounge) with a sensible fitted kitchen and adaptable family room with sliding doors to the garden.
Buyers should note the council tax band is above average and the house dates from the mid-20th century, so routine inspections are recommended (electrics, boiler and services have not been tested). The layout suits families seeking good local schools, green walks and easy access to Milton Keynes and the M1.
This is a practical, well-presented home with generous outdoor space and genuine scope to adapt rooms to suit growing families or multigenerational living.
4 bedroom semi-detached house for sale in Longfellow Drive, Newport Pagnell, MK16 — £450,000 • 4 bed • 1 bath • 1399 ft²
4 bedroom detached house for sale in Gladstone Close, Newport Pagnell, MK16 — £525,000 • 4 bed • 2 bath • 1475 ft²
4 bedroom detached house for sale in Welland Drive, Newport Pagnell, MK16 — £525,000 • 4 bed • 2 bath • 1138 ft²
4 bedroom detached house for sale in Dart Close, Newport Pagnell, MK16 — £485,000 • 4 bed • 2 bath • 1066 ft²
4 bedroom semi-detached house for sale in Avon Close, Newport Pagnell, MK16 — £450,000 • 4 bed • 2 bath • 867 ft²
4 bedroom detached house for sale in Whitton Way, Newport Pagnell, Buckinghamshire, MK16 — £675,000 • 4 bed • 2 bath • 1701 ft²






















































































































