Village living with upgraded kitchen and sustainable energy features.
- Spacious open-plan kitchen/dining/family room with Dekton worktops
- Principal suite with dressing room and en-suite bathroom
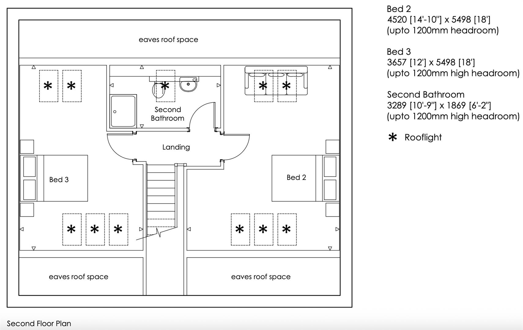
- Two attic bedrooms with sloped ceilings; limited headroom in parts
- Detached double garage and driveway parking; EV charging point
- Solar panels and gas central heating for lower running costs
- Modest front garden; rear backs onto mature trees/woodland backdrop
- New-build fixtures: premium LVT flooring and luxury fitted kitchen
- Average broadband and mobile signal; council tax band not provided
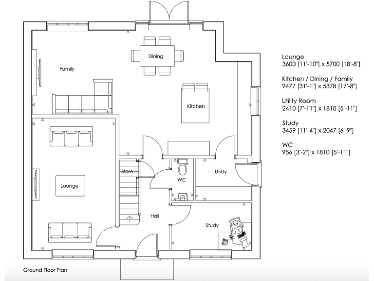
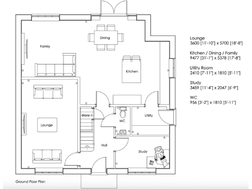
This impressive five-bedroom detached home sits on a modern development in Findern, offering three floors of well-planned family living. The ground floor features a large open-plan kitchen/dining/family space with Dekton worktops, a separate lounge, study, utility and guest WC, ideal for everyday family life and entertaining.
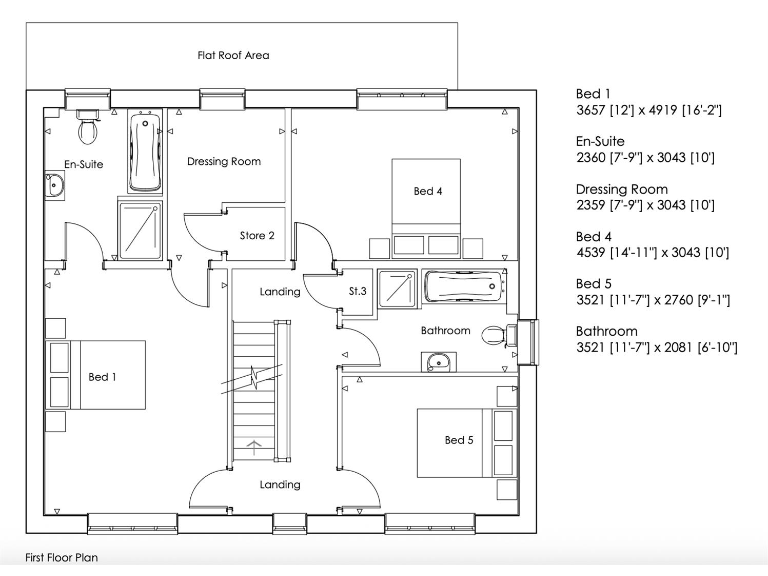
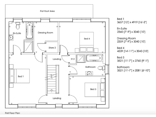
Upstairs provides three generous double bedrooms including a principal suite with dressing room and en-suite; the top (loft) floor adds two further doubles and a bathroom, suitable for teenagers, guests or multi-generational use. Note the top-floor rooms have sloped ceilings with restricted headroom in parts, which reduces usable floor area compared with full-height bedrooms.
Practical, energy-conscious features include solar panels, gas central heating, double glazing, EV charging point and a detached double garage. The property is freehold and built in quality finishes throughout — premium LVT flooring downstairs, luxury fitted kitchen and fitted bathrooms — making this a turn-key family option in a very affluent village setting with very low crime rates.
Considerations: the front garden is modest and the upper-floor eaves limit usable space; broadband and mobile signals are average. Council tax band is not provided. Overall, this new-build offers substantial family accommodation with sustainable upgrades and strong local schools nearby.
4 bedroom detached house for sale in Bakeacre, Doles Lane, Findern, DE65 6AX, DE65 — £449,950 • 4 bed • 2 bath • 657 ft²
3 bedroom detached house for sale in Sycamore Avenue, Findern, DE65 — £400,000 • 3 bed • 2 bath • 1033 ft²
4 bedroom detached house for sale in Longlands, Doles Lane, Findern DE65 6AX, DE65 — £525,000 • 4 bed • 2 bath • 670 ft²
3 bedroom detached house for sale in Thrushton, Doles Lane, Findern DE65 6AX, DE65 — £435,000 • 3 bed • 2 bath • 601 ft²
4 bedroom detached bungalow for sale in Hillside, Findern, DERBY, DE65 — £650,000 • 4 bed • 2 bath • 1271 ft²
5 bedroom detached house for sale in Doles Lane, Findern, Derby, DE65 — £735,000 • 5 bed • 2 bath • 3248 ft²


































