Energy-efficient three-bedroom dwelling ideal for modern family life close to countryside.
10-year new-build guarantee and double-glazed throughout|Solar PV and electric car charging point for lower running costs|Detached single garage with driveway parking|Open-plan kitchen/dining/family room with garden access|Principal bedroom with en-suite and dressing room|Overall internal size is small (approx. 601 sq ft) — compact rooms|Average broadband and mobile signal; council tax banding unknown|No flood risk; crime level very low
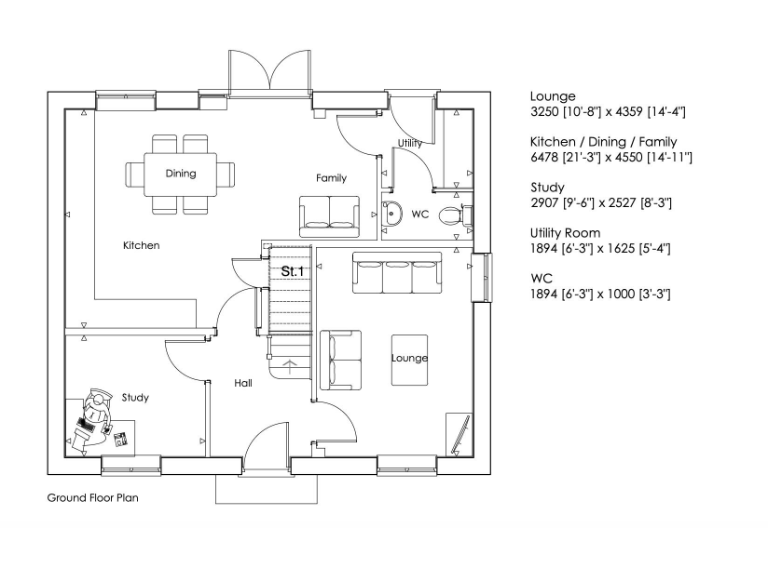
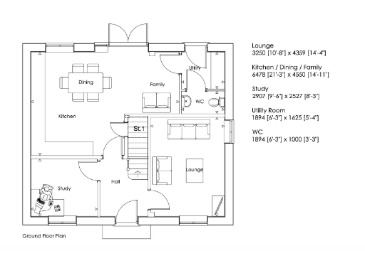
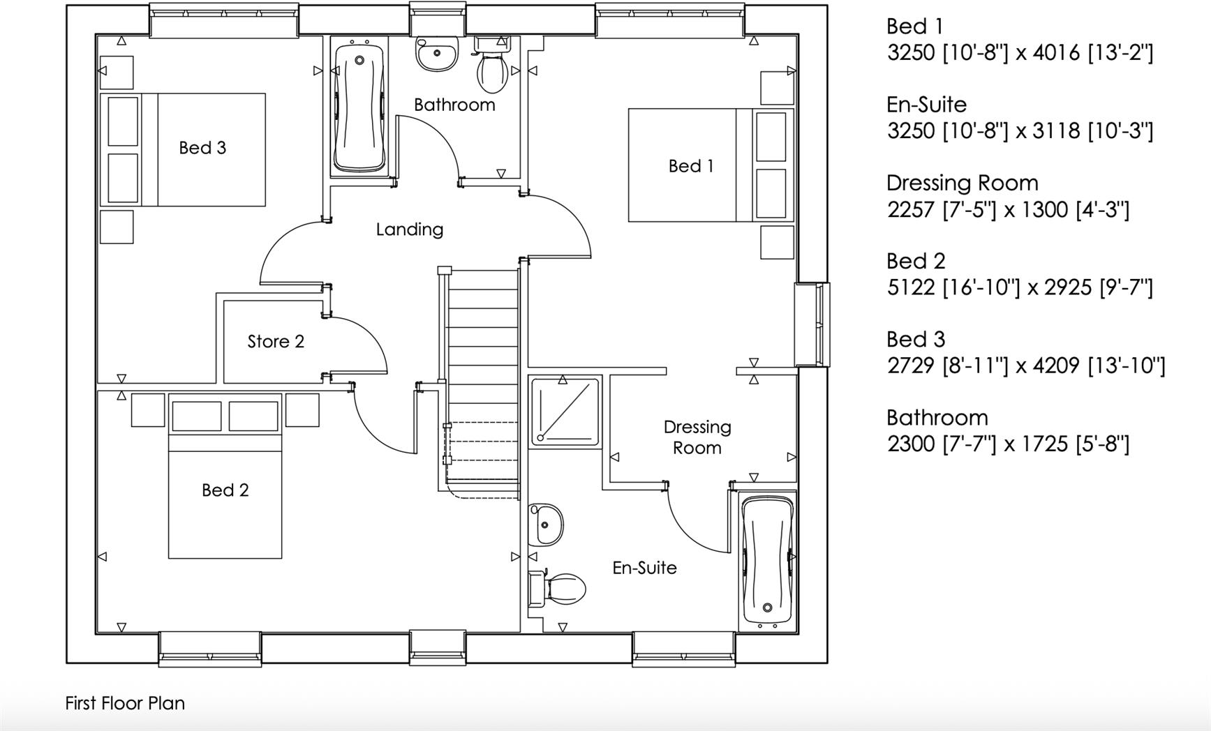
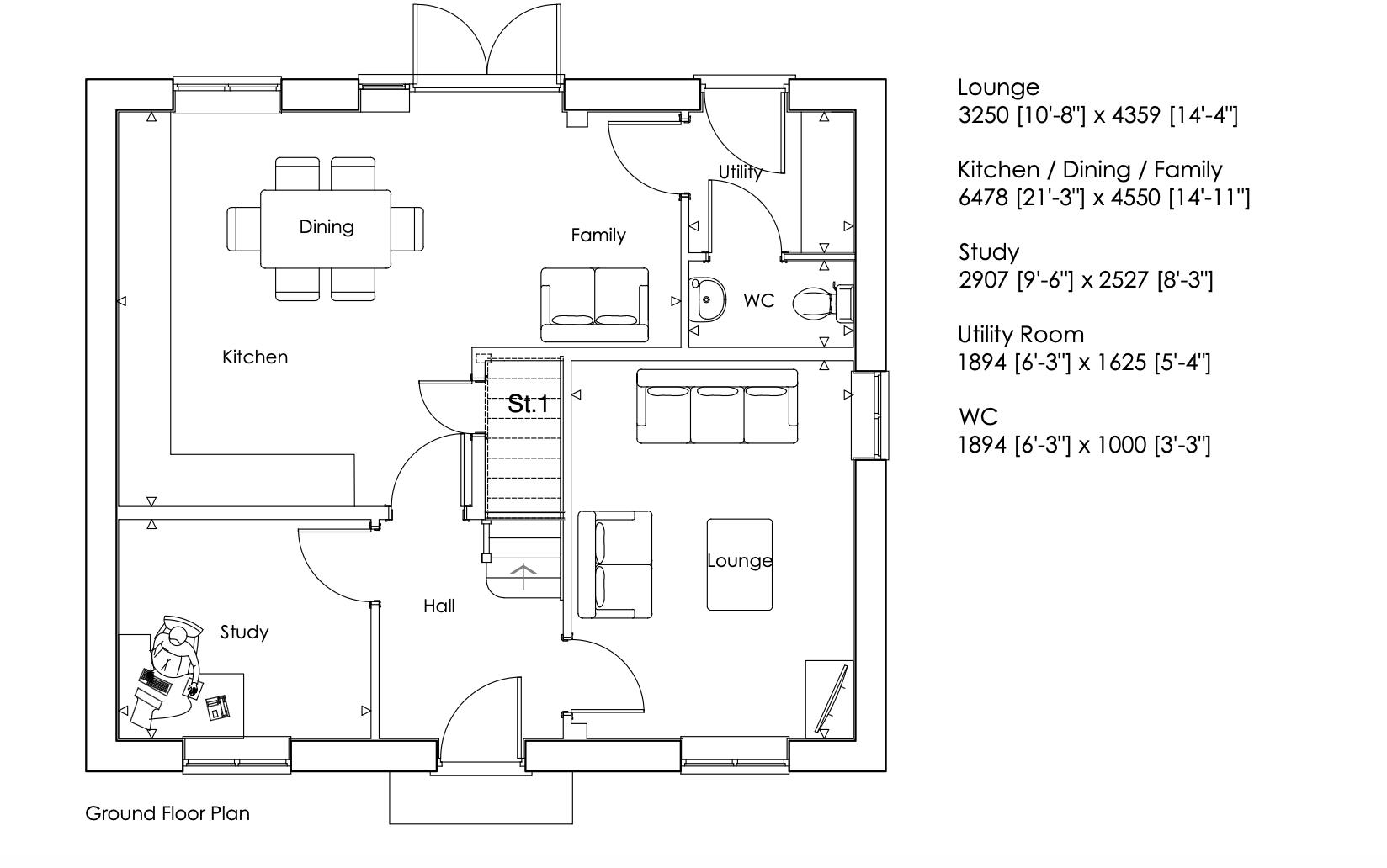
A compact, contemporary three-bedroom detached home built for low-maintenance family living. The Thrushton offers an open-plan kitchen/dining/family space with French doors to a private rear garden, a separate lounge and a ground-floor study — practical spaces for daily life and home working. Energy-conscious buyers will value the integrated solar panels, gas central heating and an electric car charging point, plus a detached single garage and off-street parking.
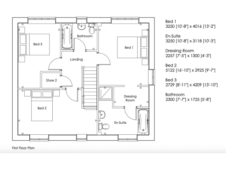
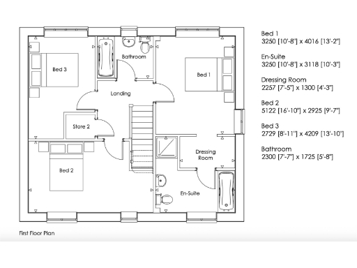
This is a new-build property with a 10-year guarantee and double glazing throughout, set within a small, affluent village-style development backing onto mature treeline. The principal bedroom includes an en-suite and dressing room; two further bedrooms and a family bathroom complete the first floor. Crime is very low and there is no flooding risk, which supports a secure, long-term family choice.
Important practical points to note: the overall internal size is small (approx. 601 sq ft), so rooms and storage are more compact than typical three-bedroom homes — prospective buyers should check space against their needs. Broadband and mobile signals are average, and council tax banding is not yet confirmed. The property suits buyers seeking a modern, energy-efficient home in a quiet town-fringe setting rather than those needing large rooms or extensive grounds.
4 bedroom detached house for sale in Longlands, Doles Lane, Findern DE65 6AX, DE65 — £525,000 • 4 bed • 2 bath • 670 ft²
5 bedroom detached house for sale in Aldersley, Doles Lane, Findern, DE65 6AX, DE65 — £679,950 • 5 bed • 3 bath • 2144 ft²
4 bedroom detached house for sale in Bakeacre, Doles Lane, Findern, DE65 6AX, DE65 — £449,950 • 4 bed • 2 bath • 657 ft²
4 bedroom detached house for sale in 58 Lower Pingle Road, Ashbourne, Derbyshire, DE6 — £499,500 • 4 bed • 3 bath • 1609 ft²
3 bedroom detached house for sale in Acacia Lane,
Branston,
Burton-On-Trent,
DE14 3FW, DE14 — £305,000 • 3 bed • 1 bath • 641 ft²
4 bedroom detached house for sale in Hawthorn, Doles Lane, Findern DE65 6AX, DE65 — £497,950 • 4 bed • 2 bath • 720 ft²






























