Energy-efficient village-edge home with garage and charging point for eco-conscious families.
10-year new-build guarantee included
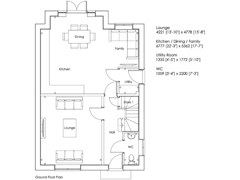
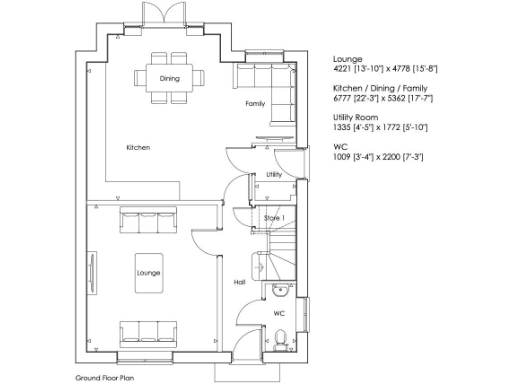
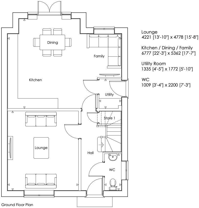
This new-build detached house offers modern, energy-efficient family living on the edge of Findern. The open-plan kitchen/dining/family room is generous and designed for everyday family life, while solar panels and an EV charging point reduce running costs and carbon footprint. A detached single garage and private driveway provide secure parking.
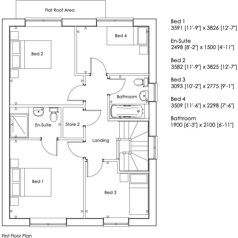
Accommodation includes four bedrooms and two contemporary bathrooms, with an en-suite to the principal bedroom. The property comes with a 10-year new-build guarantee and double glazing throughout, giving clear reassurance on build quality. Ceiling heights and room sizes are typical of modern homes; the layout is practical for parents needing flexible living and utility space.
Buyers should note the overall internal area is compact for a four-bedroom house (approximately 657 sq ft), and the private garden is modest. Broadband and mobile signal are average in the area. Council tax band is not yet confirmed. These factors make the house especially suited to buyers prioritising low-energy running costs, a new-build warranty and village-edge living rather than expansive living space or large gardens.
4 bedroom detached house for sale in Longlands, Doles Lane, Findern DE65 6AX, DE65 — £525,000 • 4 bed • 2 bath • 670 ft²
5 bedroom detached house for sale in Aldersley, Doles Lane, Findern, DE65 6AX, DE65 — £679,950 • 5 bed • 3 bath • 2144 ft²
3 bedroom detached house for sale in Thrushton, Doles Lane, Findern DE65 6AX, DE65 — £435,000 • 3 bed • 2 bath • 601 ft²
3 bedroom detached house for sale in Hillside, Findern, DERBY, DE65 — £650,000 • 3 bed • 2 bath • 1271 ft²
4 bedroom detached house for sale in Hawthorn, Doles Lane, Findern DE65 6AX, DE65 — £497,950 • 4 bed • 2 bath • 720 ft²
4 bedroom detached house for sale in Elderflower Close, Mickleover, DE3 — £395,000 • 4 bed • 2 bath • 1149 ft²






























