Period three-bedroom family house, refurbished and chain-free near Hammersmith amenities.
Freehold mid-terrace with no onward chain
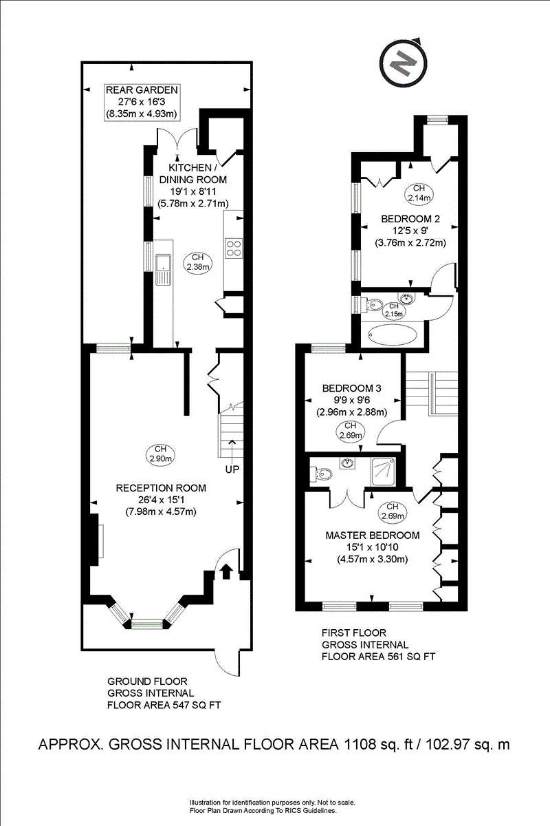
Bright, recently refurbished period house offering comfortable family living across two floors. The bay-fronted reception with high ceilings and wooden floors provides a welcoming principal living space, while a well-fitted kitchen/breakfast room opens onto a low‑maintenance decked patio garden. The property is presented in neutral contemporary tones and feels ready to move into.
Three generous double bedrooms, an en-suite shower to the main bedroom and a separate family bathroom suit family routines and guest stays. At about 1,108 sq ft the house delivers practical room proportions for an urban London family, with good natural light and retained period detail in the principal reception.
Location is a strong selling point: Greyhound Road sits within a short walk of the Thames Path, Hammersmith and Barons Court stations, and everyday shops, supermarkets and riverside restaurants. Freehold tenure and no onward chain simplify purchase logistics.
Important considerations: the plot is small and the outside space is a decked patio rather than a garden for extensive outdoor use. Council Tax is Band F, which will be a notable ongoing cost. The area records higher local crime levels than average, so buyers should factor security measures into their plans.
1 bedroom apartment for sale in Greyhound Road, Hammersmith, London, W6 — £365,000 • 1 bed • 1 bath • 432 ft²
3 bedroom end of terrace house for sale in Bothwell Street, Hammersmith, London, W6 — £1,175,000 • 3 bed • 2 bath • 1253 ft²
1 bedroom apartment for sale in Greyhound Road, Hammersmith, London, W6 — £325,000 • 1 bed • 1 bath • 462 ft²
3 bedroom house for sale in Yeldham Road, Hammersmith, London, W6 — £1,095,000 • 3 bed • 2 bath • 1385 ft²
2 bedroom apartment for sale in Greyhound Road, Hammersmith, London, W6 — £435,000 • 2 bed • 1 bath • 477 ft²
5 bedroom house for sale in Frithville Gardens, London W12 — £2,395,000 • 5 bed • 3 bath • 2304 ft²






























































































