**Standout Features:**
- Prime freehold retail building located directly opposite Chichester Cathedral.
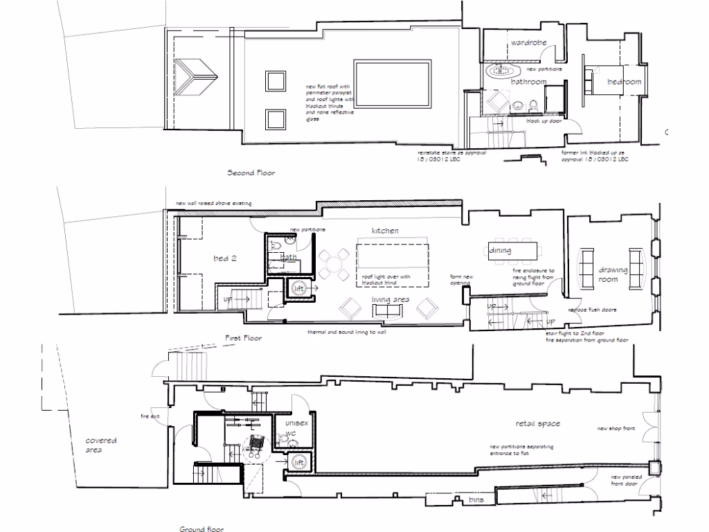
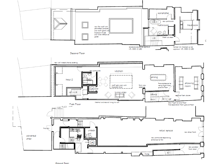
- Approved planning consent for a luxury duplex 2-bedroom apartment.
- Exceptional street frontage in a historical area with Georgian architecture.
- Large internal space (2555 sq ft), offering diverse commercial and residential potential.
- Close proximity to a variety of walkable amenities, including shops, cafes, and public transport.
**Summary:**
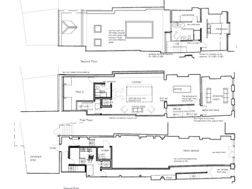
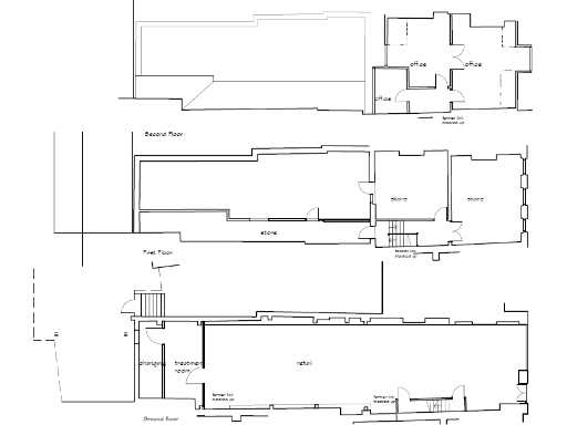
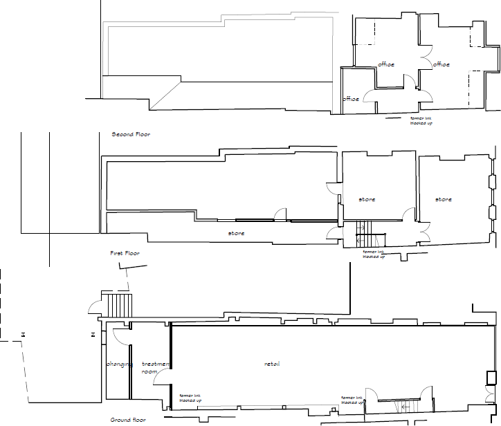
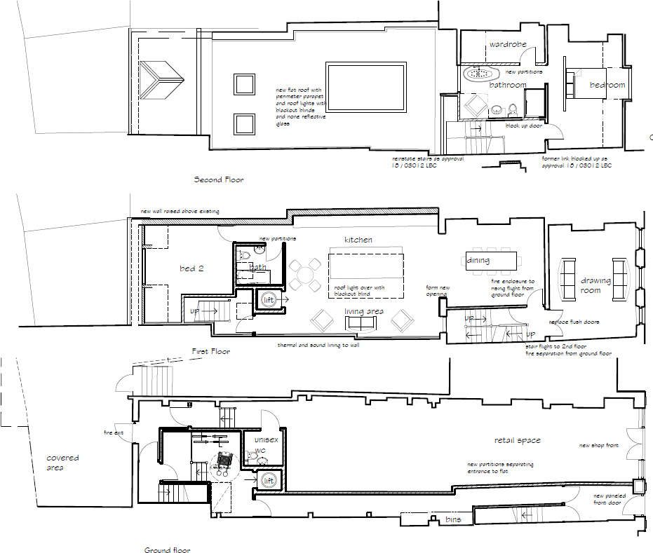
This expansive retail property on West Street in Chichester presents an incredible investment opportunity with dual potential for both commercial and residential use. With approved planning consent for a luxurious duplex apartment boasting stunning views of the iconic Cathedral, the property stands out with its historic charm and considerable size, making it ideal for ambitious investors or those looking to secure a unique living space in a vibrant community.
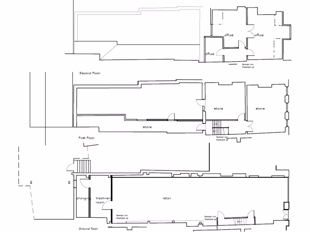
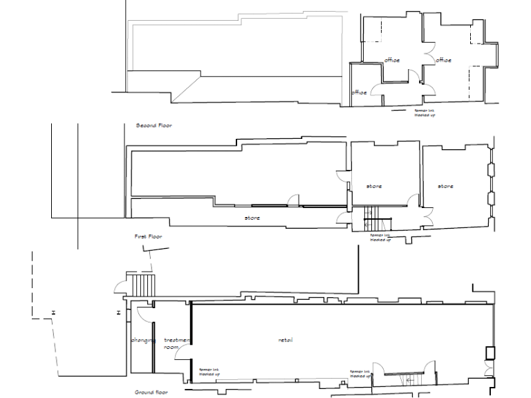
The ground floor features ample retail space that could serve as the perfect launchpad for a business, while the upper floors are poised for conversion to create a stylish, modern apartment. Although the property's Grade II listing restricts certain renovations and extends maintenance considerations, the advantageous location and existing features far outweigh these challenges. Don’t miss the chance to secure this remarkable space with limitless potential right in the heart of Chichester—such prime properties are rare to find!
Terraced house for sale in West Street, Chichester, West Sussex, PO19 — £595,000 • 1 bed • 1 bath • 1974 ft²
High street retail property for sale in 58 East Street, Chichester, West Sussex, PO19 1HL, PO19 — £645,000 • 1 bed • 1 bath • 1915 ft²
High street retail property for sale in 14-15 East Street, Chichester, West Sussex, PO19 1HE, PO19 — £1,435,000 • 1 bed • 1 bath • 3097 ft²
High street retail property for sale in 41 East Street, Chichester, West Sussex, PO19 — £465,000 • 1 bed • 1 bath • 2294 ft²
Office for sale in Avenue House, 8-10 Southgate, Chichester, West Sussex, PO19 — £1,750,000 • 1 bed • 1 bath • 6065 ft²
Office for sale in 24 West Street, Chichester, approx 3,600 sqft, PO19 — £1,500,000 • 2 bed • 1 bath • 3600 ft²














































