**Standout Features:**
- **Prime Location**: Directly opposite Chichester Cathedral on West Street.
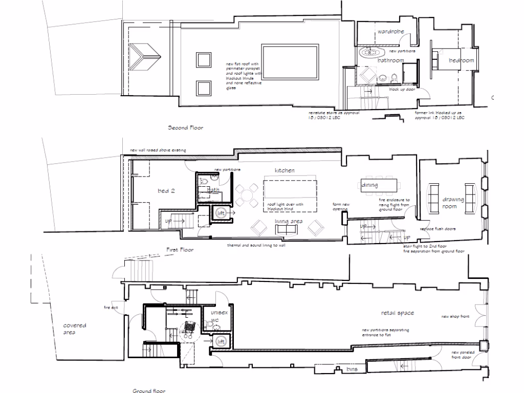
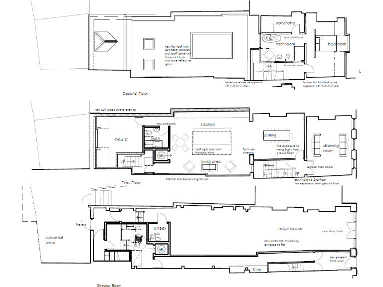
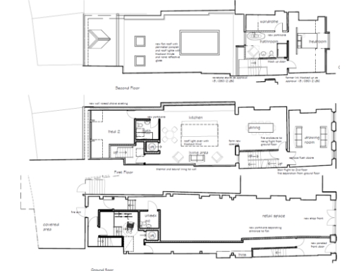
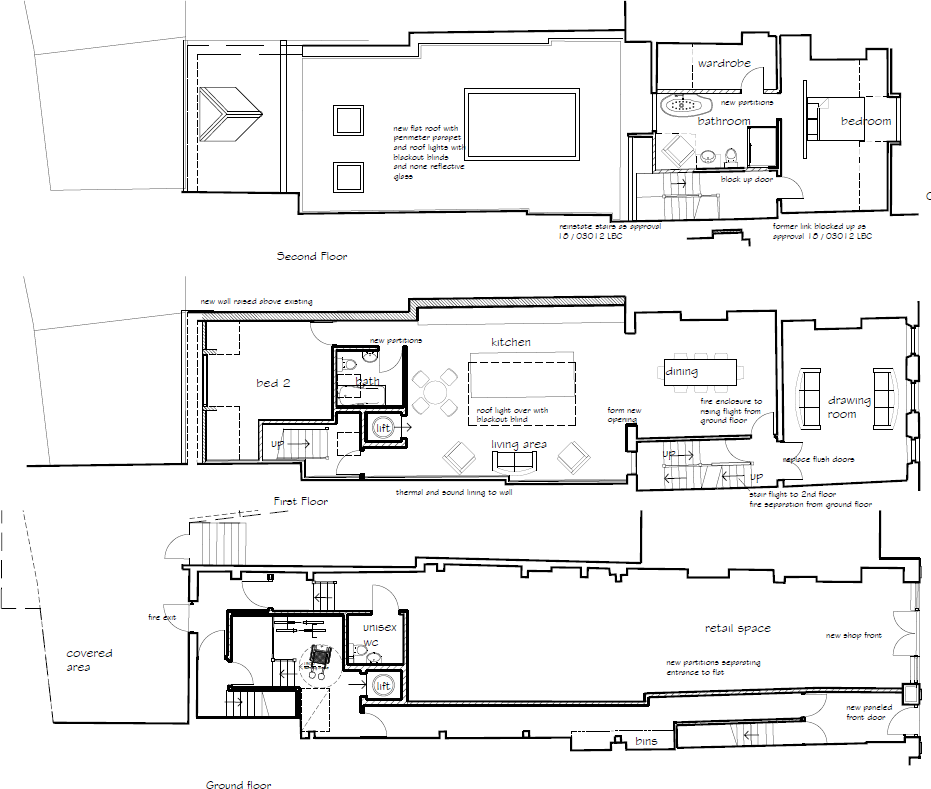
- **Planning Consent**: Granted for a luxurious two-bedroom duplex apartment with stunning cathedral views (Planning reference: CC/22/00062/LBC).
- **Spacious Size**: Encompasses an impressive 1,974 sq. ft. over multiple levels.
- **Freehold Status**: Allows full ownership and potential modifications.
- **Grade II Listed**: Offering character and historic appeal.
**Potential Concerns:**
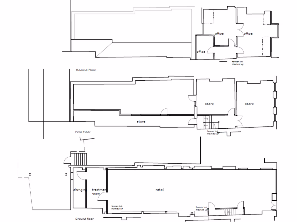
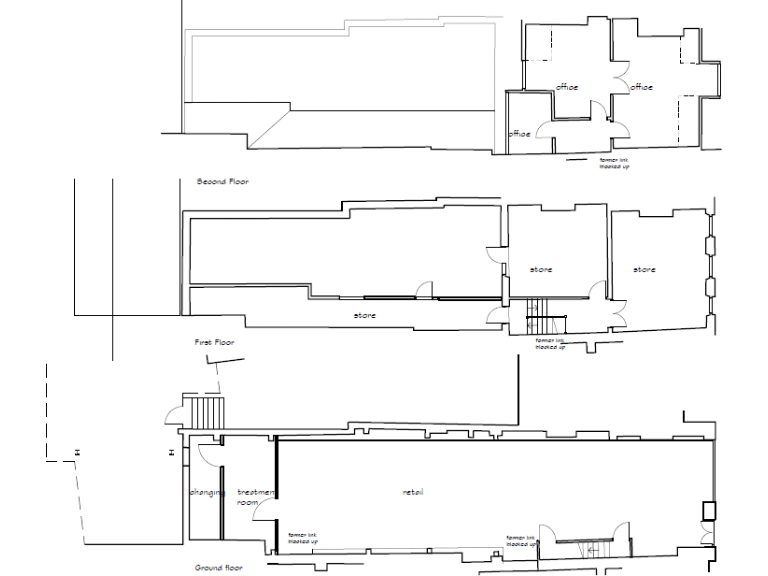
- **Renovation Needed**: The property requires investment and renovations to realize its full potential.
- **Crime Rate**: Noted to be very high in the local area, which may concern some buyers.
**Summary Description:**
This remarkable freehold retail building in the heart of Chichester presents a unique opportunity for investors and developers alike. With planning consent already secured for a luxury duplex apartment, this property opens the door to creating elegant living spaces right across from the iconic Cathedral. The generous footprint allows for extensive commercial activities on the ground floor, paired with comfortable residential quarters above.
Characterized by its enchanting Georgian architecture and unmatched central location, this building captures the essence of city living, surrounded by historic charm and vibrant community amenities. While renovation is needed to convert the property to its full potential, the investment prospects are promising in a rich urban environment with diverse walkable amenities just steps away. With the size and flexibility offered, this property is a standout opportunity not to be missed—envision your future here today and act quickly as such prime offerings tend to captivate interest swiftly!
High street retail property for sale in West Street, Chichester, West Sussex, PO19 — £595,000 • 1 bed • 1 bath • 2555 ft²
Office for sale in 24 West Street, Chichester, approx 3,600 sqft, PO19 — £1,500,000 • 2 bed • 1 bath • 3600 ft²
2 bedroom town house for sale in 24 West Street, Chichester, approx 3,600 sqft , PO19 — £1,500,000 • 2 bed • 1 bath • 3600 ft²
Office for sale in Hollybrook House, 4 East Pallant, Chichester, West Sussex, PO19 — £600,000 • 1 bed • 1 bath • 2442 ft²
High street retail property for sale in 14-15 East Street, Chichester, West Sussex, PO19 1HE, PO19 — £1,435,000 • 1 bed • 1 bath • 3097 ft²
High street retail property for sale in 58 East Street, Chichester, West Sussex, PO19 1HL, PO19 — £645,000 • 1 bed • 1 bath • 1915 ft²














































