**Standout Features:**
- Prime retail location in busy Chichester city center
- Grade II Listed building with historic charm
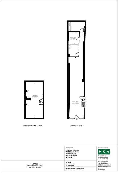
- Ground floor sales area of 1,017 sq ft
- Current tenant: Vapouriz Limited, lease until March 2031 with a passing rent of £40,000 per annum
- High foot traffic area near major retailers like Caffè Nero, TK Maxx, and The Body Shop
- Guide Price: £465,000 with an expected Net Initial Yield (NIY) of 8.04% post-rent review in 2029
**Concise Summary:**
This exceptional retail property at 41 East Street, Chichester offers a rare opportunity in a vibrant, bustling market town renowned for its historic charm. The Grade II Listed building boasts a spacious, open-plan ground floor sales area of 1,017 sq ft, perfectly suited for a variety of retail opportunities. Occupying a prime position among popular high street brands, this location benefits from high foot traffic, making it a lucrative investment for discerning buyers.
Currently leased to Vapouriz Limited until March 2031 at a passing rent of £40,000 per annum, the property ensures a term of over six years of secured income, along with a rent review slated for 2029, potentially enhancing your returns.
While the property stands in excellent condition, prospective investors should be aware of current financing challenges due to the lease term and the building’s listed status which may restrict renovation or extension options. With a guide price of £465,000 reflecting a favorable NIY, this opportunity to secure a piece of Chichester's retail landscape won't last long—act now and invest in your future!
High street retail property for sale in 14-15 East Street, Chichester, West Sussex, PO19 1HE, PO19 — £1,435,000 • 1 bed • 1 bath • 3097 ft²
High street retail property for sale in 58 East Street, Chichester, West Sussex, PO19 1HL, PO19 — £645,000 • 1 bed • 1 bath • 1915 ft²
High street retail property for sale in 6 & 7(6a) North Street, Chichester, West Sussex, PO19 — £1,340,000 • 1 bed • 1 bath • 5131 ft²
High street retail property for sale in West Street, Chichester, West Sussex, PO19 — £595,000 • 1 bed • 1 bath • 2555 ft²
Terraced house for sale in West Street, Chichester, West Sussex, PO19 — £595,000 • 1 bed • 1 bath • 1974 ft²
High street retail property for sale in Guildhall Street, Chichester, West Sussex, PO19 — £325,000 • 1 bed • 1 bath • 2007 ft²






































































