GU2 4BW - 2 bedroom flat for sale in Portsmouth Road, GU2, Guildford,…

View on Property Piper

2 bedroom flat for sale in Portsmouth Road, GU2, Guildford, GU2

Summary - WYCLIFFE BUILDINGS 10 PORTSMOUTH ROAD GUILDFORD GU2 4BW

2 bed 1 bath Flat

Compact period flat close to Guildford station and the cobbled high street..
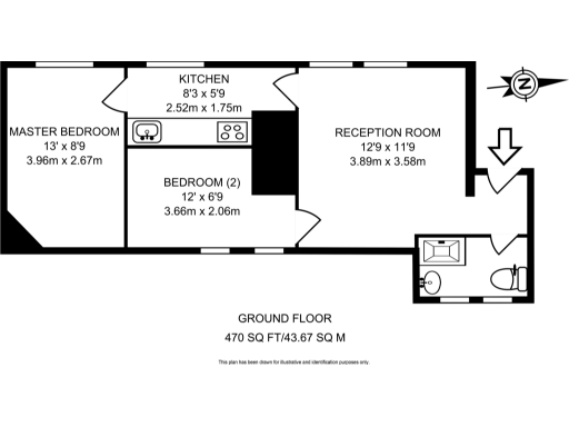
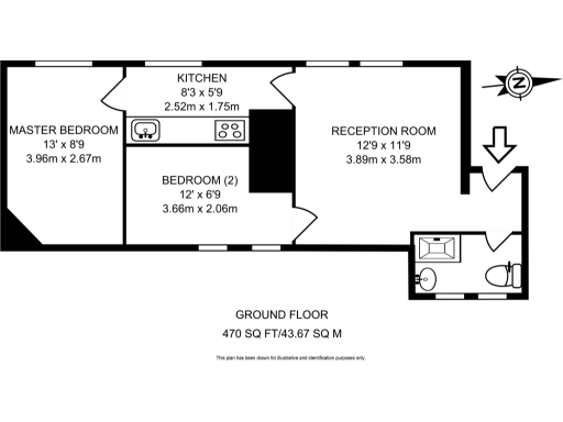
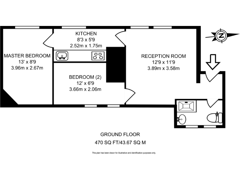
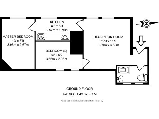
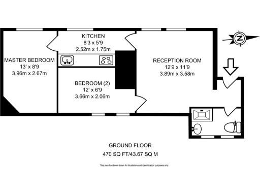
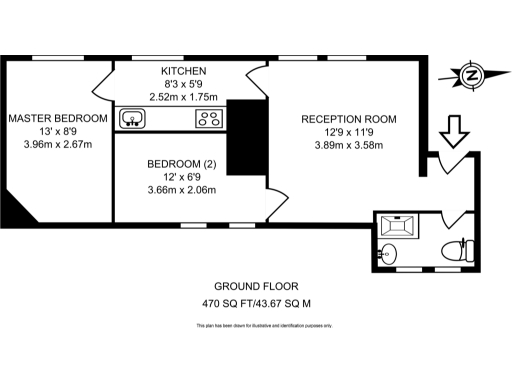
Ground-floor 2-bed flat, approx 470 sq ft
A compact two-bedroom ground-floor flat in the heart of Guildford’s cobbled high street, offering immediate access to shops, cafes and the River Wey. Interiors are bright and neutral with period touches such as wooden floors and a bay window that add character to the living space.

Practical benefits include a long lease (106 years), share of freehold ownership and a short walk to Guildford mainline station—appealing for commuters and first-time buyers. The property’s small footprint (approximately 470 sq ft) makes it manageable but limits storage and living space compared with larger homes.

Note the property uses electric storage heaters and secondary glazing; walls are likely uninsulated (sandstone/limestone as-built), so running costs may be higher than modern-build flats. Service charge and ground rent are notable: around £2,500 per year service charge and £200 ground rent.

This flat suits a buyer seeking central location and period character who is willing to accept smaller rooms and some running-cost and maintenance compromises. It could also appeal to investors looking for a central let, though consider higher ongoing costs and above-average local crime statistics when assessing rental yield or family suitability.

Property Details

Image Descriptions

Floorplan Description

Rooms

Textual Property Features

Target Audience

AI Tags

Detected Visual Features

EPC Details

Nearby Schools

Nearest Bars And Restaurants

,,,,}

Nearest General Shops

,,}

Nearest Grocery shops

,,}

Nearest Supermarkets

,,}

Nearest Religious buildings

,,}

Nearest Medical buildings

,,,}

Nearest Airports

,}

Nearest Leisure Facilities

,,,,}

Nearest Tourist attractions

,,}

Nearest Train stations

,,,,}

Nearest Bus stations and stops

,,,,}

Nearest Hotels

,,}

Tags

AirBnB Data

Similar Properties

Meta

High Res Images

Compatible Images

Low res Images

Thumbnails

Raw Images

High Res Floorplan Images

Compatible Floorplan Images

Low res Floorplan Images

FloorplanImages Thumbnail

Raw Floorplan Images