SG9 0AB - Land for sale in BUILDING PLOT Hillcrest, Hare Street, SG9

View on Property Piper

Land for sale in BUILDING PLOT - Hillcrest, Hare Street, SG9

Summary - HILLCREST, BUNTINGFORD, HARE STREET SG9 0AB

4 bed 3 bath Land

Ready-to-build eco bungalow on over half an acre near Buntingford.
Full planning permission for single-storey 4-bedroom eco dwelling
This substantial plot in Hare Street comes with full planning permission to replace the existing bungalow and outbuildings with a single-storey, four-bedroom environmentally sustainable home. The design work has been prepared by an award-winning RIBA practice and the approved scheme focuses on contemporary, energy-efficient living with large windows and open-plan spaces. The site extends to in excess of 0.5 acres providing generous outdoor space, parking and a semi-rural setting with countryside walks on the doorstep.

The current developers have confirmed they will undertake the build, offering a route to a finished home subject to terms and costings. That convenience will suit buyers who want a largely managed project rather than a self-build, but buyers should note any build package will be agreed separately and additional costs for specification upgrades are likely. The existing property is unkempt and will be demolished under the approved consent.

Practical details favour day-to-day life: fast broadband, very low local crime, easy access into Buntingford and the A10 for links to Cambridge and London, and a selection of well-regarded state and independent schools nearby. Flood risk is recorded as none.

Important considerations: tenure is not specified in the sale information and should be confirmed before exchange. The planning permission reference is 3/21/2436/FUL (East Herts) and prospective purchasers should review the full planning pack for conditions and obligations. For buyers seeking a private new-build in a peaceful rural setting with assured sustainability credentials, this plot offers a rare ready-to-go opportunity; for strict self-builders or those requiring immediate vacant possession with clarified tenure terms, further checks are recommended.

Property Details

Image Descriptions

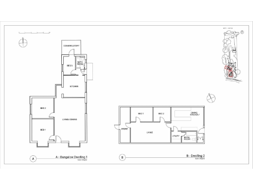
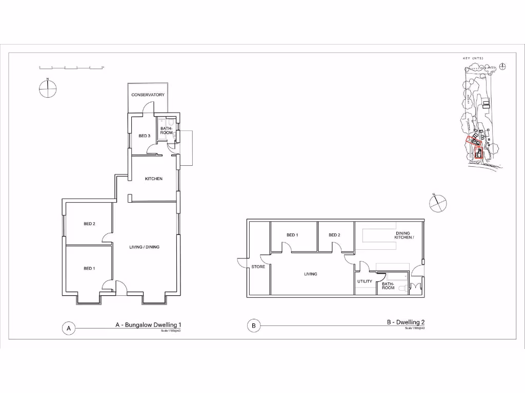
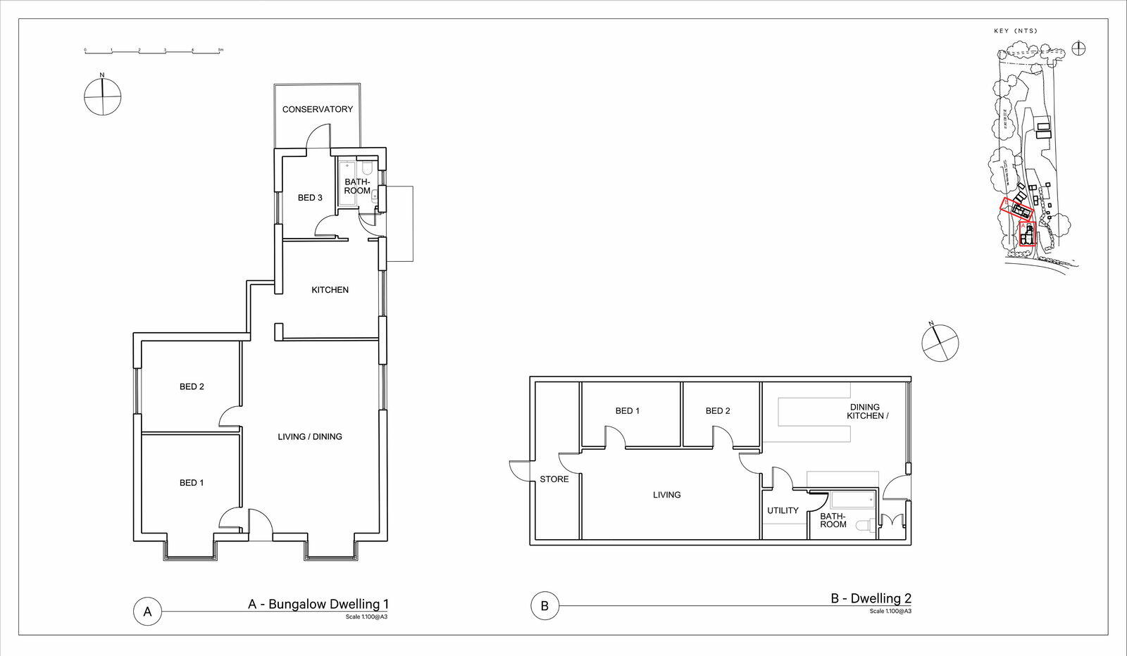
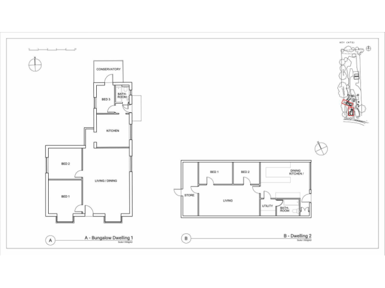
Floorplan Description

Rooms

Textual Property Features

Target Audience

AI Tags

Detected Visual Features

Nearby Schools

Nearest Bars And Restaurants

,,,,}

Nearest General Shops

,,}

Nearest Grocery shops

,,}

Nearest Supermarkets

,,}

Nearest Religious buildings

,,}

Nearest Medical buildings

,,,}

Nearest Airports

}

Nearest Leisure Facilities

,,,,}

Nearest Tourist attractions

,,}

Nearest Train stations

,,,,}

Nearest Bus stations and stops

,,,,}

Nearest Hotels

,,}

Tags

Local Market Stats

Similar Properties

Meta

High Res Images

Compatible Images

Low res Images

Thumbnails

Raw Images

High Res Floorplan Images

Compatible Floorplan Images

Low res Floorplan Images

FloorplanImages Thumbnail

Raw Floorplan Images